神奈川県の築30年以内の中古マンション物件一覧
神奈川県の築30年以内の中古マンション購入は、三菱UFJ不動産販売の住まい1にお任せください。地域や沿線などご希望の条件から物件をお探しいただけます。物件の見学(内見)のお問い合わせもお気軽にどうぞ。
-
| 価格 |
8,180万円
|
| 所在地 |
神奈川県藤沢市藤沢 |
| 交通 |
東海道本線 「藤沢」駅 徒歩3分
小田急電鉄江ノ島線 「藤沢」駅 徒歩3分
江ノ島電鉄 「藤沢」駅 徒歩5分
|
| 専有面積 |
70.56m²
(21.34坪)
壁芯
|
築年月 |
2018年1月 |
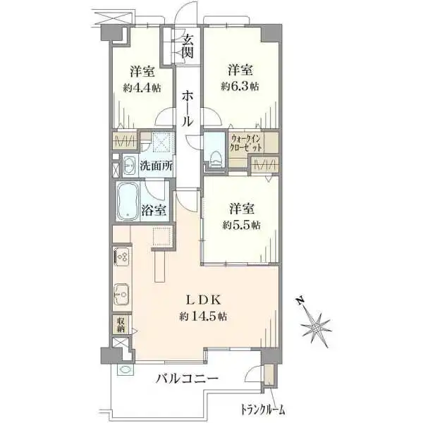
| 間取り |
3LDK+納戸(S)×1 |
所在階 |
3階/16階建 |
<アピールポイント>
☆スカイテラス ☆ラウンジ ☆キッズスペース ☆24時間対応ごみステーション
<専有部分>
☆食器洗乾燥機 ☆ディスポーザー ☆TES式床暖房 ☆ミストサウナ
-
| 価格 |
4,820万円
|
| 所在地 |
神奈川県相模原市中央区相模原3丁目 |
| 交通 |
横浜線 「相模原」駅 徒歩5分
|
| 専有面積 |
70.33m²
(21.27坪)
壁芯
|
築年月 |
2019年10月 |
| 間取り |
3LDK |
所在階 |
8階/15階建 |
・地上15階建<8階部分>につき採光・眺望良好
・洋室(約4.5畳)の引き戸を収納すればLDと一体化した空間が広がります
・LD(約11.3畳)にTES温水式床暖房
・対面キッチン<ディスポーザー・食洗器付>
・2面採光の洋室(約4.5畳)
・洋室(約5畳・約6畳)に収納力のあるWIC
・玄関周りをスッキリと収納できるSIC
〜Life Information〜
・イオンフードスタイル相模原店 約150m(徒歩2分)
・夢大通り公園 約150m(徒歩2分)
・ローソン相模夢大通り店 約180m(徒歩3分)
・相模原市立清新小学校 約970m(徒歩13分)
・相模原市立清...
-
| 価格 |
6,380万円
|
| 所在地 |
神奈川県川崎市川崎区港町 |
| 交通 |
京浜急行電鉄大師線 「港町」駅 徒歩3分
京浜急行電鉄本線 「京急川崎」駅 徒歩20分
|
| 専有面積 |
57.15m²
(17.28坪)
壁芯
|
築年月 |
2016年11月 |
| 間取り |
2LDK |
所在階 |
13階/28階建 |
●地上28階デュアルフレームシステムタワーマンション
-
| 価格 |
11,500万円
|
| 所在地 |
神奈川県海老名市めぐみ町 |
| 交通 |
小田急電鉄小田原線 「海老名」駅 徒歩3分
相模鉄道本線 「海老名」駅 徒歩3分
相模線 「海老名」駅 徒歩4分
|
| 専有面積 |
88.87m²
(26.88坪)
壁芯
|
築年月 |
2019年10月 |
| 間取り |
3LDK |
所在階 |
17階/31階建 |
・地上31階建タワーマンション、17階部分の角住戸<3LDK>
・ゆとりのLD(約18.8畳)
・LDに床暖房
・各洋室がバルコニーに接面
・和室(約7畳)に収納力のあるクローゼット
・ 玄関周りをスッキリと収納できるSIC
・当該フロアにゴミ置場有(24時間ゴミ出可)
・宅配ロッカー
・ペット飼育可(別途細則有)
〜Life Information〜
・成城石井ビナガーデンズ海老名店・・・約340m(徒歩約5分)
・ローソンビナガーデンズ店・・・約110m(徒歩約2分)
・海老名市立今泉小学校・・・約1,300m(徒歩約17分)
-
| 価格 |
3,700万円
|
| 所在地 |
神奈川県大和市中央林間4丁目 |
| 交通 |
東急田園都市線 「中央林間」駅 徒歩7分
小田急電鉄江ノ島線 「中央林間」駅 徒歩8分
|
| 専有面積 |
67.42m²
(20.39坪)
壁芯
|
築年月 |
1996年2月 |
| 間取り |
3LDK |
所在階 |
1階/4階建 |
・南向きバルコニーに面したLD
・対面カウンターキッチン
・洋室(約5.3畳)に地下室9.12平米(約2.75坪)有(除湿機能付換気装置付)
・オートロック
・宅配ボックス有
〜LIFE INFORMATION〜
・ファミリーマートサンズ中央林間四丁目店:約330m(徒歩5分)
・東急ストア中央林間店:約350m(徒歩5分)
・トモズ中央林間東急スクエア店:約450m(徒歩6分)
・もこもこ保育園:約220m(徒歩3分)
・大和市立中央林間小学校:約1,600m(徒歩20分)
・大和市立つきみ野中学校:約840m(徒歩11分)
-
| 価格 |
7,680万円
|
| 所在地 |
神奈川県川崎市高津区下作延2丁目 |
| 交通 |
東急田園都市線 「溝の口」駅 徒歩4分
東急大井町線 「溝の口」駅 徒歩4分
南武線 「武蔵溝ノ口」駅 徒歩5分
|
| 専有面積 |
80.26m²
(24.27坪)
壁芯
|
築年月 |
2004年7月 |
| 間取り |
2LDK+納戸(S)×1 |
所在階 |
6階/7階建 |
・ペット飼育可※規約による制限有
・不在時に便利な宅配ボックス付き
・周辺に生活利便施設複数有
・東急田園都市線・東急大井町線「溝の口」駅まで徒歩4分
・気品と重厚感のあるレイヤーブラウン様式のエントランス
・6階部分の角住戸
・開放感のあるルーフバルコニー
・2室に面する南東向きバルコニー
・対面カウンターキッチンのあるLD(約11.4畳)
・洋室(約6.2畳)に収納力のあるウォークインクローゼット
・2面採光の洋室(約5畳)
-
| 価格 |
13,200万円
|
| 所在地 |
神奈川県川崎市中原区小杉町3丁目 |
| 交通 |
南武線 「武蔵小杉」駅 徒歩1分
東急東横線 「武蔵小杉」駅 徒歩1分
東急目黒線 「武蔵小杉」駅 徒歩1分
|
| 専有面積 |
62.42m²
(18.88坪)
壁芯
|
築年月 |
2013年2月 |
| 間取り |
2LDK |
所在階 |
17階/39階建 |
◎JR南武線、東急東横線・目黒線「武蔵小杉」駅直結◎JR横須賀線・湘南新宿ライン「武蔵小杉」駅徒歩7分も利用可◎西向きバルコニーに面したLD(約10.9畳)◎LD部分に床暖房◎対面カウンターキッチン(約2.9畳)◎各洋室から出入りできる2WAY仕様のWTC◎1棟の総戸数326戸のビッグコミュニティ◎眺望良好な17階部分◎ペットの飼育については別途ペット細則を遵守していただきます
-
| 価格 |
5,080万円
|
| 所在地 |
神奈川県川崎市宮前区犬蔵3丁目 |
| 交通 |
東急田園都市線 「たまプラーザ」駅 徒歩19分
|
| 専有面積 |
95.48m²
(28.88坪)
壁芯
|
築年月 |
2011年4月 |
| 間取り |
4LDK |
所在階 |
2階/7階建 |
●東急田園都市線「たまプラーザ」駅徒歩19分●東急田園都市線「たまプラーザ」駅まで無料シャトルバス有
●北向き・西向きバルコニーに面した3方角住戸●総戸数384戸のビックコミュニティ
-
| 価格 |
7,180万円
|
| 所在地 |
神奈川県川崎市高津区久本3丁目 |
| 交通 |
南武線 「武蔵溝ノ口」駅 徒歩15分
東急田園都市線 「溝の口」駅 徒歩17分
東急大井町線 「溝の口」駅 徒歩17分
|
| 専有面積 |
79.49m²
(24.04坪)
壁芯
|
築年月 |
2006年8月 |
| 間取り |
3LDK |
所在階 |
3階/32階建 |
◇2006年築、1棟の総戸数684戸のビッグコミュニティ
◇東向きバルコニーに面したLD(約13.1畳)
◇対面カウンターキッチン(約3.6畳)
◇洋室(約5.7畳)の引き戸を収納すれば開放的な空間の実現
◇収納力のあるWIC2箇所
◇バルコニーにトランクルームとスロップシンク
-
| 価格 |
4,800万円
|
| 所在地 |
神奈川県茅ヶ崎市東海岸南1丁目 |
| 交通 |
東海道本線 「茅ケ崎」駅 徒歩16分
相模線 「茅ケ崎」駅 徒歩16分
|
| 専有面積 |
71.76m²
(21.7坪)
壁芯
|
築年月 |
2012年8月 |
| 間取り |
2LDK+納戸(S)×1 |
所在階 |
2階/3階建 |
◇「サザンビーチ」まで約850mの立地
◇三菱地所レジデンス株式会社旧分譲
◇ゆとりのLDK(約20畳)
◇LDに納戸(約0.5畳)
◇洋室(約5畳)に2連クローゼット
◇サーフ用品・アウトドア用品等を収納できる土間(約2.8畳)
◇サーフボード置場有[空有(月額)1,000円/区画※2025年10月16日現在]
◇ペット飼育可(別途細則有)
◇オートロック
-
| 価格 |
5,480万円
|
| 所在地 |
神奈川県横浜市都筑区北山田5丁目 |
| 交通 |
横浜市営地下鉄グリーンライン 「北山田」駅 徒歩8分
|
| 専有面積 |
87.77m²
(26.55坪)
壁芯
|
築年月 |
1997年8月 |
| 間取り |
4LDK+納戸(S)×1 |
所在階 |
5階/13階建 |
■周辺に公園が点在する、緑に囲まれた住環境
■3室に面する南西向きバルコニー
■南西向きにバルコニーに面するLD(約10.4畳)
■北東向きサービスバルコニーに面するキッチン(約3.6畳)
■廊下部分に収納力のある納戸
■高台に存し、採光・眺望良好
■オートロック、宅配ロッカー
-
| 価格 |
5,480万円
|
| 所在地 |
神奈川県川崎市中原区北谷町 |
| 交通 |
南武線 「平間」駅 徒歩4分
横須賀線 「新川崎」駅 徒歩20分
埼京線 「武蔵小杉」駅 徒歩21分
|
| 専有面積 |
70.56m²
(21.34坪)
壁芯
|
築年月 |
2000年10月 |
| 間取り |
3LDK |
所在階 |
2階/7階建 |
駅徒歩5分以内、土地権利所有権の物件です。鉄筋コンクリート造、2階以上、大規模マンション(100戸以上)の物件です。
-
| 価格 |
13,280万円
|
| 所在地 |
神奈川県横浜市神奈川区栄町 |
| 交通 |
東海道本線 「横浜」駅 徒歩10分
京浜急行電鉄本線 「神奈川」駅 徒歩8分
東急東横線 「横浜」駅 徒歩10分
|
| 専有面積 |
71.54m²
(21.64坪)
壁芯
|
築年月 |
2001年9月 |
| 間取り |
2LDK |
所在階 |
30階/42階建 |
駅徒歩10分以内、土地権利所有権の物件です。駐車場空有、鉄筋コンクリート造、タワー型(階数が20階建以上)、10階以上、大規模マンション(100戸以上)の物件です。
-
| 価格 |
4,580万円
|
| 所在地 |
神奈川県川崎市幸区北加瀬2丁目 |
| 交通 |
横須賀線 「新川崎」駅 徒歩15分
東急東横線 「元住吉」駅 徒歩20分
南武線 「鹿島田」駅 徒歩22分
|
| 専有面積 |
71.8m²
(21.71坪)
壁芯
|
築年月 |
2002年6月 |
| 間取り |
2LDK+納戸(S) |
所在階 |
4階/11階建 |
土地権利所有権の物件です。駐車場空有、鉄筋コンクリート造、2階以上の物件です。
-
| 価格 |
6,980万円
|
| 所在地 |
神奈川県横浜市戸塚区吉田町 |
| 交通 |
東海道本線 「戸塚」駅 徒歩12分
横浜市営地下鉄ブルーライン 「戸塚」駅 徒歩12分
湘南新宿ライン(前橋~小田原) 「戸塚」駅 徒歩12分
|
| 専有面積 |
72.85m²
(22.03坪)
壁芯
|
築年月 |
2021年1月 |
| 間取り |
2LDK+納戸(S) |
所在階 |
3階/7階建 |
土地権利所有権の物件です。駐車場空有、築浅、鉄筋コンクリート造、2階以上、大規模マンション(100戸以上)、南(南東・南西)バルコニーの物件です。
-
| 価格 |
3,400万円
|
| 所在地 |
神奈川県横浜市鶴見区駒岡5丁目 |
| 交通 |
東海道本線 「川崎」駅 バス20分 「駒岡十字路」バス停下車 徒歩7分
東急東横線 「綱島」駅 バス13分 「鷹野大橋」バス停下車 徒歩2分
京浜東北・根岸線 「鶴見」駅 バス22分 「鷹野大橋」バス停下車 徒歩2分
|
| 専有面積 |
60.8m²
(18.39坪)
壁芯
|
築年月 |
1998年3月 |
| 間取り |
3LDK |
所在階 |
1階/7階建 |
土地権利所有権の物件です。駐車場空有、鉄筋コンクリート造、1階住戸、南(南東・南西)バルコニーの物件です。
-
| 価格 |
4,050万円
|
| 所在地 |
神奈川県横浜市青葉区奈良4丁目 |
| 交通 |
東急こどもの国線 「こどもの国」駅 徒歩6分
|
| 専有面積 |
85.15m²
(25.75坪)
壁芯
|
築年月 |
2009年2月 |
| 間取り |
3LDK |
所在階 |
5階/10階建 |
駅徒歩10分以内、土地権利所有権の物件です。駐車場空有、鉄筋コンクリート造、2階以上、南(南東・南西)バルコニーの物件です。
-
| 価格 |
4,480万円
|
| 所在地 |
神奈川県横浜市都筑区新栄町 |
| 交通 |
横浜市営地下鉄ブルーライン 「仲町台」駅 徒歩12分
|
| 専有面積 |
67.55m²
(20.43坪)
壁芯
|
築年月 |
2008年5月 |
| 間取り |
2LDK |
所在階 |
1階/6階建 |
土地権利所有権の物件です。鉄筋コンクリート造、1階住戸、大規模マンション(100戸以上)、南(南東・南西)バルコニーの物件です。
-
| 価格 |
5,980万円
|
| 所在地 |
神奈川県横浜市鶴見区鶴見中央2丁目 |
| 交通 |
京浜東北・根岸線 「鶴見」駅 徒歩8分
京浜急行電鉄本線 「京急鶴見」駅 徒歩8分
鶴見線 「鶴見」駅 徒歩8分
|
| 専有面積 |
66.76m²
(20.19坪)
壁芯
|
築年月 |
2015年12月 |
| 間取り |
3LDK |
所在階 |
1階/7階建 |
駅徒歩10分以内の物件です。鉄筋コンクリート造、1階住戸、大規模マンション(100戸以上)、南(南東・南西)バルコニーの物件です。
-
| 価格 |
6,980万円
|
| 所在地 |
神奈川県横浜市鶴見区鶴見中央2丁目 |
| 交通 |
京浜東北・根岸線 「鶴見」駅 徒歩9分
京浜急行電鉄本線 「京急鶴見」駅 徒歩8分
京浜急行電鉄本線 「鶴見市場」駅 徒歩14分
|
| 専有面積 |
71.89m²
(21.74坪)
壁芯
|
築年月 |
2015年12月 |
| 間取り |
3LDK |
所在階 |
2階/7階建 |
駅徒歩10分以内の物件です。駐車場空有、鉄筋コンクリート造、2階以上、南(南東・南西)バルコニーの物件です。
-
| 価格 |
3,280万円
|
| 所在地 |
神奈川県川崎市幸区小倉3丁目 |
| 交通 |
横須賀線 「新川崎」駅 徒歩18分
南武線 「矢向」駅 徒歩16分
東海道本線 「川崎」駅 バス29分 「小倉下町」バス停下車 徒歩3分
|
| 専有面積 |
55.95m²
(16.92坪)
壁芯
|
築年月 |
2000年7月 |
| 間取り |
2LDK |
所在階 |
5階/5階建 |
土地権利所有権の物件です。鉄筋コンクリート造、最上階、2階以上、南(南東・南西)バルコニーの物件です。
-
| 価格 |
2,640万円
|
| 所在地 |
神奈川県川崎市多摩区長尾6丁目 |
| 交通 |
南武線 「宿河原」駅 徒歩16分
南武線 「久地」駅 徒歩17分
南武線 「登戸」駅 徒歩29分
|
| 専有面積 |
68.82m²
(20.81坪)
壁芯
|
築年月 |
1997年4月 |
| 間取り |
3LDK |
所在階 |
2階/3階建 |
低層住居専用地域、土地権利所有権の物件です。駐車場空有、鉄筋コンクリート造、2階以上、低層マンション(3階建て以下)、南(南東・南西)バルコニーの物件です。
-
| 価格 |
6,980万円
|
| 所在地 |
神奈川県川崎市多摩区登戸 |
| 交通 |
小田急電鉄小田原線 「向ヶ丘遊園」駅 徒歩6分
小田急電鉄小田原線 「登戸」駅 徒歩10分
南武線 「登戸」駅 徒歩10分
|
| 専有面積 |
85.72m²
(25.93坪)
壁芯
|
築年月 |
2011年2月 |
| 間取り |
4LDK |
所在階 |
1階/7階建 |
駅徒歩10分以内、土地権利所有権の物件です。鉄筋コンクリート造、4LDK以上、1階住戸の物件です。
-
| 価格 |
7,280万円
|
| 所在地 |
神奈川県横浜市中区弥生町2丁目 |
| 交通 |
横浜市営地下鉄ブルーライン 「伊勢佐木長者町」駅 徒歩4分
根岸線 「関内」駅 徒歩10分
京浜急行電鉄本線 「日ノ出町」駅 徒歩11分
|
| 専有面積 |
61.38m²
(18.56坪)
壁芯
|
築年月 |
2022年4月 |
| 間取り |
1LDK+納戸(S) |
所在階 |
5階/11階建 |
駅徒歩5分以内、土地権利所有権の物件です。築浅、鉄筋コンクリート造、2階以上、南(南東・南西)バルコニーの物件です。
-
| 価格 |
3,480万円
|
| 所在地 |
神奈川県横浜市鶴見区獅子ケ谷2丁目 |
| 交通 |
東急東横線 「綱島」駅 バス17分 「神明社前」バス停下車 徒歩2分
京浜東北・根岸線 「鶴見」駅 バス23分 「二ツ池」バス停下車 徒歩3分
|
| 専有面積 |
76.79m²
(23.22坪)
壁芯
|
築年月 |
2000年2月 |
| 間取り |
3LDK+納戸(S) |
所在階 |
8階/10階建 |
低層住居専用地域、土地権利所有権の物件です。鉄筋コンクリート造、2階以上、南(南東・南西)バルコニーの物件です。
-
| 価格 |
7,580万円
|
| 所在地 |
神奈川県川崎市川崎区砂子2丁目 |
| 交通 |
東海道本線 「川崎」駅 徒歩7分
京浜急行電鉄本線 「京急川崎」駅 徒歩6分
京浜東北・根岸線 「川崎」駅 徒歩7分
|
| 専有面積 |
55.03m²
(16.64坪)
壁芯
|
築年月 |
2015年11月 |
| 間取り |
2LDK |
所在階 |
6階/20階建 |
駅徒歩10分以内、土地権利所有権の物件です。鉄筋コンクリート造、タワー型(階数が20階建以上)、2階以上、大規模マンション(100戸以上)、南(南東・南西)バルコニーの物件です。
-
| 価格 |
8,580万円
|
| 所在地 |
神奈川県川崎市幸区南幸町2丁目 |
| 交通 |
京浜東北・根岸線 「川崎」駅 徒歩7分
|
| 専有面積 |
58.36m²
(17.65坪)
壁芯
|
築年月 |
2015年2月 |
| 間取り |
2LDK |
所在階 |
4階/13階建 |
駅徒歩10分以内、土地権利所有権の物件です。鉄筋コンクリート造、2階以上の物件です。
-
| 価格 |
6,580万円
|
| 所在地 |
神奈川県川崎市高津区溝口1丁目 |
| 交通 |
東急田園都市線 「溝の口」駅 徒歩4分
東急大井町線 「溝の口」駅 徒歩4分
南武線 「武蔵溝ノ口」駅 徒歩4分
|
| 専有面積 |
65.07m²
(19.68坪)
壁芯
|
築年月 |
2004年10月 |
| 間取り |
2LDK |
所在階 |
2階/14階建 |
駅徒歩5分以内、土地権利所有権の物件です。鉄筋コンクリート造、2階以上、南(南東・南西)バルコニーの物件です。
-
| 価格 |
4,480万円
|
| 所在地 |
神奈川県川崎市川崎区渡田1丁目 |
| 交通 |
東海道本線 「川崎」駅 バス11分 「大島1丁目」バス停下車 徒歩1分
東海道本線 「川崎」駅 徒歩18分
|
| 専有面積 |
77.62m²
(23.48坪)
壁芯
|
築年月 |
2000年10月 |
| 間取り |
2LDK |
所在階 |
11階/11階建 |
土地権利所有権の物件です。駐車場空有、鉄骨鉄筋コンクリート造、最上階、10階以上、南(南東・南西)バルコニーの物件です。
-
| 価格 |
5,780万円
|
| 所在地 |
神奈川県横浜市保土ケ谷区常盤台 |
| 交通 |
横浜市営地下鉄ブルーライン 「三ツ沢上町」駅 徒歩15分
相模鉄道相鉄新横浜 「羽沢横浜国大」駅 徒歩17分
相模鉄道本線 「上星川」駅 徒歩30分
|
| 専有面積 |
105.3m²
(31.85坪)
壁芯
|
築年月 |
2002年1月 |
| 間取り |
3LDK |
所在階 |
6階/11階建 |
土地権利所有権の物件です。ペット可(細則有)、駐車場空有、鉄筋コンクリート造、専有面積100m2以上、即入居可、2階以上、大規模マンション(100戸以上)、南(南東・南西)バルコニーの物件です。