神奈川県の駅徒歩20分以内の新築・中古一戸建て物件一覧
神奈川県の駅徒歩20分以内の新築・中古一戸建て購入は、三菱UFJ不動産販売の住まい1にお任せください。地域や沿線などご希望の条件から物件をお探しいただけます。物件の見学(内見)のお問い合わせもお気軽にどうぞ。
-
| 価格 |
9,280万円
|
| 所在地 |
神奈川県川崎市高津区下作延7丁目 |
| 交通 |
南武線 「津田山」駅 徒歩8分
東急田園都市線 「溝の口」駅 徒歩17分
南武線 「武蔵溝ノ口」駅 徒歩18分
|
| 建物面積 |
103.17m²
(31.2坪)
|
築年月 |
2025年10月 |
| 土地面積 |
130.07m²
(39.34坪)
|
構造 |
木造 地上2階建 |
| 間取り |
3LDK |
|
|
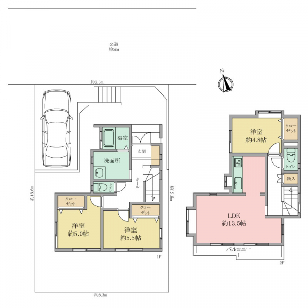
◆2025年10月完成!JR南武線「津田山」駅より徒歩8分の閑静な住宅街に存する新築戸建て
◆角地ひな壇で日当たり・風通し・眺望も良好!ぬくもりあるウッドデッキもございます
◆LDKはゆったり約21.4畳!窓が大きく開放感のあるリビング、憧れのアイランドキッチン!
◆主寝室のウォークインクローゼットや洋室上のロフトなど収納力のある使い勝手の良い間取り
◆ショッピングセンターのある溝の口エリアも徒歩圏内でお買い物やご飲食に便利!
-
| 価格 |
6,480万円
|
| 所在地 |
神奈川県横浜市西区伊勢町3丁目 |
| 交通 |
京浜急行電鉄本線 「戸部」駅 徒歩7分
|
| 建物面積 |
95.63m²
(28.92坪)
|
築年月 |
2026年3月 |
| 土地面積 |
113.95m²
(34.46坪)
|
構造 |
木造 地上2階建 |
| 間取り |
2LDK+納戸(S)×1 |
|
|
・京急本線「戸部」駅徒歩7分
・「フジ伊勢町店」まで徒歩5分なのでお買い物しやすいです・「市立西前小学校」まで徒歩6分です
・2LDK+納戸・1階のすべてのお部屋に収納スペースあり!
・対面キッチンで食洗機付システムキッチンです
-
| 価格 |
15,500万円
|
| 所在地 |
神奈川県横浜市都筑区早渕1丁目 |
| 交通 |
横浜市営地下鉄ブルーライン 「仲町台」駅 徒歩12分
|
| 建物面積 |
205.59m²
(62.19坪)
|
築年月 |
2001年6月 |
| 土地面積 |
326.92m²
(98.89坪)
|
構造 |
木造 地上2階建 |
| 間取り |
3LDK |
|
|
◆LDK(約35.5畳)上部一部吹抜け
◆カウンター付対面キッチン
◆洋室(約13.1畳)と洋室(約11.1畳)にそれぞれ収納力のあるWIC
◆南向きバルコニー2箇所
◆開放感のあるウッドデッキ2箇所
◆床の間付きの和室(約7.4畳)
◆1階に1箇所、2階に2箇所のトイレ
◆玄関横に外部収納
-
| 価格 |
6,990万円
|
| 所在地 |
神奈川県川崎市多摩区中野島6丁目 |
| 交通 |
南武線 「中野島」駅 徒歩5分
|
| 建物面積 |
138.12m²
(41.78坪)
|
築年月 |
2009年12月 |
| 土地面積 |
219.14m²
(66.28坪)
|
構造 |
木造 地上2階建 |
| 間取り |
3LDK+納戸(S)×1 |
|
|
┗□ Life Information
■ショッピング施設
◎「ファミリーマート中野島北口店」まで約270m
◎「セブンイレブン川崎中野島店」 まで約390m
◎「サミットストア中野島店」 まで約140m
◎「クスリのナカヤマ薬局中野島店」まで約340m
■病院
◎「多摩クリニック」 まで約130m
■小中学校
◎「市立下布田小学校」まで約540m
◎「市立中野島中学校」まで約1,000m
-
| 価格 |
8,750万円
|
| 所在地 |
神奈川県相模原市南区東林間7丁目 |
| 交通 |
小田急電鉄江ノ島線 「東林間」駅 徒歩10分
小田急電鉄江ノ島線 「中央林間」駅 徒歩14分
東急田園都市線 「中央林間」駅 徒歩16分
|
| 建物面積 |
130.51m²
(39.47坪)
|
築年月 |
2004年8月 |
| 土地面積 |
235.66m²
(71.28坪)
|
構造 |
木造 地上2階建 |
| 間取り |
3LDK+納戸(S)×1 |
|
|
・小田急小田原線「小田急相模原」駅徒歩25分も利用可
・南西側約6.3m公道、南東側約4.0m公道角地
・土地面積(公簿)235.66平米(約71.28坪)
・リビング上部一部開放感のある吹抜け
・2面採光の明るいダイニング・キッチン
・収納力のある納戸
・全居室約6畳以上の3LDK
・キャットウォーク有
・素材からこだわった注文住宅仕様
・1階に南東向きひろびろウッドデッキ
・2階バルコニーはウッドデッキ仕様(2箇所)
-
| 価格 |
5,280万円
|
| 所在地 |
神奈川県横浜市神奈川区三ツ沢中町 |
| 交通 |
横浜市営地下鉄ブルーライン 「三ツ沢上町」駅 徒歩6分
横浜市営地下鉄ブルーライン 「三ツ沢下町」駅 徒歩7分
|
| 建物面積 |
98.32m²
(29.74坪)
|
築年月 |
2018年9月 |
| 土地面積 |
102.04m²
(30.86坪)
|
構造 |
木造 地上2階建 |
| 間取り |
3LDK |
|
|
◎西側 約3.6m〜約4.0m 公道
◎ゆとりのLDK(約20.1畳)
◎開放感のあるオープンキッチン
◎2面採光の洋室(約6.3畳・約10.5畳)
◎洋室(約10.5畳)に3連クローゼット
◎カースペース2台(並列駐車可・車種制限あり)
-
| 価格 |
5,580万円
|
| 所在地 |
神奈川県川崎市麻生区岡上2丁目 |
| 交通 |
小田急電鉄小田原線 「鶴川」駅 徒歩8分
|
| 建物面積 |
177.52m²
(53.69坪)
|
築年月 |
1999年8月 |
| 土地面積 |
164.02m²
(49.61坪)
|
構造 |
木造一部RC 地上2階 地下1階建 |
| 間取り |
4LDK+納戸(S)×1 |
|
|
☆地下に倉庫があり、収納が充実
☆駐車スペース2台分あり(車種による制限有)
☆角地で高さがあるため日当たり良好
-
| 価格 |
5,180万円
|
| 所在地 |
神奈川県川崎市多摩区南生田7丁目 |
| 交通 |
小田急電鉄小田原線 「生田」駅 徒歩12分
|
| 建物面積 |
115m²
(34.78坪)
|
築年月 |
1994年3月 |
| 土地面積 |
119.81m²
(36.24坪)
|
構造 |
RC 地上2階建 |
| 間取り |
3LDK |
|
|
◎南向きバルコニーに面したLD
◎南西側洋室に収納力のあるWIC
◎各階にトイレ有
◎採光を確保できる中庭
◇LIFE INFORMATION
●セブンイレブン川崎栗谷店 約470m(徒歩6分)
●大森医院(内科・小児科) 約290m(徒歩4分)
●いなげや川崎生田店 約480m(徒歩6分)
●生田中谷第1公園 約480m(徒歩6分)
●オーケー生田店 約870m(徒歩11分)
●川崎三田郵便局 約890m(徒歩12分)
●市立南生田中学校 約1,100m(徒歩14分)
●市立南生田小学校 約970m(徒歩13分)
-
| 価格 |
2,980万円
|
| 所在地 |
神奈川県秦野市本町3丁目 |
| 交通 |
小田急電鉄小田原線 「秦野」駅 徒歩9分
|
| 建物面積 |
134.48m²
(40.68坪)
|
築年月 |
2003年3月 |
| 土地面積 |
196.11m²
(59.32坪)
|
構造 |
軽量鉄骨 地上2階建 |
| 間取り |
3LDK+納戸(S)×1 |
|
|
・積水ハウス施工の住宅
・お庭でガーデニングが楽しめます
・雨戸が電動で昇降できます
・子供部屋、収納部屋としても使える充実した3LDK
・広々としたLDKでゆったり過ごせる
・スーパー等が近く便利な環境
-
| 価格 |
4,780万円
|
| 所在地 |
神奈川県横浜市港南区日野4丁目 |
| 交通 |
横浜市営地下鉄ブルーライン 「上永谷」駅 徒歩16分
|
| 建物面積 |
120m²
(36.3坪)
|
築年月 |
1996年10月 |
| 土地面積 |
150.01m²
(45.37坪)
|
構造 |
軽量鉄骨 地上2階建 |
| 間取り |
4LDK+納戸(S)×1 |
|
|
◎区画の整った街並みが続く閑静な住環境
◎南西側約4.6m公道
◎全居室約6畳以上の4LDK
◎全居室2面採光(LDK3面採光)
◎ゆとりのLDK(約19.4畳)
◎開放感のあるオープンキッチン(パントリー有)
◎洋室(約7.7畳)の引き戸を開放すれば
LDと一体化した空間が広がります!
◎洋室(約6.1畳)にウォークインクローゼット
◎2階廊下部分に収納力のある納戸(約3.1畳)
◎2026年4月末 外構工事完成予定
-
| 価格 |
1,980万円
|
| 所在地 |
神奈川県鎌倉市大船6丁目 |
| 交通 |
東海道本線 「大船」駅 徒歩18分
京浜東北・根岸線 「大船」駅 徒歩18分
湘南モノレール 「大船」駅 徒歩18分
|
| 建物面積 |
110.13m²
(33.31坪)
|
築年月 |
1975年12月 |
| 土地面積 |
198.34m²
(59.99坪)
|
構造 |
木造 地上2階建 |
| 間取り |
4LDK |
|
|
◇ペットと暮らしやすい環境を求める方にご検討いただきたい物件です。
◇高台・南向きの立地で、日当たりや風通しの良さを感じられます。
◇六国見山が徒歩圏にあり、自然を身近に感じながら散策を楽しめます。
◇車のない、鎌倉らしい暮らしを選ぶ方へ(車庫はありません)
■ Life Information
・イトーヨーカドー大船店…約890m(徒歩約12分)
・ファミリーマート大船谷之前店…約150m(徒歩約2分)
・ウエルシア鎌倉岩瀬店…約630m(徒歩約8分)
・鎌倉市立小坂小学校…約920m(徒歩約12分)
・鎌倉市立大船中学校…約920m(徒歩約12分)
-
| 価格 |
5,280万円
|
| 所在地 |
神奈川県相模原市中央区宮下本町2丁目 |
| 交通 |
京王電鉄相模原線 「多摩境」駅 徒歩12分
横浜線 「橋本」駅 バス10分 「片所」バス停下車 徒歩6分
相模線 「橋本」駅 バス10分 「片所」バス停下車 徒歩6分
|
| 建物面積 |
96.47m²
(29.18坪)
|
築年月 |
2026年10月 |
| 土地面積 |
120.47m²
(36.44坪)
|
構造 |
木造 地上2階建 |
| 間取り |
3LDK |
|
|
・2階:洋室(約6.8畳)に収納力のあるWIC
・2階:廊下部分に下屋裏収納(約3.5畳)
・2階:南西向きバルコニー
・玄関周りをスッキリと収納できるSC
〜Life Information〜
・セブンイレブン町田小山町店:約350m(徒歩5分)
・ベルク相模原宮下本町店:約850m(徒歩11分)
・京王ストア多摩境店:約950m(徒歩12分)
・町田西郵便局:約900m(徒歩12分)
・泰生医院(内科・小児科他):約450m(徒歩6分)
・すすきの公園:約900m(徒歩12分)
・市立向陽小学校:約1,200m(徒歩15分)
・市立小山中学校:約2,100m(徒...
-
| 価格 |
4,280万円
|
| 所在地 |
神奈川県川崎市川崎区田島町 |
| 交通 |
南武線 「小田栄」駅 徒歩11分
|
| 建物面積 |
198.72m²
(60.11坪)
|
築年月 |
1997年2月 |
| 土地面積 |
127.54m²
(38.58坪)
|
構造 |
RC 地上3階建 |
| 間取り |
4LDK+納戸(S)×2 |
|
|
<アピールポイント>
・JR南武線「小田栄」駅徒歩11分の好立地です。
・玄関が二か所あり2世帯住宅としてもご検討いただけます!
<特徴>
・1階全室2面採光!
・すべてのお部屋に収納スペースがあり便利です!
【Life Information】
・ローソンストア100渡田六ッ角店・・・約160m(徒歩2分)
・まいばすけっと鋼管通1丁目店・・・約360m(徒歩5分)
・日本鋼管病院(内科・外科他)・・・約250m(徒歩4分)
・市立渡田小学校・・・約520m(徒歩7分)
・市立臨港中学校・・・約760m(徒歩10分)
・東渡田第2公園・・・約150m(徒歩2分)
-
| 価格 |
5,180万円
|
| 所在地 |
神奈川県相模原市中央区宮下本町2丁目 |
| 交通 |
京王電鉄相模原線 「多摩境」駅 徒歩12分
横浜線 「橋本」駅 バス10分 「片所」バス停下車 徒歩7分
相模線 「橋本」駅 バス10分 「片所」バス停下車 徒歩7分
|
| 建物面積 |
95.22m²
(28.8坪)
|
築年月 |
2026年10月 |
| 土地面積 |
120.51m²
(36.45坪)
|
構造 |
木造 地上2階建 |
| 間取り |
3LDK |
|
|
・2階:洋室(約7.2畳)に収納力のあるWIC
・2階:廊下部分に下屋裏収納(約3畳)
・2階:南西向きバルコニー
・玄関周りをスッキリと収納できるSC
〜Life Information〜
・セブンイレブン町田小山町店:約370m(徒歩5分)
・ベルク相模原宮下本町店:約830m(徒歩11分)
・京王ストア多摩境店:約970m(徒歩13分)
・町田西郵便局:約920m(徒歩12分)
・泰生医院(内科・小児科他):約430m(徒歩6分)
・すすきの公園:約880m(徒歩11分)
・市立向陽小学校:約1,180m(徒歩15分)
・市立小山中学校:約2,080m(徒歩2...
-
| 価格 |
5,180万円
|
| 所在地 |
神奈川県相模原市中央区宮下本町2丁目 |
| 交通 |
京王電鉄相模原線 「多摩境」駅 徒歩12分
横浜線 「橋本」駅 バス10分 「片所」バス停下車 徒歩7分
相模線 「橋本」駅 バス10分 「片所」バス停下車 徒歩7分
|
| 建物面積 |
95.22m²
(28.8坪)
|
築年月 |
2026年10月 |
| 土地面積 |
120.42m²
(36.42坪)
|
構造 |
木造 地上2階建 |
| 間取り |
3LDK |
|
|
・2階:洋室(約7.7畳)に収納力のあるWIC
・2階:廊下部分に下屋裏収納(約3畳)
・2階:南西向きバルコニー
・アウトドア用品や自転車を収納できる土間
〜Life Information〜
・セブンイレブン町田小山町店:約380m(徒歩5分)
・ベルク相模原宮下本町店:約820m(徒歩11分)
・京王ストア多摩境店:約980m(徒歩13分)
・町田西郵便局:約930m(徒歩12分)
・泰生医院(内科・小児科他):約420m(徒歩6分)
・すすきの公園:約870m(徒歩11分)
・市立向陽小学校:約1,170m(徒歩15分)
・市立小山中学校:約2,070m(徒...
-
| 価格 |
5,180万円
|
| 所在地 |
神奈川県相模原市中央区宮下本町2丁目 |
| 交通 |
京王電鉄相模原線 「多摩境」駅 徒歩13分
横浜線 「橋本」駅 バス10分 「片所」バス停下車 徒歩7分
相模線 「橋本」駅 バス10分 「片所」バス停下車 徒歩7分
|
| 建物面積 |
97.17m²
(29.39坪)
|
築年月 |
2026年10月 |
| 土地面積 |
120.39m²
(36.41坪)
|
構造 |
木造 地上2階建 |
| 間取り |
3LDK |
|
|
・対面カウンターキッチン
・2階:洋室(約6.7畳)に収納力のあるWIC
・2階:廊下部分に下屋裏収納(約4.3畳)
・2階:南西向きバルコニー
・玄関周りをスッキリと収納できるSIC
〜Life Information〜
・セブンイレブン町田小山町店:約390m(徒歩5分)
・ベルク相模原宮下本町店:約810m(徒歩11分)
・京王ストア多摩境店:約990m(徒歩13分)
・町田西郵便局:約940m(徒歩12分)
・泰生医院(内科・小児科他):約410m(徒歩6分)
・すすきの公園:約860m(徒歩11分)
・市立向陽小学校:約1,160m(徒歩15分)
・市立...
-
| 価格 |
5,180万円
|
| 所在地 |
神奈川県相模原市中央区宮下本町2丁目 |
| 交通 |
京王電鉄相模原線 「多摩境」駅 徒歩12分
横浜線 「橋本」駅 バス10分 「片所」バス停下車 徒歩6分
相模線 「橋本」駅 バス10分 「片所」バス停下車 徒歩6分
|
| 建物面積 |
95.22m²
(28.8坪)
|
築年月 |
2026年10月 |
| 土地面積 |
120.46m²
(36.43坪)
|
構造 |
木造 地上2階建 |
| 間取り |
3LDK |
|
|
・2階:洋室(約7.7畳)に収納力のあるWIC
・2階:廊下部分に下屋裏収納(約3畳)
・2階:南西向きバルコニー
〜Life Information〜
・セブンイレブン町田小山町店:約360m(徒歩5分)
・ベルク相模原宮下本町店:約840m(徒歩11分)
・京王ストア多摩境店:約960m(徒歩12分)
・町田西郵便局:約910m(徒歩12分)
・泰生医院(内科・小児科他):約440m(徒歩6分)
・すすきの公園:約890m(徒歩12分)
・市立向陽小学校:約1,190m(徒歩15分)
・市立小山中学校:約2,090m(徒歩27分)
-
| 価格 |
6,962万円
|
| 所在地 |
神奈川県横浜市旭区万騎が原 |
| 交通 |
相模鉄道本線 「二俣川」駅 徒歩12分
相模鉄道いずみ野線 「二俣川」駅 徒歩12分
相模鉄道いずみ野線 「南万騎が原」駅 徒歩14分
|
| 建物面積 |
99.83m²
(30.19坪)
|
築年月 |
2026年9月 |
| 土地面積 |
125.69m²
(38.02坪)
|
構造 |
木造 地上2階建 |
| 間取り |
4LDK |
|
|
●北東側約4.5m公道
●2室に面する南西向き・北東向きワイドバルコニー
●対面キッチンのある2面採光のLDK(約20.2畳)
●2階・洋室(約6.9畳)に2連クローゼット
●収納力のあるロフト
●玄関周りをスッキリと収納できるSIC
●カースペース有 ※車種による制限有
-
| 価格 |
7,262万円
|
| 所在地 |
神奈川県横浜市旭区万騎が原 |
| 交通 |
相模鉄道本線 「二俣川」駅 徒歩12分
相模鉄道いずみ野線 「二俣川」駅 徒歩12分
相模鉄道いずみ野線 「南万騎が原」駅 徒歩14分
|
| 建物面積 |
99.72m²
(30.16坪)
|
築年月 |
2026年9月 |
| 土地面積 |
125.68m²
(38.01坪)
|
構造 |
木造 地上2階建 |
| 間取り |
4LDK |
|
|
◎北東側約4.5m公道
◎2室に面する南西向き・北東向きワイドバルコニー
◎対面キッチンのある2面採光のLDK(約20.2畳)
◎2階:洋室(約6.9畳)に2連クローゼット
◎小屋裏収納有
◎玄関周りをスッキリと収納できるSIC
◎カースペース2台有 ※車種による制限有
-
| 価格 |
3,480万円
|
| 所在地 |
神奈川県藤沢市稲荷1丁目 |
| 交通 |
小田急電鉄江ノ島線 「藤沢本町」駅 徒歩19分
小田急電鉄江ノ島線 「善行」駅 バス5分 「中郷」バス停下車 徒歩6分
|
| 建物面積 |
101.74m²
(30.77坪)
|
築年月 |
2007年5月 |
| 土地面積 |
124.12m²
(37.54坪)
|
構造 |
木造 地上2階建 |
| 間取り |
3LDK |
|
|
区画が整った旧湘南オーシャンヒルズ・藤沢分譲地内
南側接道のため日当たり・通風良好です
■ Life Information ━━━━━━━━━━━━━━━・・・・・
・スーパーセンタートライアル…約1,220m(徒歩約16分)
●ファミリーマート藤沢稲荷店…約600m(徒歩約8分)
・ワークマン本藤沢店…約680m(徒歩約9分)
・藤沢市立明治小学校…約1,370m(徒歩約18分)
・藤沢市立羽鳥中学校…約1,610m(徒歩約21分)
━━━━━━━━━━━━━━━━━━━━━━━━━━・・・・・
-
| 価格 |
5,200万円
|
| 所在地 |
神奈川県横浜市旭区鶴ケ峰1丁目 |
| 交通 |
相模鉄道本線 「鶴ケ峰」駅 徒歩5分
|
| 建物面積 |
114.42m²
(34.61坪)
|
築年月 |
1986年8月 |
| 土地面積 |
107.47m²
(32.5坪)
|
構造 |
木造 地上2階建 |
| 間取り |
4LDK |
|
|
◎北西側約4.3m公道
◎全居室2面採光の4LDK
◎出窓を配したLDK(約15.1畳)
◎家事動線に考慮したL字型キッチン
◎車庫有(車種による制限有)
-
| 価格 |
4,480万円
|
| 所在地 |
神奈川県横浜市鶴見区朝日町1丁目 |
| 交通 |
鶴見線 「安善」駅 徒歩7分
鶴見線 「浅野」駅 徒歩9分
|
| 建物面積 |
98.12m²
(29.68坪)
|
築年月 |
2026年3月 |
| 土地面積 |
69.27m²
(20.95坪)
|
構造 |
木造 地上3階建 |
| 間取り |
3LDK
|
|
|
・建物の周囲を一周できるスペースがあるため、管理メンテナンスしやすい敷地です。
・JR鶴見線「安善駅」約500m 徒歩7分
・JR鶴見線「浅野駅」約660m 徒歩9分
・マルエツ朝日町店 約300m 徒歩4分
・セブンイレブン横浜朝日町1丁目店 約90m 徒歩2分
・セブンイレブン横浜鶴見大東店 約370m 徒歩5分
・横浜大東郵便局 約110m 徒歩2分
・入船小学校 約340m 徒歩5分
・寛政中学校 約500m 徒歩7分
・朝日町公園 約110m 徒歩2分
-
| 価格 |
4,480万円
|
| 所在地 |
神奈川県相模原市南区東林間7丁目 |
| 交通 |
東急田園都市線 「中央林間」駅 徒歩14分
小田急電鉄江ノ島線 「中央林間」駅 徒歩14分
小田急電鉄江ノ島線 「東林間」駅 徒歩15分
|
| 建物面積 |
79.49m²
(24.04坪)
|
築年月 |
2021年3月 |
| 土地面積 |
87.9m²
(26.58坪)
|
構造 |
木造 地上2階建 |
| 間取り |
3LDK |
|
|
低層住居専用地域、南道路、土地権利所有権の物件です。駐車場有の物件です。
-
| 価格 |
3,790万円
|
| 所在地 |
神奈川県横浜市鶴見区浜町1丁目 |
| 交通 |
鶴見線 「浅野」駅 徒歩10分
京浜東北・根岸線 「鶴見」駅 徒歩26分
京浜急行電鉄本線 「京急鶴見」駅 徒歩24分
|
| 建物面積 |
106.59m²
(32.24坪)
|
築年月 |
2005年12月 |
| 土地面積 |
53.6m²
(16.21坪)
|
構造 |
木造 地上3階建 |
| 間取り |
4LDK |
|
|
駅徒歩10分以内、幅員6m以上、南道路、土地権利所有権の物件です。建物面積100m2以上、4LDK以上の物件です。
-
| 価格 |
7,480万円
|
| 所在地 |
神奈川県川崎市幸区東古市場 |
| 交通 |
南武線 「鹿島田」駅 徒歩19分
東海道本線 「川崎」駅 バス15分 「東古市場」バス停下車 徒歩2分
東急東横線 「武蔵小杉」駅 バス20分 「東古市場」バス停下車 徒歩2分
|
| 建物面積 |
89.42m²
(27.04坪)
|
築年月 |
2015年2月 |
| 土地面積 |
84.23m²
(25.47坪)
|
構造 |
木造 地上2階建 |
| 間取り |
1LDK+納戸(S) |
|
|
-
| 価格 |
5,190万円
|
| 所在地 |
神奈川県横浜市青葉区あかね台2丁目 |
| 交通 |
東急こどもの国線 「恩田」駅 徒歩15分
横浜線 「成瀬」駅 徒歩22分
東急田園都市線 「長津田」駅 徒歩29分
|
| 建物面積 |
128.03m²
(38.72坪)
|
築年月 |
1999年9月 |
| 土地面積 |
219.27m²
(66.32坪)
|
構造 |
軽量鉄骨 地上2階 地下1階建 |
| 間取り |
4LDK |
|
|
幅員6m以上、低層住居専用地域、土地権利所有権の物件です。駐車場有、建物面積100m2以上、4LDK以上、即入居可の物件です。
-
| 価格 |
9,480万円
|
| 所在地 |
神奈川県横浜市中区竹之丸 |
| 交通 |
京浜東北・根岸線 「山手」駅 徒歩5分
|
| 建物面積 |
91.87m²
(27.79坪)
|
築年月 |
2015年10月 |
| 土地面積 |
100.62m²
(30.43坪)
|
構造 |
木造 地上2階建 |
| 間取り |
4LDK |
|
|
駅徒歩5分以内、低層住居専用地域、南西道路、土地権利所有権の物件です。駐車場有、4LDK以上の物件です。
-
| 価格 |
7,880万円
|
| 所在地 |
神奈川県鎌倉市稲村ガ崎4丁目 |
| 交通 |
江ノ島電鉄 「稲村ヶ崎」駅 徒歩6分
|
| 建物面積 |
97.09m²
(29.36坪)
|
築年月 |
2001年8月 |
| 土地面積 |
304.39m²
(92.07坪)
|
構造 |
木造 地上1階建 |
| 間取り |
2LDK+納戸(S) |
|
|
駅徒歩10分以内、低層住居専用地域、角地、土地権利所有権の物件です。駐車場有の物件です。
-
| 価格 |
4,780万円
|
| 所在地 |
神奈川県川崎市川崎区中瀬3丁目 |
| 交通 |
京浜急行電鉄大師線 「東門前」駅 徒歩7分
東海道本線 「川崎」駅 バス15分 「中瀬三丁目」バス停下車 徒歩5分
京浜東北・根岸線 「川崎」駅 バス15分 「中瀬三丁目」バス停下車 徒歩5分
|
| 建物面積 |
81.56m²
(24.67坪)
|
築年月 |
2002年1月 |
| 土地面積 |
71.69m²
(21.68坪)
|
構造 |
木造 地上2階建 |
| 間取り |
3LDK |
|
|
駅徒歩10分以内、幅員6m以上、両面道路、南道路、土地権利所有権の物件です。
-
| 価格 |
4,200万円
|
| 所在地 |
神奈川県横浜市金沢区富岡東2丁目 |
| 交通 |
金沢シーサイドライン 「南部市場」駅 徒歩8分
金沢シーサイドライン 「鳥浜」駅 徒歩8分
京浜急行電鉄本線 「京急富岡」駅 徒歩24分
|
| 建物面積 |
90.72m²
(27.44坪)
|
築年月 |
2011年1月 |
| 土地面積 |
96.03m²
(29.04坪)
|
構造 |
木造 地上2階建 |
| 間取り |
4LDK |
|
|
駅徒歩10分以内、幅員6m以上、南東道路、土地権利所有権の物件です。駐車場有、4LDK以上の物件です。
最近見た物件
-
-
芦屋市大原町
-
26,000万円
-
243.4m²(73.62坪)
-
東海道本線 「芦屋」駅 徒歩11分