横須賀線の駅徒歩20分以内の新築・中古一戸建て物件一覧
横須賀線の駅徒歩20分以内の新築・中古一戸建て購入は、三菱UFJ不動産販売の住まい1にお任せください。地域や沿線などご希望の条件から物件をお探しいただけます。物件の見学(内見)のお問い合わせもお気軽にどうぞ。
-
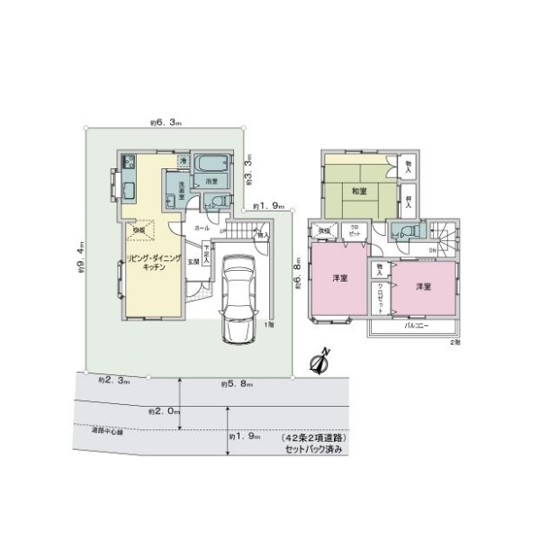
| 価格 |
4,980万円
|
| 所在地 |
神奈川県川崎市中原区小杉陣屋町2丁目 |
| 交通 |
東急目黒線 「新丸子」駅 徒歩18分
東急東横線 「新丸子」駅 徒歩18分
湘南新宿ライン(宇都宮~逗子) 「武蔵小杉」駅 徒歩20分
|
| 建物面積 |
72.35m²
(21.88坪)
|
築年月 |
2024年6月 |
| 土地面積 |
77.84m²
(23.54坪)
|
構造 |
木造 地上3階建 |
| 間取り |
2LDK+納戸(S)×1 |
|
|
・武蔵小杉駅が近く、「武蔵小杉東急スクエア」や「グランツリー武蔵小杉」など大型商業施設が充実しております。
・京浜川崎ICまで約4.5km(車約11分)、中原街道や環八通りともアクセスが良く通勤やお出かけにも便利です!
・等々力競技場まで約770m(徒歩約10分、車約3分)、スポーツや子育てに適した、自然豊かで穏やかな住環境です。
・小学校、中学校ともに徒歩10分圏内。
・東急電鉄目黒線、東横線の2路線利用可能!
JR「武蔵小杉」駅も徒歩20分でアクセスでき、都心へのアクセスも良好です!
-
| 価格 |
33,800万円
|
| 所在地 |
神奈川県鎌倉市由比ガ浜2丁目 |
| 交通 |
横須賀線 「鎌倉」駅 徒歩14分
江ノ島電鉄 「和田塚」駅 徒歩5分
江ノ島電鉄 「由比ヶ浜」駅 徒歩6分
|
| 建物面積 |
251.43m²
(76.05坪)
|
築年月 |
2019年11月 |
| 土地面積 |
193.22m²
(58.44坪)
|
構造 |
鉄骨造 地上3階建 |
| 間取り |
4LDK+納戸(S)×2 |
|
|
●積水ハウス株式会社施工
●南西向きL字型バルコニーに面した、ゆとりのLDK
●アイランドキッチン(IHクッキングヒーター)
●各所に床暖房(LD2面・キッチン1面・和室1面)
●1階:納戸・2階洋室に収納力あるWIC
●玄関周りをスッキリと収納できるSIC
●洗面室ダブルボウル
●ホームエレベーター有
●屋上ルーフバルコニーから「相模湾」が望めます(気象条件による)
-
| 価格 |
3,680万円
|
| 所在地 |
神奈川県横浜市戸塚区上倉田町 |
| 交通 |
東海道本線 「戸塚」駅 徒歩10分
湘南新宿ライン(宇都宮~逗子) 「戸塚」駅 徒歩10分
横須賀線 「戸塚」駅 徒歩10分
|
| 建物面積 |
94.26m²
(28.51坪)
|
築年月 |
1993年12月 |
| 土地面積 |
100.46m²
(30.38坪)
|
構造 |
木造 地上2階建 |
| 間取り |
4LDK |
|
|
◆全居室2面採光
◆南向きバルコニーを配したLDK(約13畳)
◆対面カウンターキッチン
◆全居室約6畳以上
◆1階洋室(約6.9畳)にクローゼット2個所有
◆2階廊下部分に手洗い場有
◆各階にトイレ有
-
| 価格 |
1,980万円
|
| 所在地 |
神奈川県鎌倉市大船6丁目 |
| 交通 |
東海道本線 「大船」駅 徒歩18分
京浜東北・根岸線 「大船」駅 徒歩18分
湘南モノレール 「大船」駅 徒歩18分
|
| 建物面積 |
110.13m²
(33.31坪)
|
築年月 |
1975年12月 |
| 土地面積 |
198.34m²
(59.99坪)
|
構造 |
木造 地上2階建 |
| 間取り |
4LDK |
|
|
◇閑静な住宅地でのびのび子育て。
◇大船駅周辺には商業施設が充実しています。
◇3路線利用可能
■ Life Information ━━━━━━━━━━━━━━━・・・・・
・イトーヨーカドー大船店…約890m(徒歩約12分)
・ファミリーマート大船谷之前店…約150m(徒歩約2分)
・ウエルシア鎌倉岩瀬店…約630m(徒歩約8分)
・鎌倉市立小坂小学校…約920m(徒歩約12分)
・鎌倉市立大船中学校…約920m(徒歩約12分)
━━━━━━━━━━━━━━━━━━━━━━━━━━・・・・・
-
| 価格 |
8,780万円
|
| 所在地 |
東京都大田区南馬込2丁目 |
| 交通 |
京浜東北・根岸線 「大森」駅 徒歩16分
都営浅草線 「西馬込」駅 徒歩15分
横須賀線 「西大井」駅 徒歩23分
|
| 建物面積 |
93.35m²
(28.23坪)
|
築年月 |
2016年1月 |
| 土地面積 |
95.27m²
(28.81坪)
|
構造 |
木造 地上2階建 |
| 間取り |
3LDK |
|
|
低層住居専用地域、南道路、土地権利所有権の物件です。駐車場有の物件です。
-
| 価格 |
3,280万円
|
| 所在地 |
神奈川県横浜市神奈川区三ツ沢南町 |
| 交通 |
横浜市営地下鉄ブルーライン 「三ツ沢下町」駅 徒歩8分
京浜東北・根岸線 「横浜」駅 徒歩24分
横浜市営地下鉄ブルーライン 「横浜」駅 徒歩24分
|
| 建物面積 |
86.53m²
(26.17坪)
|
築年月 |
1989年5月 |
| 土地面積 |
85.84m²
(25.96坪)
|
構造 |
木造 地上2階建 |
| 間取り |
3LDK |
|
|
駅徒歩10分以内、低層住居専用地域の物件です。駐車場有、リフォーム済みの物件です。
-
| 価格 |
4,780万円
|
| 所在地 |
神奈川県横浜市戸塚区矢部町 |
| 交通 |
東海道本線 「戸塚」駅 徒歩10分
湘南新宿ライン(前橋~小田原) 「戸塚」駅 徒歩10分
横浜市営地下鉄ブルーライン 「戸塚」駅 徒歩10分
|
| 建物面積 |
100.73m²
(30.47坪)
|
築年月 |
2013年11月 |
| 土地面積 |
68.03m²
(20.57坪)
|
構造 |
木造 地上3階建 |
| 間取り |
2LDK+納戸(S) |
|
|
駅徒歩10分以内、南西道路、土地権利所有権の物件です。駐車場有、建物面積100m2以上、即入居可の物件です。
-
| 価格 |
13,000万円
|
| 所在地 |
東京都大田区南馬込2丁目 |
| 交通 |
都営浅草線 「馬込」駅 徒歩12分
京浜東北・根岸線 「大森」駅 徒歩15分
横須賀線 「西大井」駅 徒歩23分
|
| 建物面積 |
179.5m²
(54.29坪)
|
築年月 |
2007年9月 |
| 土地面積 |
198.85m²
(60.15坪)
|
構造 |
軽量鉄骨 地上2階建 |
| 間取り |
5LDK |
|
|
幅員6m以上、低層住居専用地域、南西道路、土地権利所有権の物件です。駐車場有、建物面積100m2以上、4LDK以上の物件です。
-
| 価格 |
11,380万円
|
| 所在地 |
神奈川県川崎市中原区今井仲町 |
| 交通 |
南武線 「武蔵小杉」駅 徒歩9分
東急東横線 「武蔵小杉」駅 徒歩10分
|
| 建物面積 |
134.96m²
(40.82坪)
|
築年月 |
2012年9月 |
| 土地面積 |
85.74m²
(25.93坪)
|
構造 |
木造 地上3階建 |
| 間取り |
3LDK+納戸(S) |
|
|
駅徒歩10分以内、南道路、土地権利所有権の物件です。駐車場有、建物面積100m2以上の物件です。
-
| 価格 |
14,800万円
|
| 所在地 |
神奈川県鎌倉市長谷1丁目 |
| 交通 |
横須賀線 「鎌倉」駅 徒歩17分
湘南新宿ライン(宇都宮~逗子) 「鎌倉」駅 徒歩17分
江ノ島電鉄 「鎌倉」駅 徒歩17分
|
| 建物面積 |
217.13m²
(65.68坪)
|
築年月 |
2005年4月 |
| 土地面積 |
194.54m²
(58.84坪)
|
構造 |
鉄骨造 地上3階建 |
| 間取り |
4LDK |
|
|
土地権利所有権の物件です。駐車場有、鉄骨造、建物面積100m2以上、4LDK以上の物件です。
-
| 価格 |
3,280万円
|
| 所在地 |
神奈川県横浜市戸塚区戸塚町 |
| 交通 |
東海道本線 「戸塚」駅 徒歩16分
横浜市営地下鉄ブルーライン 「戸塚」駅 徒歩16分
横須賀線 「戸塚」駅 徒歩16分
|
| 建物面積 |
86.61m²
(26.19坪)
|
築年月 |
1986年8月 |
| 土地面積 |
150.11m²
(45.4坪)
|
構造 |
木造 地上2階建 |
| 間取り |
4LDK |
|
|
低層住居専用地域、両面道路、南道路、土地権利所有権の物件です。駐車場有、4LDK以上の物件です。
-
| 価格 |
5,280万円
|
| 所在地 |
神奈川県横浜市神奈川区三ツ沢中町 |
| 交通 |
横浜市営地下鉄ブルーライン 「三ツ沢上町」駅 徒歩7分
横浜市営地下鉄ブルーライン 「三ツ沢下町」駅 徒歩6分
京浜東北・根岸線 「横浜」駅 バス12分 「三ツ沢小学校前」バス停下車 徒歩3分
|
| 建物面積 |
96.19m²
(29.09坪)
|
築年月 |
2018年9月 |
| 土地面積 |
105.24m²
(31.83坪)
|
構造 |
木造 地上2階建 |
| 間取り |
2LDK+納戸(S) |
|
|
駅徒歩10分以内、低層住居専用地域、土地権利所有権の物件です。駐車場有、即入居可の物件です。
-
| 価格 |
12,980万円
|
| 所在地 |
東京都品川区西大井6丁目 |
| 交通 |
横須賀線 「西大井」駅 徒歩7分
|
| 建物面積 |
111.71m²
(33.79坪)
|
築年月 |
2007年9月 |
| 土地面積 |
92.55m²
(27.99坪)
|
構造 |
木造 地上2階 地下1階建 |
| 間取り |
3LDK |
|
|
駅徒歩10分以内、土地権利所有権の物件です。駐車場有、建物面積100m2以上の物件です。
-
| 価格 |
7,280万円
|
| 所在地 |
神奈川県川崎市中原区西加瀬 |
| 交通 |
東急東横線 「元住吉」駅 徒歩8分
東急目黒線 「元住吉」駅 徒歩8分
南武線 「武蔵小杉」駅 バス9分 「苅宿」バス停下車 徒歩3分
|
| 建物面積 |
78.39m²
(23.71坪)
|
築年月 |
2024年4月 |
| 土地面積 |
51.84m²
(15.68坪)
|
構造 |
木造 地上3階建 |
| 間取り |
2LDK+納戸(S) |
|
|
駅徒歩10分以内、土地権利所有権の物件です。駐車場有、築浅の物件です。
-
| 価格 |
2,480万円
|
| 所在地 |
神奈川県横浜市保土ケ谷区鎌谷町 |
| 交通 |
相模鉄道本線 「星川」駅 徒歩15分
東海道本線 「横浜」駅 バス18分 「岡沢上」バス停下車 徒歩5分
相模鉄道本線 「天王町」駅 徒歩28分
|
| 建物面積 |
79.53m²
(24.05坪)
|
築年月 |
1991年4月 |
| 土地面積 |
93.28m²
(28.21坪)
|
構造 |
木造 地上2階建 |
| 間取り |
3LDK |
|
|
低層住居専用地域、土地権利所有権の物件です。駐車場有の物件です。
-
| 価格 |
5,370万円
|
| 所在地 |
神奈川県川崎市幸区小倉4丁目 |
| 交通 |
南武線 「矢向」駅 徒歩15分
横須賀線 「新川崎」駅 徒歩21分
南武線 「鹿島田」駅 徒歩22分
|
| 建物面積 |
109.55m²
(33.13坪)
|
築年月 |
1989年4月 |
| 土地面積 |
93.76m²
(28.36坪)
|
構造 |
軽量鉄骨 地上2階建 |
| 間取り |
3LDK |
|
|
南道路、土地権利所有権の物件です。建物面積100m2以上の物件です。
-
| 価格 |
7,280万円
|
| 所在地 |
神奈川県横浜市西区岡野2丁目 |
| 交通 |
湘南新宿ライン(前橋~小田原) 「横浜」駅 徒歩13分
東急東横線 「横浜」駅 徒歩13分
横浜市営地下鉄ブルーライン 「横浜」駅 徒歩12分
|
| 建物面積 |
70.93m²
(21.45坪)
|
築年月 |
2022年8月 |
| 土地面積 |
50.03m²
(15.13坪)
|
構造 |
木造 地上3階建 |
| 間取り |
1LDK |
|
|
南西道路、土地権利所有権の物件です。駐車場有、築浅の物件です。
-
| 価格 |
21,600万円
|
| 所在地 |
神奈川県鎌倉市雪ノ下2丁目 |
| 交通 |
横須賀線 「鎌倉」駅 徒歩15分
江ノ島電鉄 「鎌倉」駅 徒歩15分
横須賀線 「北鎌倉」駅 バス4分 「八幡宮裏」バス停下車 徒歩4分
|
| 建物面積 |
109.63m²
(33.16坪)
|
築年月 |
1967年7月 |
| 土地面積 |
950.82m²
(287.62坪)
|
構造 |
RC 地上2階建 |
| 間取り |
3LDK |
|
|
低層住居専用地域、土地権利所有権の物件です。駐車場有、鉄筋コンクリート造、建物面積100m2以上の物件です。
-
| 価格 |
4,680万円
|
| 所在地 |
神奈川県横浜市戸塚区上倉田町 |
| 交通 |
東海道本線 「戸塚」駅 徒歩14分
横浜市営地下鉄ブルーライン 「戸塚」駅 徒歩14分
横浜市営地下鉄ブルーライン 「舞岡」駅 徒歩13分
|
| 建物面積 |
77.9m²
(23.56坪)
|
築年月 |
2023年10月 |
| 土地面積 |
50.7m²
(15.33坪)
|
構造 |
木造 地上3階建 |
| 間取り |
2LDK+納戸(S) |
|
|
土地権利所有権の物件です。駐車場有、築浅の物件です。
-
| 価格 |
5,490万円
|
| 所在地 |
神奈川県横浜市戸塚区前田町 |
| 交通 |
横須賀線 「東戸塚」駅 徒歩15分
|
| 建物面積 |
140.14m²
(42.39坪)
|
築年月 |
1997年9月 |
| 土地面積 |
176.57m²
(53.41坪)
|
構造 |
軽量鉄骨 地上2階建 |
| 間取り |
3LDK |
|
|
低層住居専用地域、土地権利所有権の物件です。駐車場有、建物面積100m2以上の物件です。
-
| 価格 |
6,880万円
|
| 所在地 |
神奈川県横浜市西区元久保町 |
| 交通 |
横須賀線 「保土ケ谷」駅 徒歩7分
湘南新宿ライン(宇都宮~逗子) 「保土ケ谷」駅 徒歩7分
|
| 建物面積 |
130.26m²
(39.4坪)
|
築年月 |
2006年3月 |
| 土地面積 |
215.01m²
(65.04坪)
|
構造 |
木造 地上2階建 |
| 間取り |
3LDK |
|
|
駅徒歩10分以内、土地権利所有権の物件です。駐車場有、建物面積100m2以上の物件です。
-
| 価格 |
4,290万円
|
| 所在地 |
神奈川県川崎市中原区上平間 |
| 交通 |
南武線 「平間」駅 徒歩10分
横須賀線 「新川崎」駅 徒歩24分
東急多摩川線 「下丸子」駅 徒歩21分
|
| 建物面積 |
88.34m²
(26.72坪)
|
築年月 |
2000年12月 |
| 土地面積 |
50.92m²
(15.4坪)
|
構造 |
木造 地上3階建 |
| 間取り |
3DK+納戸(S) |
|
|
駅徒歩10分以内、南東道路、土地権利所有権の物件です。
-
| 価格 |
4,480万円
|
| 所在地 |
神奈川県横浜市戸塚区吉田町 |
| 交通 |
東海道本線 「戸塚」駅 徒歩17分
横浜市営地下鉄ブルーライン 「戸塚」駅 徒歩17分
横須賀線 「戸塚」駅 徒歩17分
|
| 建物面積 |
71.52m²
(21.63坪)
|
築年月 |
2022年1月 |
| 土地面積 |
62.87m²
(19.01坪)
|
構造 |
木造 地上3階建 |
| 間取り |
1LDK+納戸(S) |
|
|
土地権利所有権の物件です。駐車場有、築浅の物件です。
-
| 価格 |
26,800万円
|
| 所在地 |
神奈川県鎌倉市雪ノ下1丁目 |
| 交通 |
横須賀線 「鎌倉」駅 徒歩7分
江ノ島電鉄 「鎌倉」駅 徒歩7分
|
| 建物面積 |
228.18m²
(69.02坪)
|
築年月 |
2010年9月 |
| 土地面積 |
189.25m²
(57.24坪)
|
構造 |
鉄骨造 地上3階建 |
| 間取り |
4LDK+納戸(S) |
|
|
駅徒歩10分以内、南西道路、土地権利所有権の物件です。駐車場有、鉄骨造、建物面積100m2以上、4LDK以上の物件です。
-
| 価格 |
13,000万円
|
| 所在地 |
神奈川県川崎市中原区上丸子山王町1丁目 |
| 交通 |
東急東横線 「新丸子」駅 徒歩6分
南武線 「武蔵小杉」駅 徒歩8分
横須賀線 「武蔵小杉」駅 徒歩10分
|
| 建物面積 |
105.98m²
(32.05坪)
|
築年月 |
2020年3月 |
| 土地面積 |
90.05m²
(27.24坪)
|
構造 |
木造 地上3階建 |
| 間取り |
4LDK |
|
|
駅徒歩10分以内、土地権利所有権の物件です。建物面積100m2以上、4LDK以上の物件です。
-
| 価格 |
6,480万円
|
| 所在地 |
東京都品川区大井7丁目 |
| 交通 |
京浜東北・根岸線 「大森」駅 徒歩8分
湘南新宿ライン(宇都宮~逗子) 「西大井」駅 徒歩17分
京浜急行電鉄本線 「大森海岸」駅 徒歩18分
|
| 建物面積 |
89.25m²
(26.99坪)
|
築年月 |
1996年4月 |
| 土地面積 |
52.14m²
(15.77坪)
|
構造 |
木造 地上2階 地下1階建 |
| 間取り |
2LDK+納戸(S) |
|
|
駅徒歩10分以内、低層住居専用地域、南道路、土地権利所有権の物件です。
-
| 価格 |
4,480万円
|
| 所在地 |
神奈川県横浜市戸塚区矢部町 |
| 交通 |
横浜市営地下鉄ブルーライン 「踊場」駅 徒歩14分
東海道本線 「戸塚」駅 徒歩18分
東海道本線 「戸塚」駅 バス4分 「谷矢部中央」バス停下車 徒歩2分
|
| 建物面積 |
131.93m²
(39.9坪)
|
築年月 |
1991年9月 |
| 土地面積 |
164.78m²
(49.84坪)
|
構造 |
木造 地上2階建 |
| 間取り |
4LDK |
|
|
幅員6m以上、低層住居専用地域、土地権利所有権の物件です。駐車場有、建物面積100m2以上、4LDK以上の物件です。