建築条件なしの土地特集の土地・売地一覧(7ページ)
建築条件なしの土地で自分好みのマイホームを建てたい!住みたい街のエリアや沿線からお好みの土地を選んで、お気に入りのハウスメーカーで理想の住まいを建てよう!
-
-
-
-
-
-
-
-
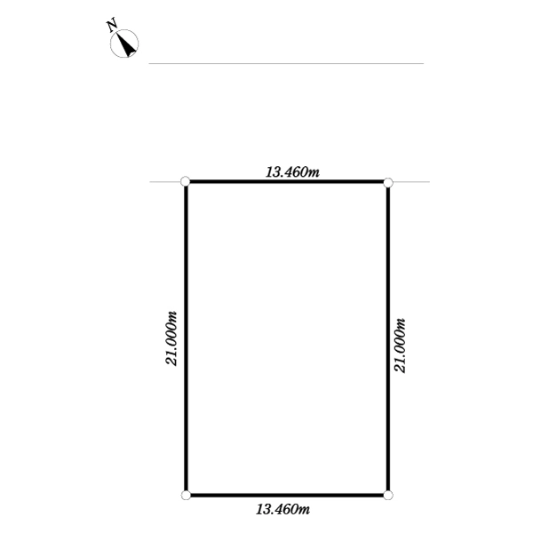
価格 2,150万円 所在地 神奈川県秦野市立野台2丁目 交通 小田急電鉄小田原線 「秦野」駅 徒歩24分 土地面積 209m² (63.22坪) 建ぺい率/容積率 50%/100% ◆小田急小田原線「秦野」駅が最寄りの209m2(約63.22坪)の整形地 ◆建築条件付土地ではございません お好きなハウスメーカーで建築できます ◆第一種低層住居専用地域 ◆南東側約5.0m公道に接道、陽当たり良好 ◆スーパー・コンビニ・教育施設・公園が徒歩10分以内、子育てにもやさしい環境 【Life Information】 ヨークフーズ西大竹店…約630m セブンイレブン秦野西大竹店…約430m にこにこ保育園…約400m 南が丘小学校…約670m 南が丘中学校…約1500m まえだ公園…約470m 秦野赤十字病院…約560m
-
-
-
-
-
-
-
-
-
-
-
-
-
-
-
-
-
-
-
-
-
-
























































































































