鷺沼東ロイヤルマンション マンション NEW 神奈川県川崎市宮前区東有馬2丁目 東急田園都市線 「鷺沼」駅 バス10分 「寺台」バス停下車 徒歩4分 東急田園都市線 「宮崎台」駅 徒歩18分 2,580万円 3LDK 71.9m² 3階/5階建 1982年8月
グレーシアステイツいずみ野 マンション NEW 神奈川県横浜市泉区和泉町 相模鉄道いずみ野線 「いずみ野」駅 徒歩3分 横浜市営地下鉄ブルーライン 「立場」駅 バス8分 「いずみ野駅」バス停下車 徒歩3分 相模鉄道本線 「三ツ境」駅 バス21分 「いずみ野駅」バス停下車 徒歩3分 3,980万円 3LDK 79.23m² 1階/3階建 2008年2月
メインステージ十条II マンション NEW 東京都北区中十条1丁目 埼京線 「十条」駅 徒歩9分 京浜東北・根岸線 「東十条」駅 徒歩7分 京浜東北・根岸線 「王子」駅 徒歩16分 6,980万円 3LDK+納戸(S) 56.19m² 6階/14階建 2020年10月
アスタ新長田タワーズコート6番館コート棟 マンション NEW 兵庫県神戸市長田区二葉町6丁目 神戸市海岸線 「駒ヶ林」駅 徒歩4分 山陽本線 「新長田」駅 徒歩8分 神戸市西神山手線 「新長田」駅 徒歩8分 2,490万円 2LDK 60.53m² 5階/7階建 2002年9月
高輪シティハウス マンション NEW 東京都港区高輪3丁目 都営浅草線 「高輪台」駅 徒歩6分 山手線 「品川」駅 徒歩14分 京浜東北・根岸線 「高輪ゲートウェイ」駅 徒歩11分 84,800万円 5LDK+納戸(S) 231.92m² 15階/15階建 2000年6月
S4−Tower マンション NEW 埼玉県さいたま市中央区上落合5丁目 京浜東北・根岸線 「大宮」駅 徒歩11分 埼京線 「北与野」駅 徒歩11分 京浜東北・根岸線 「さいたま新都心」駅 徒歩12分 6,490万円 3LDK 85.36m² 18階/32階建 2002年8月
D’クラディア行徳 マンション NEW 千葉県市川市新浜1丁目 東京メトロ東西線 「行徳」駅 徒歩10分 東京メトロ東西線 「妙典」駅 バス9分 「行徳中央病院」バス停下車 徒歩1分 4,080万円 3LDK 67.01m² 2階/10階建 2003年8月
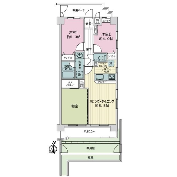
トーカン柏キャステール マンション NEW 千葉県柏市柏3丁目 千代田・常磐緩行線 「柏」駅 徒歩6分 東武鉄道野田線 「柏」駅 徒歩6分 3,180万円 2LDK 78.03m² 6階/9階建 1987年5月
ヴィラージュ南青山 マンション NEW 東京都港区南青山6丁目 東京メトロ銀座線 「表参道」駅 徒歩12分 東京メトロ千代田線 「表参道」駅 徒歩12分 東京メトロ副都心線 「渋谷」駅 徒歩18分 17,900万円 2LDK 72.2m² 9階/13階建 1997年12月
三陽ハイツ都島 マンション NEW 大阪府大阪市都島区大東町1丁目 おおさか東線 「城北公園通」駅 徒歩3分 大阪メトロ谷町線 「都島」駅 徒歩24分 大阪メトロ谷町線 「野江内代」駅 徒歩28分 2,380万円 2LDK 73.51m² 13階/13階建 1981年3月
ライオンズマンション錦糸町第2 マンション NEW 東京都墨田区太平1丁目 総武本線 「錦糸町」駅 徒歩8分 東京メトロ半蔵門線 「錦糸町」駅 徒歩9分 6,580万円 2LDK 58.42m² 9階/10階建 1980年5月
あべのクオレ マンション NEW 大阪府大阪市阿倍野区阿倍野筋3丁目 大阪メトロ谷町線 「阿倍野」駅 徒歩4分 大阪メトロ御堂筋線 「天王寺」駅 徒歩9分 大阪環状線 「天王寺」駅 徒歩9分 4,780万円 4LDK 77.72m² 13階/14階建 1992年10月
ライオンズマンション中央林間南 マンション NEW 神奈川県大和市中央林間1丁目 東急田園都市線 「中央林間」駅 徒歩10分 小田急電鉄江ノ島線 「中央林間」駅 徒歩10分 3,280万円 3LDK 58.8m² 1階/5階建 1995年8月
ライオンズマンション赤塚公園第3 マンション NEW 東京都板橋区四葉2丁目 都営三田線 「新高島平」駅 徒歩14分 東武鉄道東上線 「成増」駅 バス9分 「四葉町」バス停下車 徒歩4分 4,550万円 4LDK 80.19m² 5階/5階建 2000年6月
ライオンズガーデン金町リバーステージ マンション NEW 東京都葛飾区東金町6丁目 千代田・常磐緩行線 「金町」駅 徒歩14分 京成電鉄金町線 「京成金町」駅 徒歩16分 4,150万円 4LDK 86.37m² 1階/5階建 1997年2月
ライオンズ船橋本町マークスフォート マンション NEW 千葉県船橋市本町3丁目 総武線 「船橋」駅 徒歩11分 東武鉄道野田線 「船橋」駅 徒歩11分 京成電鉄本線 「京成船橋」駅 徒歩10分 5,998万円 3LDK 66.17m² 7階/12階建 2020年2月
ヴェレーナシティ パレ・ド・プラージュ マンション NEW 東京都北区浮間5丁目 埼京線 「北赤羽」駅 徒歩11分 都営三田線 「志村坂上」駅 徒歩14分 6,780万円 3LDK 75.46m² 8階/13階建 2016年6月
デュオコート武蔵浦和 マンション NEW 埼玉県戸田市美女木北3丁目 埼京線 「北戸田」駅 徒歩18分 埼京線 「武蔵浦和」駅 徒歩22分 3,280万円 3LDK 70.31m² 10階/10階建 2002年2月
ローレルタワールネ浜松町 マンション NEW 東京都港区海岸2丁目 ゆりかもめ 「日の出」駅 徒歩2分 山手線 「浜松町」駅 徒歩11分 都営三田線 「三田」駅 徒歩13分 12,380万円 1LDK 51.09m² 14階/23階建 2020年1月
ライオンズヒルズ妙蓮寺 マンション NEW 神奈川県横浜市港北区篠原東2丁目 東急東横線 「妙蓮寺」駅 徒歩12分 横浜市営地下鉄ブルーライン 「岸根公園」駅 徒歩10分 5,280万円 3LDK 85.69m² 1階/7階建 1995年1月
常盤台グリーンハイツ マンション NEW 東京都板橋区常盤台3丁目 東武鉄道東上線 「上板橋」駅 徒歩7分 東武鉄道東上線 「ときわ台」駅 徒歩10分 2,590万円 1LDK+納戸(S) 46.87m² 6階/7階建 1974年4月
パークマンション三田綱町ザフォレスト マンション NEW 東京都港区三田2丁目 東京メトロ南北線 「麻布十番」駅 徒歩7分 都営大江戸線 「麻布十番」駅 徒歩7分 都営三田線 「三田」駅 徒歩13分 79,800万円 3LDK+納戸(S) 126.35m² 2階/11階建 2015年12月
レーベン立石DUNAMIS マンション NEW 東京都葛飾区東立石3丁目 京成電鉄押上線 「京成立石」駅 徒歩6分 京成電鉄押上線 「四ツ木」駅 徒歩14分 5,980万円 2LDK 54.53m² 11階/15階建 2022年6月
ミオカステーロ雪ヶ谷アルテパラッツォ マンション NEW 東京都大田区南雪谷5丁目 東急池上線 「御嶽山」駅 徒歩13分 東急池上線 「雪が谷大塚」駅 徒歩15分 京浜東北・根岸線 「蒲田」駅 バス24分 「雪谷文化センター」バス停下車 徒歩2分 7,180万円 3LDK 84.96m² 1階/8階建 2003年8月
クリオ茅ヶ崎サザンマークス マンション NEW 神奈川県茅ヶ崎市幸町 東海道本線 「茅ケ崎」駅 徒歩2分 湘南新宿ライン(前橋~小田原) 「茅ケ崎」駅 徒歩2分 相模線 「茅ケ崎」駅 徒歩2分 7,880万円 3LDK 70.54m² 7階/11階建 2019年1月