近鉄難波・奈良線鶴橋駅の駅徒歩10分以内の中古マンション物件一覧
近鉄難波・奈良線鶴橋駅の駅徒歩10分以内の中古マンション購入は、三菱UFJ不動産販売の住まい1にお任せください。地域や沿線などご希望の条件から物件をお探しいただけます。物件の見学(内見)のお問い合わせもお気軽にどうぞ。
-
| 価格 |
9,480万円
|
| 所在地 |
大阪府大阪市天王寺区筆ケ崎町 |
| 交通 |
近鉄大阪線 「大阪上本町」駅 徒歩7分
近鉄難波・奈良線 「大阪上本町」駅 徒歩7分
近鉄大阪線 「鶴橋」駅 徒歩10分
|
| 専有面積 |
77.53m²
(23.45坪)
壁芯
|
築年月 |
2007年6月 |
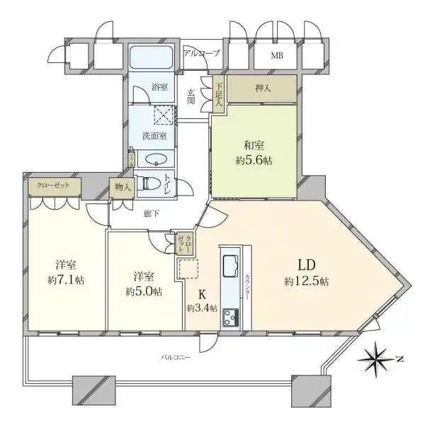
| 間取り |
3LDK+納戸(S)×1 |
所在階 |
25階/37階建 |
2026年1月新規内装リフォーム実施●新規交換:システムキッチン、ユニットバス、洗面化粧台、ウォシュレット(TOTO製)、洗濯用防水パン●新規張替え:クロス(全室)、フローリング(廊下・全室)、フロアタイル(洗面室)、トイレ(クッションフロア)、タイル(玄関土間)●その他:間取り変更(キッチンオープン、パントリー造作、玄関スペース拡張)、ハウスクリーニング◎「桃坂コンフォガーデン」街区のタワーマンション◎全居室にバルコニーが面する角住戸◎2面採光のLD(約12畳)に床暖房(2面)◎LDを見渡せる開放的な対面カウンターキッチン◎廊下部分に納戸(約1.2畳)
-
| 価格 |
3,780万円
|
| 所在地 |
大阪府大阪市天王寺区真田山町 |
| 交通 |
大阪メトロ千日前線 「鶴橋」駅 徒歩4分
|
| 専有面積 |
54.54m²
(16.49坪)
壁芯
|
築年月 |
1986年1月 |
| 間取り |
3DK |
所在階 |
6階/14階建 |
駅徒歩5分以内、土地権利所有権の物件です。鉄骨鉄筋コンクリート造、2階以上、南(南東・南西)バルコニーの物件です。
-
| 価格 |
9,880万円
|
| 所在地 |
大阪府大阪市天王寺区筆ケ崎町 |
| 交通 |
近鉄大阪線 「大阪上本町」駅 徒歩7分
大阪メトロ谷町線 「谷町九丁目」駅 徒歩9分
大阪環状線 「鶴橋」駅 徒歩10分
|
| 専有面積 |
76.5m²
(23.14坪)
壁芯
|
築年月 |
2007年6月 |
| 間取り |
3LDK |
所在階 |
34階/37階建 |
駅徒歩10分以内、土地権利所有権の物件です。鉄筋コンクリート造、タワー型(階数が20階建以上)、10階以上、大規模マンション(100戸以上)の物件です。