世田谷区の駅徒歩15分以内の中古マンション物件一覧
世田谷区の駅徒歩15分以内の中古マンション購入は、三菱UFJ不動産販売の住まい1にお任せください。地域や沿線などご希望の条件から物件をお探しいただけます。物件の見学(内見)のお問い合わせもお気軽にどうぞ。
-
| 価格 |
9,500万円
|
| 所在地 |
東京都世田谷区成城2丁目 |
| 交通 |
小田急電鉄小田原線 「成城学園前」駅 徒歩4分
|
| 専有面積 |
91.91m²
(27.8坪)
壁芯
|
築年月 |
2005年3月 |
| 間取り |
1LDK |
所在階 |
1階/3階建 |
∴Life Information‥∵‥∴‥∵‥∴‥∵‥∴‥∴‥∵‥∴‥∵‥・
◇ローソン成城二丁目店・・・約220m(徒歩3分)
◇Olympic成城店・・・約320m(徒歩4分)
◇成城石井成城店・・・約410m(徒歩6分)
◇成城コルティ・・・約330m(徒歩4分)
◇ココカラファイン泰平薬局成城店・・・約230m(徒歩3分)
◇世田谷区成城二郵便局・・・約40m(徒歩1分)
◇高橋医院(内科)・・・約80m(徒歩1分)
◇明正公園・・・約260m(徒歩4分)
※距離は地図上の概測です。
※徒歩分数は80mを1分として換算し、端数は切り上げています。
-
| 価格 |
7,880万円
|
| 所在地 |
東京都世田谷区下馬2丁目 |
| 交通 |
東急田園都市線 「三軒茶屋」駅 徒歩9分
東急世田谷線 「三軒茶屋」駅 徒歩13分
|
| 専有面積 |
43.97m²
(13.3坪)
壁芯
|
築年月 |
2013年1月 |
| 間取り |
1LDK |
所在階 |
2階/5階建 |
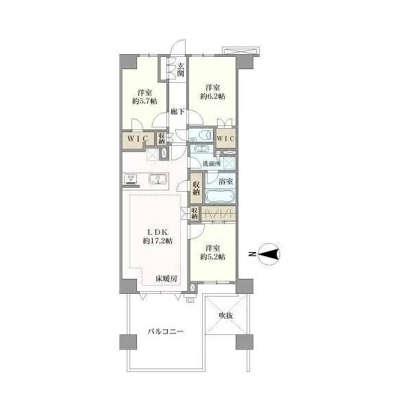
「三軒茶屋」駅周辺は商業施設が点在する暮らしにやさしい住環境
◎2013年1月築、丸紅(株)旧分譲
◎南東向きバルコニーに面するLD(約9.8畳)
◎対面カウンターキッチン(約2.9畳)
◎洋室(約5畳)に収納力のある3連クローゼット
-
| 価格 |
9,480万円
|
| 所在地 |
東京都世田谷区北沢1丁目 |
| 交通 |
小田急電鉄小田原線 「東北沢」駅 徒歩2分
京王電鉄井の頭線 「池ノ上」駅 徒歩7分
|
| 専有面積 |
56.5m²
(17.09坪)
壁芯
|
築年月 |
1983年2月 |
| 間取り |
2LDK |
所在階 |
2階/5階建 |
リフォーム済(2026年4月/キッチン・浴室・トイレ・壁・床・全室・洗面化粧台)
東北沢駅徒歩2分、下北沢・代々木上原も生活圏のロケーションにフルリノベ住戸登場!
●2026年4月 新規内装リフォーム実施
【新規交換】
・キッチン
・洗面化粧台
・トイレ
・ユニットバス
【新規張替】・全室フローリング、クロス
【その他】 ・ハウスクリーニング
・設計事務所が手掛けたデザインリノベ
・TOTO ハイグレードキッチンを採用
・ホテルライクなダブルボウル洗面台
・スピーカー付き照明で音に包まれる空間
-
| 価格 |
23,000万円
|
| 所在地 |
東京都世田谷区成城2丁目 |
| 交通 |
小田急電鉄小田原線 「成城学園前」駅 徒歩1分
|
| 専有面積 |
70.39m²
(21.29坪)
壁芯
|
築年月 |
2021年2月 |
| 間取り |
2LDK |
所在階 |
2階/10階建 |
<2021年2月築、三井不動産レジデンシャル(株)旧分譲>
〇南東向きバルコニーに面する2LDK 〇対面カウンターキッチン(約3.2畳)○二面採光のLD(約16畳)〇洋室(約6畳)にWIC(約1畳) 〇玄関にSIC(約1.2畳) 〇宅配ロッカー○オートロック
-
| 価格 |
15,900万円
|
| 所在地 |
東京都世田谷区池尻4丁目 |
| 交通 |
京王電鉄井の頭線 「駒場東大前」駅 徒歩8分
東急田園都市線 「池尻大橋」駅 徒歩13分
京王電鉄井の頭線 「池ノ上」駅 徒歩14分
|
| 専有面積 |
75.98m²
(22.98坪)
壁芯
|
築年月 |
2007年11月 |
| 間取り |
2LDK |
所在階 |
2階/9階建 |
駅徒歩10分以内、土地権利所有権の物件です。鉄筋コンクリート造、2階以上、大規模マンション(100戸以上)、南(南東・南西)バルコニーの物件です。
-
| 価格 |
20,980万円
|
| 所在地 |
東京都世田谷区玉川3丁目 |
| 交通 |
東急田園都市線 「二子玉川」駅 徒歩2分
東急大井町線 「二子玉川」駅 徒歩2分
|
| 専有面積 |
72.66m²
(21.97坪)
壁芯
|
築年月 |
2005年12月 |
| 間取り |
2LDK |
所在階 |
15階/27階建 |
駅徒歩5分以内、土地権利所有権の物件です。鉄筋コンクリート造、タワー型(階数が20階建以上)、10階以上、大規模マンション(100戸以上)、南(南東・南西)バルコニーの物件です。
-
| 価格 |
13,980万円
|
| 所在地 |
東京都世田谷区野沢4丁目 |
| 交通 |
東急田園都市線 「駒沢大学」駅 徒歩8分
東急田園都市線 「三軒茶屋」駅 徒歩18分
|
| 専有面積 |
67.62m²
(20.45坪)
壁芯
|
築年月 |
2009年3月 |
| 間取り |
3LDK |
所在階 |
11階/11階建 |
駅徒歩10分以内、土地権利所有権の物件です。駐車場空有、鉄筋コンクリート造、即入居可、最上階、10階以上、南(南東・南西)バルコニーの物件です。
-
| 価格 |
3,980万円
|
| 所在地 |
東京都世田谷区南烏山6丁目 |
| 交通 |
京王電鉄京王線 「千歳烏山」駅 徒歩4分
|
| 専有面積 |
54.13m²
(16.37坪)
壁芯
|
築年月 |
1979年12月 |
| 間取り |
3DK |
所在階 |
3階/3階建 |
駅徒歩5分以内、土地権利所有権の物件です。鉄筋コンクリート造、最上階、2階以上、低層マンション(3階建て以下)、南(南東・南西)バルコニーの物件です。
-
| 価格 |
21,200万円
|
| 所在地 |
東京都世田谷区玉川1丁目 |
| 交通 |
東急田園都市線 「二子玉川」駅 徒歩7分
東急大井町線 「二子玉川」駅 徒歩7分
|
| 専有面積 |
84.02m²
(25.41坪)
壁芯
|
築年月 |
2010年7月 |
| 間取り |
2LDK |
所在階 |
8階/42階建 |
駅徒歩10分以内、土地権利所有権の物件です。鉄筋コンクリート造、タワー型(階数が20階建以上)、2階以上、大規模マンション(100戸以上)の物件です。
-
| 価格 |
12,980万円
|
| 所在地 |
東京都世田谷区上北沢1丁目 |
| 交通 |
京王電鉄京王線 「上北沢」駅 徒歩10分
京王電鉄京王線 「桜上水」駅 徒歩14分
|
| 専有面積 |
88.86m²
(26.88坪)
壁芯
|
築年月 |
2015年11月 |
| 間取り |
4LDK |
所在階 |
6階/7階建 |
駅徒歩10分以内、土地権利所有権の物件です。鉄筋コンクリート造、4LDK以上、2階以上、南(南東・南西)バルコニーの物件です。
-
| 価格 |
6,199万円
|
| 所在地 |
東京都世田谷区砧2丁目 |
| 交通 |
小田急電鉄小田原線 「千歳船橋」駅 徒歩9分
|
| 専有面積 |
68.42m²
(20.69坪)
壁芯
|
築年月 |
1975年6月 |
| 間取り |
3LDK |
所在階 |
5階/6階建 |
駅徒歩10分以内、土地権利所有権の物件です。鉄筋コンクリート造、2階以上、南(南東・南西)バルコニーの物件です。
-
| 価格 |
12,500万円
|
| 所在地 |
東京都世田谷区瀬田4丁目 |
| 交通 |
東急田園都市線 「用賀」駅 徒歩14分
東急田園都市線 「二子玉川」駅 徒歩18分
東急大井町線 「二子玉川」駅 徒歩18分
|
| 専有面積 |
79.17m²
(23.94坪)
壁芯
|
築年月 |
2008年7月 |
| 間取り |
2LDK |
所在階 |
2階/3階建 |
低層住居専用地域、土地権利所有権の物件です。駐車場空有、鉄筋コンクリート造、2階以上、低層マンション(3階建て以下)、南(南東・南西)バルコニーの物件です。
-
| 価格 |
7,480万円
|
| 所在地 |
東京都世田谷区若林4丁目 |
| 交通 |
東急世田谷線 「若林」駅 徒歩4分
東急世田谷線 「松陰神社前」駅 徒歩6分
東急田園都市線 「三軒茶屋」駅 徒歩17分
|
| 専有面積 |
66.92m²
(20.24坪)
内法
|
築年月 |
1988年3月 |
| 間取り |
1LDK+納戸(S) |
所在階 |
1階/3階建 |
駅徒歩5分以内、土地権利所有権の物件です。鉄筋コンクリート造、1階住戸、低層マンション(3階建て以下)の物件です。
-
| 価格 |
8,280万円
|
| 所在地 |
東京都世田谷区玉川4丁目 |
| 交通 |
東急田園都市線 「二子玉川」駅 徒歩11分
東急大井町線 「二子玉川」駅 徒歩11分
|
| 専有面積 |
57.62m²
(17.43坪)
壁芯
|
築年月 |
1991年3月 |
| 間取り |
1LDK |
所在階 |
2階/3階建 |
低層住居専用地域、土地権利所有権の物件です。駐車場空有、鉄筋コンクリート造、2階以上、低層マンション(3階建て以下)、南(南東・南西)バルコニーの物件です。
-
| 価格 |
11,000万円
|
| 所在地 |
東京都世田谷区松原6丁目 |
| 交通 |
小田急電鉄小田原線 「梅ヶ丘」駅 徒歩7分
京王電鉄井の頭線 「東松原」駅 徒歩8分
|
| 専有面積 |
64.52m²
(19.51坪)
壁芯
|
築年月 |
2018年5月 |
| 間取り |
1LDK |
所在階 |
4階/6階建 |
駅徒歩10分以内、土地権利所有権の物件です。鉄筋コンクリート造、2階以上の物件です。
-
| 価格 |
7,180万円
|
| 所在地 |
東京都世田谷区瀬田4丁目 |
| 交通 |
東急田園都市線 「二子玉川」駅 徒歩13分
東急大井町線 「二子玉川」駅 徒歩13分
|
| 専有面積 |
61.7m²
(18.66坪)
壁芯
|
築年月 |
1984年9月 |
| 間取り |
2LDK |
所在階 |
5階/6階建 |
土地権利所有権の物件です。鉄筋コンクリート造、2階以上、南(南東・南西)バルコニーの物件です。
-
| 価格 |
13,480万円
|
| 所在地 |
東京都世田谷区弦巻3丁目 |
| 交通 |
東急田園都市線 「桜新町」駅 徒歩10分
東急世田谷線 「上町」駅 徒歩10分
東急田園都市線 「駒沢大学」駅 徒歩20分
|
| 専有面積 |
97.76m²
(29.57坪)
壁芯
|
築年月 |
2006年1月 |
| 間取り |
2LDK+納戸(S) |
所在階 |
1階/6階建 |
駅徒歩10分以内、土地権利所有権の物件です。鉄筋コンクリート造、1階住戸、南(南東・南西)バルコニーの物件です。
-
| 価格 |
10,600万円
|
| 所在地 |
東京都世田谷区代田6丁目 |
| 交通 |
小田急電鉄小田原線 「下北沢」駅 徒歩9分
京王電鉄井の頭線 「下北沢」駅 徒歩8分
京王電鉄井の頭線 「新代田」駅 徒歩6分
|
| 専有面積 |
54.65m²
(16.53坪)
壁芯
|
築年月 |
2014年12月 |
| 間取り |
1LDK+納戸(S) |
所在階 |
3階/3階建 |
駅徒歩10分以内、低層住居専用地域、土地権利所有権の物件です。鉄筋コンクリート造、最上階、2階以上、低層マンション(3階建て以下)、南(南東・南西)バルコニーの物件です。
-
| 価格 |
11,500万円
|
| 所在地 |
東京都世田谷区喜多見9丁目 |
| 交通 |
小田急電鉄小田原線 「喜多見」駅 徒歩3分
|
| 専有面積 |
84.64m²
(25.6坪)
壁芯
|
築年月 |
2022年1月 |
| 間取り |
4LDK |
所在階 |
-1階/5階建 |
駅徒歩5分以内、低層住居専用地域、土地権利所有権の物件です。築浅、鉄筋コンクリート造、4LDK以上、大規模マンション(100戸以上)、南(南東・南西)バルコニーの物件です。
-
| 価格 |
6,980万円
|
| 所在地 |
東京都世田谷区松原2丁目 |
| 交通 |
京王電鉄京王線 「明大前」駅 徒歩3分
|
| 専有面積 |
70.47m²
(21.31坪)
壁芯
|
築年月 |
1975年2月 |
| 間取り |
3LDK |
所在階 |
5階/14階建 |
駅徒歩5分以内、土地権利所有権の物件です。駐車場空有、鉄骨鉄筋コンクリート造、2階以上、大規模マンション(100戸以上)、南(南東・南西)バルコニーの物件です。
-
| 価格 |
10,480万円
|
| 所在地 |
東京都世田谷区南烏山5丁目 |
| 交通 |
京王電鉄京王線 「千歳烏山」駅 徒歩4分
|
| 専有面積 |
68.98m²
(20.86坪)
壁芯
|
築年月 |
2016年1月 |
| 間取り |
3LDK |
所在階 |
3階/8階建 |
駅徒歩5分以内、土地権利所有権の物件です。鉄筋コンクリート造、2階以上、大規模マンション(100戸以上)の物件です。
-
| 価格 |
9,980万円
|
| 所在地 |
東京都世田谷区玉川3丁目 |
| 交通 |
東急田園都市線 「二子玉川」駅 徒歩2分
東急大井町線 「二子玉川」駅 徒歩2分
|
| 専有面積 |
45.4m²
(13.73坪)
壁芯
|
築年月 |
2005年12月 |
| 間取り |
1LDK |
所在階 |
8階/27階建 |
駅徒歩5分以内、土地権利所有権の物件です。鉄筋コンクリート造、タワー型(階数が20階建以上)、2階以上、大規模マンション(100戸以上)、南(南東・南西)バルコニーの物件です。
-
| 価格 |
9,480万円
|
| 所在地 |
東京都世田谷区三宿1丁目 |
| 交通 |
東急田園都市線 「池尻大橋」駅 徒歩9分
東急田園都市線 「三軒茶屋」駅 徒歩10分
東急世田谷線 「三軒茶屋」駅 徒歩12分
|
| 専有面積 |
52.32m²
(15.82坪)
壁芯
|
築年月 |
2010年10月 |
| 間取り |
1LDK |
所在階 |
5階/8階建 |
駅徒歩10分以内、土地権利所有権の物件です。鉄筋コンクリート造、2階以上の物件です。
-
| 価格 |
3,280万円
|
| 所在地 |
東京都世田谷区北沢5丁目 |
| 交通 |
京王電鉄京王線 「笹塚」駅 徒歩5分
小田急電鉄小田原線 「東北沢」駅 徒歩11分
|
| 専有面積 |
36.55m²
(11.05坪)
壁芯
|
築年月 |
1969年11月 |
| 間取り |
2DK |
所在階 |
6階/8階建 |
駅徒歩5分以内、土地権利所有権の物件です。鉄骨鉄筋コンクリート造、2階以上、リフォーム済みの物件です。
-
| 価格 |
13,900万円
|
| 所在地 |
東京都世田谷区上馬3丁目 |
| 交通 |
東急田園都市線 「駒沢大学」駅 徒歩1分
山手線 「渋谷」駅 バス26分 「駒沢大学駅前」バス停下車 徒歩3分
|
| 専有面積 |
54.15m²
(16.38坪)
壁芯
|
築年月 |
2018年11月 |
| 間取り |
2LDK |
所在階 |
15階/20階建 |
駅徒歩5分以内、土地権利所有権の物件です。鉄筋コンクリート造、タワー型(階数が20階建以上)、10階以上、南(南東・南西)バルコニーの物件です。
-
| 価格 |
15,980万円
|
| 所在地 |
東京都世田谷区桜丘2丁目 |
| 交通 |
小田急電鉄小田原線 「千歳船橋」駅 徒歩10分
|
| 専有面積 |
89.26m²
(27坪)
壁芯
|
築年月 |
2002年10月 |
| 間取り |
2LDK |
所在階 |
6階/6階建 |
駅徒歩10分以内、土地権利所有権の物件です。鉄筋コンクリート造、ルーフバルコニー付、最上階、2階以上、南(南東・南西)バルコニーの物件です。
-
| 価格 |
17,980万円
|
| 所在地 |
東京都世田谷区上野毛2丁目 |
| 交通 |
東急大井町線 「二子玉川」駅 徒歩11分
東急田園都市線 「二子玉川」駅 徒歩11分
東急大井町線 「上野毛」駅 徒歩6分
|
| 専有面積 |
101.05m²
(30.56坪)
|
築年月 |
1998年10月 |
| 間取り |
4LDK+納戸(S) |
所在階 |
1階/7階建 |
駅徒歩10分以内、土地権利所有権の物件です。駐車場空有、鉄筋コンクリート造、専有面積100m2以上、4LDK以上、1階住戸、南(南東・南西)バルコニーの物件です。
-
| 価格 |
13,880万円
|
| 所在地 |
東京都世田谷区池尻4丁目 |
| 交通 |
京王電鉄井の頭線 「駒場東大前」駅 徒歩8分
東急田園都市線 「池尻大橋」駅 徒歩13分
京王電鉄井の頭線 「池ノ上」駅 徒歩14分
|
| 専有面積 |
69.37m²
(20.98坪)
壁芯
|
築年月 |
2007年11月 |
| 間取り |
2LDK |
所在階 |
2階/9階建 |
駅徒歩10分以内、土地権利所有権の物件です。鉄筋コンクリート造、2階以上、大規模マンション(100戸以上)、南(南東・南西)バルコニーの物件です。
-
| 価格 |
2,799万円
|
| 所在地 |
東京都世田谷区等々力1丁目 |
| 交通 |
東急大井町線 「尾山台」駅 徒歩7分
東急大井町線 「等々力」駅 徒歩10分
東急東横線 「田園調布」駅 徒歩23分
|
| 専有面積 |
39.13m²
(11.83坪)
壁芯
|
築年月 |
1968年3月 |
| 間取り |
1LDK |
所在階 |
1階/7階建 |
駅徒歩10分以内、土地権利所有権の物件です。鉄筋コンクリート造、1階住戸、南(南東・南西)バルコニーの物件です。
-
| 価格 |
13,000万円
|
| 所在地 |
東京都世田谷区赤堤2丁目 |
| 交通 |
小田急電鉄小田原線 「豪徳寺」駅 徒歩7分
東急世田谷線 「山下」駅 徒歩8分
|
| 専有面積 |
129.69m²
(39.23坪)
内法
|
築年月 |
1986年5月 |
| 間取り |
6LDK |
所在階 |
4階/5階建 |
駅徒歩10分以内、土地権利所有権の物件です。鉄筋コンクリート造、専有面積100m2以上、4LDK以上、2階以上、南(南東・南西)バルコニーの物件です。