東武鉄道東上線の駅徒歩8分以内の中古マンション物件一覧
東武鉄道東上線の駅徒歩8分以内の中古マンション購入は、三菱UFJ不動産販売の住まい1にお任せください。地域や沿線などご希望の条件から物件をお探しいただけます。物件の見学(内見)のお問い合わせもお気軽にどうぞ。
-
| 価格 |
6,180万円
|
| 所在地 |
埼玉県富士見市ふじみ野西2丁目 |
| 交通 |
東武鉄道東上線 「ふじみ野」駅 徒歩5分
|
| 専有面積 |
109.39m²
(33.09坪)
壁芯
|
築年月 |
2003年2月 |
| 間取り |
3LDK+納戸(S)×1 |
所在階 |
31階/33階建 |
◎31階部分につき採光・眺望良好◎南西向きバルコニーに面したゆとりのLDK(約23.7畳)
◎和室(約7畳)の引戸を収納すればLDと一体化した住空間へ◎対面カウンターキッチン◎キッチン横にパントリー
◎洋室(約10畳)に収納力のあるWIC◎ポーチ部分にトランクルーム有
〜Life Information〜
●セブンイレブン富士見市ふじみ野駅西口店…約360m(徒歩5分)
●フエンテふじみ野店…約450m(徒歩6分)
●クオール薬局ふじみ野駅前店…約450m(徒歩6分)
●ふじみ野ナーレ…約550m(徒歩7分)
●イオン大井店…約970m(徒歩13分)
●ふじみの公園…約600...
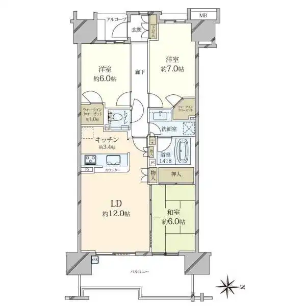
-
| 価格 |
2,880万円
|
| 所在地 |
埼玉県志木市柏町6丁目 |
| 交通 |
東武鉄道東上線 「柳瀬川」駅 徒歩7分
東武鉄道東上線 「志木」駅 徒歩18分
|
| 専有面積 |
75.41m²
(22.81坪)
壁芯
|
築年月 |
2006年2月 |
| 間取り |
3LDK |
所在階 |
8階/9階建 |
・地上9階建8階部分 ・南東向きバルコニーに面したLD約12畳 ・対面カウンターキッチン約3.4畳 ・玄関ポーチにトランクルーム ・バルコニーにスロップシンク ・オートロック ・LDに床暖房(TES温水式) ・ペット飼育可(別途細則有)
-
| 価格 |
5,880万円
|
| 所在地 |
東京都豊島区西池袋5丁目 |
| 交通 |
東京メトロ有楽町線 「要町」駅 徒歩3分
東京メトロ副都心線 「要町」駅 徒歩3分
山手線 「池袋」駅 徒歩14分
|
| 専有面積 |
60.49m²
(18.29坪)
壁芯
|
築年月 |
1979年3月 |
| 間取り |
2LDK |
所在階 |
4階/7階建 |
◇5路線2駅利用のアクセス◇東京メトロ有楽町線・副都心線「要町」駅徒歩3分、JR山手線・埼京線・湘南新宿ライン「池袋」駅徒歩14分
◇3方角住戸
◇南西向きバルコニーに面しているため、採光・通風良好
◇建具・壁の仕上がりを活かしたヴィンテージ風室内
◇2面採光のLDK
■Life Information
◆セブンイレブン豊島要町駅前店…約90m
◆要町駅前クリニック(内科)…約170m
◆ぱぱす要町駅前店…約240m
◆コモディイイダ池袋立教通り店…約270m
◆豊島区立池袋第三小学校…約730m
◆豊島区立西池袋中学校…約640m
-
| 価格 |
15,980万円
|
| 所在地 |
東京都豊島区南池袋1丁目 |
| 交通 |
山手線 「池袋」駅 徒歩6分
湘南新宿ライン(宇都宮~逗子) 「池袋」駅 徒歩6分
山手線 「目白」駅 徒歩9分
|
| 専有面積 |
61.07m²
(18.47坪)
壁芯
|
築年月 |
2015年2月 |
| 間取り |
2LDK+納戸(S)×1 |
所在階 |
10階/31階建 |
(備考の続き)〇ペットの飼育については別途ペット飼育細則を遵守していただきます 〇間取り図の畳数表記(J)は1畳=1.62m2で換算した約表示です 〇略号凡例…Sto./収納、WIC/ウォークインクローゼット、SIC/シューズインクローゼット〜Life information〜◎セブンイレブン南池袋3丁目店…約240m ◎西武池袋本店…約620m ◎池袋ショッピングパーク…約710m ◎ルミネ池袋…約600m ◎南池袋小学校…約730m ◎千登世橋中学校…約950m
-
| 価格 |
4,180万円
|
| 所在地 |
東京都板橋区熊野町 |
| 交通 |
東武鉄道東上線 「大山」駅 徒歩8分
都営三田線 「板橋区役所前」駅 徒歩13分
|
| 専有面積 |
58.5m²
(17.69坪)
壁芯
|
築年月 |
1980年1月 |
| 間取り |
3LDK |
所在階 |
7階/7階建 |
リフォーム詳細【交換】システムキッチン、ユニットバス(浴室換気乾燥機付)、洗面化粧台、洗濯パン、シャワー付便座・便器、照明器具、スイッチ・コンセント、電気温水器、木製建具、玄関収納【張替え】壁・天井クロス(全室)、フローリング(洋室・LDK・廊下)、フロアタイル(洗面室・トイレ・玄関) 他
―Life Information―●セブンイレブン板橋熊野町店…約220m ●ファミリーマート金井窪山手通り店…約320m●まいばすけっと板橋熊野町店…約220m ●コモディイイダ幸町店…約630m ●板橋中丸郵便局…約380m●区立板橋第七小学校…約170m ●区立板橋第一中学校…約810m
-
| 価格 |
15,800万円
|
| 所在地 |
東京都豊島区池袋3丁目 |
| 交通 |
東京メトロ丸ノ内線 「池袋」駅 徒歩5分
山手線 「池袋」駅 徒歩10分
東京メトロ有楽町線 「要町」駅 徒歩3分
|
| 専有面積 |
55.92m²
(16.91坪)
壁芯
|
築年月 |
2024年1月 |
| 間取り |
2LDK+納戸(S)×1 |
所在階 |
15階/30階建 |
◆東京メトロ丸ノ内線・有楽町線・副都心線「池袋」駅徒歩5分
◆JR山手線・埼京線・湘南新宿ライン「池袋」駅徒歩10分、東京メトロ有楽町線・副都心線「要町」駅徒歩3分も利用可
◆2024年1月築、地上30階建タワーマンション
◆1陳の総戸数231戸のビッグコミュニティ
◆15階部分、全居室が南向きバルコニーに面した眺望・採光良好な2LDK
◆LD(約9.2畳)に床暖房
◆洋室(釣6.1畳)に収納力のあるWIC
◆玄関周りをスッキリと収納できるSIC
◆ペット飼育可(別途細則有)
〜Life Information〜
○ライフ池袋三丁目店…約10m(徒歩1分)
○東武百貨店池...
-
| 価格 |
24,800万円
|
| 所在地 |
東京都豊島区東池袋4丁目 |
| 交通 |
東京メトロ有楽町線 「東池袋」駅 徒歩2分
山手線 「池袋」駅 徒歩10分
都電荒川線 「東池袋四丁目」駅 徒歩4分
|
| 専有面積 |
71.49m²
(21.62坪)
壁芯
|
築年月 |
2011年1月 |
| 間取り |
3LDK |
所在階 |
43階/52階建 |
駅徒歩5分以内、土地権利所有権の物件です。駐車場空有、鉄筋コンクリート造、タワー型(階数が20階建以上)、10階以上、大規模マンション(100戸以上)、南(南東・南西)バルコニーの物件です。
-
| 価格 |
4,180万円
|
| 所在地 |
東京都板橋区大和町 |
| 交通 |
都営三田線 「板橋本町」駅 徒歩2分
東武鉄道東上線 「中板橋」駅 徒歩15分
|
| 専有面積 |
30.44m²
(9.2坪)
壁芯
|
築年月 |
2019年7月 |
| 間取り |
1DK |
所在階 |
11階/14階建 |
駅徒歩5分以内、土地権利所有権の物件です。鉄筋コンクリート造、10階以上の物件です。
-
| 価格 |
8,280万円
|
| 所在地 |
東京都北区滝野川6丁目 |
| 交通 |
埼京線 「板橋」駅 徒歩6分
都営三田線 「新板橋」駅 徒歩3分
東武鉄道東上線 「下板橋」駅 徒歩12分
|
| 専有面積 |
72.88m²
(22.04坪)
壁芯
|
築年月 |
1999年1月 |
| 間取り |
2LDK |
所在階 |
14階/14階建 |
駅徒歩5分以内の物件です。駐車場空有、鉄骨鉄筋コンクリート造、最上階、10階以上の物件です。
-
| 価格 |
4,580万円
|
| 所在地 |
東京都北区滝野川6丁目 |
| 交通 |
埼京線 「板橋」駅 徒歩5分
都営三田線 「西巣鴨」駅 徒歩9分
東武鉄道東上線 「下板橋」駅 徒歩12分
|
| 専有面積 |
47.51m²
(14.37坪)
壁芯
|
築年月 |
1992年6月 |
| 間取り |
2DK |
所在階 |
5階/7階建 |
駅徒歩5分以内、土地権利所有権の物件です。鉄筋コンクリート造、2階以上、南(南東・南西)バルコニーの物件です。
-
| 価格 |
11,980万円
|
| 所在地 |
東京都豊島区池袋3丁目 |
| 交通 |
東京メトロ有楽町線 「要町」駅 徒歩1分
山手線 「池袋」駅 徒歩13分
東京メトロ丸ノ内線 「池袋」駅 徒歩13分
|
| 専有面積 |
61.58m²
(18.62坪)
壁芯
|
築年月 |
2008年6月 |
| 間取り |
2LDK |
所在階 |
4階/12階建 |
駅徒歩5分以内、土地権利所有権の物件です。鉄筋コンクリート造、2階以上、南(南東・南西)バルコニーの物件です。
-
| 価格 |
19,990万円
|
| 所在地 |
東京都豊島区南池袋1丁目 |
| 交通 |
埼京線 「池袋」駅 徒歩4分
山手線 「目白」駅 徒歩9分
東京メトロ有楽町線 「池袋」駅 徒歩4分
|
| 専有面積 |
68.03m²
(20.57坪)
壁芯
|
築年月 |
2015年2月 |
| 間取り |
3LDK |
所在階 |
23階/31階建 |
駅徒歩5分以内、土地権利所有権の物件です。鉄筋コンクリート造、タワー型(階数が20階建以上)、10階以上、大規模マンション(100戸以上)、南(南東・南西)バルコニーの物件です。
-
| 価格 |
4,080万円
|
| 所在地 |
東京都板橋区板橋2丁目 |
| 交通 |
都営三田線 「板橋区役所前」駅 徒歩2分
東武鉄道東上線 「大山」駅 徒歩11分
東武鉄道東上線 「下板橋」駅 徒歩11分
|
| 専有面積 |
54.68m²
(16.54坪)
壁芯
|
築年月 |
1981年11月 |
| 間取り |
2LDK |
所在階 |
6階/8階建 |
駅徒歩5分以内、土地権利所有権の物件です。鉄骨鉄筋コンクリート造、2階以上の物件です。
-
| 価格 |
6,980万円
|
| 所在地 |
埼玉県志木市本町5丁目 |
| 交通 |
東武鉄道東上線 「志木」駅 徒歩4分
武蔵野線 「北朝霞」駅 徒歩25分
東武鉄道東上線 「柳瀬川」駅 徒歩24分
|
| 専有面積 |
75.93m²
(22.96坪)
壁芯
|
築年月 |
2016年6月 |
| 間取り |
3LDK |
所在階 |
13階/15階建 |
駅徒歩5分以内、土地権利所有権の物件です。鉄筋コンクリート造、10階以上、南(南東・南西)バルコニーの物件です。
-
| 価格 |
5,180万円
|
| 所在地 |
埼玉県朝霞市本町2丁目 |
| 交通 |
東武鉄道東上線 「朝霞」駅 徒歩5分
東京メトロ有楽町線 「和光市」駅 徒歩25分
東京メトロ副都心線 「和光市」駅 徒歩25分
|
| 専有面積 |
54.59m²
(16.51坪)
壁芯
|
築年月 |
2022年1月 |
| 間取り |
1LDK+納戸(S) |
所在階 |
6階/13階建 |
駅徒歩5分以内、土地権利所有権の物件です。築浅、鉄筋コンクリート造、2階以上、南(南東・南西)バルコニーの物件です。
-
| 価格 |
27,500万円
|
| 所在地 |
東京都豊島区南池袋2丁目 |
| 交通 |
東京メトロ有楽町線 「東池袋」駅 徒歩1分
山手線 「池袋」駅 徒歩8分
|
| 専有面積 |
78.84m²
(23.84坪)
壁芯
|
築年月 |
2015年3月 |
| 間取り |
3LDK |
所在階 |
29階/49階建 |
駅徒歩5分以内、土地権利所有権の物件です。駐車場空有、鉄筋コンクリート造、タワー型(階数が20階建以上)、10階以上、大規模マンション(100戸以上)、南(南東・南西)バルコニーの物件です。
-
| 価格 |
6,290万円
|
| 所在地 |
埼玉県志木市本町5丁目 |
| 交通 |
東武鉄道東上線 「志木」駅 徒歩2分
|
| 専有面積 |
70.3m²
(21.26坪)
壁芯
|
築年月 |
2008年1月 |
| 間取り |
2LDK |
所在階 |
9階/14階建 |
駅徒歩5分以内、土地権利所有権の物件です。鉄筋コンクリート造、2階以上、大規模マンション(100戸以上)の物件です。
-
| 価格 |
11,490万円
|
| 所在地 |
東京都板橋区前野町2丁目 |
| 交通 |
東武鉄道東上線 「ときわ台」駅 徒歩8分
|
| 専有面積 |
95.13m²
(28.77坪)
壁芯
|
築年月 |
2009年1月 |
| 間取り |
4LDK |
所在階 |
13階/18階建 |
駅徒歩10分以内、土地権利所有権の物件です。鉄骨鉄筋コンクリート造、4LDK以上、10階以上、大規模マンション(100戸以上)の物件です。
-
| 価格 |
7,980万円
|
| 所在地 |
東京都豊島区西池袋5丁目 |
| 交通 |
東京メトロ有楽町線 「要町」駅 徒歩5分
東京メトロ副都心線 「要町」駅 徒歩5分
山手線 「池袋」駅 徒歩10分
|
| 専有面積 |
53.55m²
(16.19坪)
壁芯
|
築年月 |
2001年2月 |
| 間取り |
2LDK |
所在階 |
3階/8階建 |
駅徒歩5分以内、土地権利所有権の物件です。駐車場空有、鉄筋コンクリート造、2階以上、南(南東・南西)バルコニーの物件です。
-
| 価格 |
9,280万円
|
| 所在地 |
東京都豊島区池袋本町4丁目 |
| 交通 |
埼京線 「板橋」駅 徒歩7分
都営三田線 「新板橋」駅 徒歩8分
東武鉄道東上線 「下板橋」駅 徒歩6分
|
| 専有面積 |
73.99m²
(22.38坪)
壁芯
|
築年月 |
1997年3月 |
| 間取り |
2LDK |
所在階 |
4階/19階建 |
駅徒歩10分以内、土地権利所有権の物件です。鉄骨鉄筋コンクリート造、2階以上、大規模マンション(100戸以上)、南(南東・南西)バルコニーの物件です。
-
| 価格 |
6,180万円
|
| 所在地 |
東京都豊島区西池袋2丁目 |
| 交通 |
山手線 「池袋」駅 徒歩3分
山手線 「目白」駅 徒歩11分
東京メトロ有楽町線 「東池袋」駅 徒歩17分
|
| 専有面積 |
31.95m²
(9.66坪)
壁芯
|
築年月 |
1999年3月 |
| 間取り |
1LDK |
所在階 |
6階/11階建 |
駅徒歩5分以内、土地権利所有権の物件です。鉄筋コンクリート造、2階以上の物件です。
-
| 価格 |
7,880万円
|
| 所在地 |
埼玉県志木市本町5丁目 |
| 交通 |
東武鉄道東上線 「志木」駅 徒歩4分
|
| 専有面積 |
86.79m²
(26.25坪)
壁芯
|
築年月 |
2016年6月 |
| 間取り |
4LDK |
所在階 |
9階/15階建 |
駅徒歩5分以内、土地権利所有権の物件です。鉄筋コンクリート造、4LDK以上、2階以上、大規模マンション(100戸以上)、南(南東・南西)バルコニーの物件です。
-
| 価格 |
9,000万円
|
| 所在地 |
東京都豊島区南池袋2丁目 |
| 交通 |
東京メトロ有楽町線 「東池袋」駅 徒歩1分
山手線 「池袋」駅 徒歩9分
都電荒川線 「都電雑司ヶ谷」駅 徒歩6分
|
| 専有面積 |
31.25m²
(9.45坪)
壁芯
|
築年月 |
2015年3月 |
| 間取り |
ワンルーム |
所在階 |
12階/49階建 |
駅徒歩5分以内、土地権利所有権の物件です。鉄筋コンクリート造、タワー型(階数が20階建以上)、即入居可、10階以上、大規模マンション(100戸以上)、南(南東・南西)バルコニーの物件です。
-
| 価格 |
7,290万円
|
| 所在地 |
東京都板橋区桜川3丁目 |
| 交通 |
東武鉄道東上線 「上板橋」駅 徒歩4分
|
| 専有面積 |
56.24m²
(17.01坪)
壁芯
|
築年月 |
2020年8月 |
| 間取り |
2LDK |
所在階 |
10階/12階建 |
駅徒歩5分以内、土地権利所有権の物件です。鉄筋コンクリート造、10階以上、南(南東・南西)バルコニーの物件です。
-
| 価格 |
11,990万円
|
| 所在地 |
東京都板橋区前野町2丁目 |
| 交通 |
東武鉄道東上線 「ときわ台」駅 徒歩8分
東武鉄道東上線 「上板橋」駅 徒歩16分
|
| 専有面積 |
103.22m²
(31.22坪)
壁芯
|
築年月 |
2009年1月 |
| 間取り |
4LDK |
所在階 |
16階/18階建 |
駅徒歩10分以内、土地権利所有権の物件です。鉄骨鉄筋コンクリート造、ルーフバルコニー付、専有面積100m2以上、4LDK以上、10階以上、大規模マンション(100戸以上)、南(南東・南西)バルコニーの物件です。
-
| 価格 |
16,000万円
|
| 所在地 |
東京都豊島区池袋3丁目 |
| 交通 |
東京メトロ副都心線 「要町」駅 徒歩3分
東京メトロ有楽町線 「要町」駅 徒歩3分
東京メトロ有楽町線 「池袋」駅 徒歩5分
|
| 専有面積 |
64.14m²
(19.4坪)
壁芯
|
築年月 |
2024年1月 |
| 間取り |
2LDK |
所在階 |
18階/30階建 |
駅徒歩5分以内、土地権利所有権の物件です。築浅、鉄筋コンクリート造、タワー型(階数が20階建以上)、10階以上、大規模マンション(100戸以上)、リフォーム済みの物件です。
-
| 価格 |
4,380万円
|
| 所在地 |
東京都板橋区熊野町 |
| 交通 |
東武鉄道東上線 「大山」駅 徒歩8分
都営三田線 「板橋区役所前」駅 徒歩13分
|
| 専有面積 |
59.76m²
(18.07坪)
壁芯
|
築年月 |
1980年1月 |
| 間取り |
2LDK |
所在階 |
7階/7階建 |
駅徒歩10分以内、土地権利所有権の物件です。駐車場空有、鉄筋コンクリート造、最上階、2階以上、大規模マンション(100戸以上)の物件です。
-
| 価格 |
7,990万円
|
| 所在地 |
東京都板橋区氷川町 |
| 交通 |
都営三田線 「板橋区役所前」駅 徒歩8分
都営三田線 「板橋本町」駅 徒歩8分
東武鉄道東上線 「大山」駅 徒歩15分
|
| 専有面積 |
68.39m²
(20.68坪)
壁芯
|
築年月 |
2002年3月 |
| 間取り |
3LDK |
所在階 |
4階/6階建 |
駅徒歩10分以内、土地権利所有権の物件です。鉄筋コンクリート造、2階以上、南(南東・南西)バルコニーの物件です。
-
| 価格 |
7,880万円
|
| 所在地 |
東京都板橋区宮本町 |
| 交通 |
都営三田線 「板橋本町」駅 徒歩2分
東武鉄道東上線 「中板橋」駅 徒歩17分
|
| 専有面積 |
75.6m²
(22.86坪)
壁芯
|
築年月 |
1998年8月 |
| 間取り |
1LDK |
所在階 |
11階/13階建 |
駅徒歩5分以内の物件です。駐車場空有、鉄骨鉄筋コンクリート造、10階以上の物件です。
-
| 価格 |
3,380万円
|
| 所在地 |
埼玉県志木市館2丁目 |
| 交通 |
東武鉄道東上線 「柳瀬川」駅 徒歩4分
東武鉄道東上線 「みずほ台」駅 徒歩24分
東武鉄道東上線 「志木」駅 徒歩28分
|
| 専有面積 |
99.08m²
(29.97坪)
壁芯
|
築年月 |
1983年2月 |
| 間取り |
3LDK |
所在階 |
6階/14階建 |
駅徒歩5分以内、土地権利所有権の物件です。駐車場空有、鉄筋コンクリート造、2階以上、大規模マンション(100戸以上)、南(南東・南西)バルコニーの物件です。