新宿第2センターでお取扱い中の中古マンション物件一覧
新宿第2センターの中古マンション購入は、三菱UFJ不動産販売の住まい1にお任せください。地域や沿線などご希望の条件から物件をお探しいただけます。物件の見学(内見)のお問い合わせもお気軽にどうぞ。
-
| 価格 |
23,800万円
|
| 所在地 |
東京都江東区白河4丁目 |
| 交通 |
東京メトロ半蔵門線 「清澄白河」駅 徒歩7分
都営大江戸線 「清澄白河」駅 徒歩10分
都営新宿線 「菊川」駅 徒歩10分
|
| 専有面積 |
112.38m²
(33.99坪)
壁芯
|
築年月 |
2006年6月 |
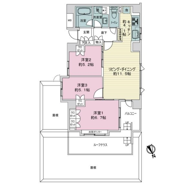
| 間取り |
3LDK+納戸(S)×1 |
所在階 |
31階/33階建 |
リフォーム済(2025年10月/キッチン・浴室・トイレ・壁・床・全室)
[2025年10月新規内装リフォーム実施]
【新規交換】システムキッチン、食器洗い乾燥機、レンジフード、システムバス、浴室換気暖房乾燥機、洗面化粧台、温水洗浄便座付トイレ
【新規張替え】壁・天井クロス(全室)、床フローリング(LDK・廊下・各洋室・WIC)、床タイル(玄関・納戸)、ビニール床タイル(洗面室・トイレ)
【その他】LDに床暖房新設
-
| 価格 |
13,200万円
|
| 所在地 |
神奈川県川崎市中原区小杉町3丁目 |
| 交通 |
南武線 「武蔵小杉」駅 徒歩1分
東急東横線 「武蔵小杉」駅 徒歩1分
東急目黒線 「武蔵小杉」駅 徒歩1分
|
| 専有面積 |
62.42m²
(18.88坪)
壁芯
|
築年月 |
2013年2月 |
| 間取り |
2LDK |
所在階 |
17階/39階建 |
◎JR南武線、東急東横線・目黒線「武蔵小杉」駅直結◎JR横須賀線・湘南新宿ライン「武蔵小杉」駅徒歩7分も利用可◎西向きバルコニーに面したLD(約10.9畳)◎LD部分に床暖房◎対面カウンターキッチン(約2.9畳)◎各洋室から出入りできる2WAY仕様のWTC◎1棟の総戸数326戸のビッグコミュニティ◎眺望良好な17階部分◎ペットの飼育については別途ペット細則を遵守していただきます
-
| 価格 |
9,480万円
|
| 所在地 |
東京都調布市仙川町1丁目 |
| 交通 |
京王電鉄京王線 「仙川」駅 徒歩3分
|
| 専有面積 |
68.33m²
(20.66坪)
壁芯
|
築年月 |
2004年4月 |
| 間取り |
2LDK |
所在階 |
4階/5階建 |
◆安藤忠雄建築研究所設計、建築家「安藤忠雄」氏が手掛けた建物
◆住友不動産株式会社旧分譲、鹿島建設株式会社施工、地上5階建4階部分
◆内廊下設計
◆LDに温水式床暖房
◆宅配ボックス
◆オートロック
-
| 価格 |
5,480万円
|
| 所在地 |
東京都世田谷区松原2丁目 |
| 交通 |
京王電鉄京王線 「明大前」駅 徒歩4分
京王電鉄京王線 「下高井戸」駅 徒歩10分
|
| 専有面積 |
54.67m²
(16.53坪)
壁芯
|
築年月 |
1975年2月 |
| 間取り |
1LDK+納戸(S) |
所在階 |
8階/14階建 |
駅徒歩5分以内、土地権利所有権の物件です。鉄骨鉄筋コンクリート造、2階以上、南(南東・南西)バルコニーの物件です。
-
| 価格 |
4,480万円
|
| 所在地 |
東京都調布市柴崎2丁目 |
| 交通 |
京王電鉄京王線 「柴崎」駅 徒歩12分
京王電鉄京王線 「つつじヶ丘」駅 徒歩16分
京王電鉄京王線 「国領」駅 徒歩23分
|
| 専有面積 |
63.11m²
(19.09坪)
壁芯
|
築年月 |
1996年2月 |
| 間取り |
3LDK |
所在階 |
2階/5階建 |
土地権利所有権の物件です。鉄筋コンクリート造、2階以上、南(南東・南西)バルコニーの物件です。
-
| 価格 |
7,490万円
|
| 所在地 |
東京都世田谷区上祖師谷2丁目 |
| 交通 |
京王電鉄京王線 「千歳烏山」駅 徒歩9分
|
| 専有面積 |
75.07m²
(22.7坪)
壁芯
|
築年月 |
2014年2月 |
| 間取り |
3LDK |
所在階 |
1階/3階建 |
駅徒歩10分以内、低層住居専用地域、土地権利所有権の物件です。駐車場空有、鉄筋コンクリート造、1階住戸、低層マンション(3階建て以下)、南(南東・南西)バルコニーの物件です。
-
| 価格 |
5,680万円
|
| 所在地 |
東京都調布市富士見町3丁目 |
| 交通 |
京王電鉄京王線 「調布」駅 徒歩20分
|
| 専有面積 |
70.19m²
(21.23坪)
壁芯
|
築年月 |
2002年7月 |
| 間取り |
3LDK |
所在階 |
6階/6階建 |
土地権利所有権の物件です。駐車場空有、鉄筋コンクリート造、最上階、2階以上、南(南東・南西)バルコニーの物件です。
-
| 価格 |
3,880万円
|
| 所在地 |
東京都調布市小島町2丁目 |
| 交通 |
京王電鉄京王線 「調布」駅 徒歩5分
京王電鉄相模原線 「調布」駅 徒歩5分
|
| 専有面積 |
70.02m²
(21.18坪)
壁芯
|
築年月 |
1973年11月 |
| 間取り |
2LDK |
所在階 |
7階/12階建 |
駅徒歩5分以内、土地権利所有権の物件です。鉄骨鉄筋コンクリート造、即入居可、2階以上の物件です。
-
| 価格 |
5,980万円
|
| 所在地 |
東京都調布市柴崎2丁目 |
| 交通 |
京王電鉄京王線 「つつじヶ丘」駅 徒歩16分
京王電鉄京王線 「柴崎」駅 徒歩15分
京王電鉄京王線 「国領」駅 徒歩23分
|
| 専有面積 |
75.6m²
(22.86坪)
壁芯
|
築年月 |
2012年7月 |
| 間取り |
3LDK |
所在階 |
7階/8階建 |
土地権利所有権の物件です。鉄筋コンクリート造、2階以上、大規模マンション(100戸以上)、南(南東・南西)バルコニーの物件です。
-
| 価格 |
9,980万円
|
| 所在地 |
東京都世田谷区上北沢1丁目 |
| 交通 |
京王電鉄京王線 「上北沢」駅 徒歩11分
|
| 専有面積 |
71.19m²
(21.53坪)
壁芯
|
築年月 |
2015年2月 |
| 間取り |
3LDK |
所在階 |
1階/4階建 |
低層住居専用地域、土地権利所有権の物件です。鉄筋コンクリート造、1階住戸、南(南東・南西)バルコニーの物件です。
-
| 価格 |
9,800万円
|
| 所在地 |
東京都世田谷区深沢1丁目 |
| 交通 |
東急東横線 「自由が丘」駅 徒歩15分
東急大井町線 「自由が丘」駅 徒歩15分
東急大井町線 「九品仏」駅 徒歩13分
|
| 専有面積 |
64.04m²
(19.37坪)
壁芯
|
築年月 |
1999年7月 |
| 間取り |
3LDK |
所在階 |
4階/8階建 |
土地権利所有権の物件です。鉄筋コンクリート造、即入居可、2階以上、南(南東・南西)バルコニーの物件です。
-
| 価格 |
6,880万円
|
| 所在地 |
東京都調布市富士見町3丁目 |
| 交通 |
京王電鉄京王線 「調布」駅 徒歩15分
|
| 専有面積 |
65.42m²
(19.78坪)
壁芯
|
築年月 |
2015年3月 |
| 間取り |
2LDK |
所在階 |
2階/8階建 |
土地権利所有権の物件です。鉄筋コンクリート造、2階以上、大規模マンション(100戸以上)、南(南東・南西)バルコニーの物件です。
-
| 価格 |
6,300万円
|
| 所在地 |
東京都世田谷区成城9丁目 |
| 交通 |
小田急電鉄小田原線 「成城学園前」駅 徒歩19分
京王電鉄京王線 「仙川」駅 徒歩19分
|
| 専有面積 |
60.48m²
(18.29坪)
壁芯
|
築年月 |
1999年9月 |
| 間取り |
2LDK |
所在階 |
2階/6階建 |
土地権利所有権の物件です。鉄筋コンクリート造、2階以上、南(南東・南西)バルコニーの物件です。
-
| 価格 |
7,580万円
|
| 所在地 |
東京都世田谷区千歳台6丁目 |
| 交通 |
京王電鉄京王線 「千歳烏山」駅 徒歩20分
小田急電鉄小田原線 「祖師ヶ谷大蔵」駅 徒歩22分
京王電鉄京王線 「千歳烏山」駅 バス5分 「千歳台六丁目」バス停下車 徒歩1分
|
| 専有面積 |
75.63m²
(22.87坪)
壁芯
|
築年月 |
2005年10月 |
| 間取り |
2LDK |
所在階 |
10階/14階建 |
土地権利所有権の物件です。駐車場空有、鉄筋コンクリート造、10階以上、大規模マンション(100戸以上)、南(南東・南西)バルコニーの物件です。
-
| 価格 |
8,980万円
|
| 所在地 |
東京都世田谷区松原3丁目 |
| 交通 |
京王電鉄京王線 「明大前」駅 徒歩9分
東急世田谷線 「下高井戸」駅 徒歩4分
京王電鉄井の頭線 「明大前」駅 徒歩9分
|
| 専有面積 |
54.01m²
(16.33坪)
壁芯
|
築年月 |
2020年7月 |
| 間取り |
2LDK |
所在階 |
3階/5階建 |
駅徒歩5分以内、土地権利所有権の物件です。鉄筋コンクリート造、2階以上の物件です。
-
| 価格 |
7,290万円
|
| 所在地 |
東京都世田谷区成城9丁目 |
| 交通 |
小田急電鉄小田原線 「成城学園前」駅 徒歩19分
京王電鉄京王線 「仙川」駅 徒歩19分
|
| 専有面積 |
67.48m²
(20.41坪)
壁芯
|
築年月 |
1999年9月 |
| 間取り |
2LDK+納戸(S) |
所在階 |
1階/6階建 |
土地権利所有権の物件です。鉄筋コンクリート造、1階住戸、南(南東・南西)バルコニーの物件です。
-
| 価格 |
7,490万円
|
| 所在地 |
東京都世田谷区玉川3丁目 |
| 交通 |
東急田園都市線 「二子玉川」駅 徒歩3分
東急大井町線 「二子玉川」駅 徒歩3分
|
| 専有面積 |
48.88m²
(14.78坪)
壁芯
|
築年月 |
2008年9月 |
| 間取り |
1LDK |
所在階 |
1階/9階建 |
駅徒歩5分以内、土地権利所有権の物件です。鉄筋コンクリート造、1階住戸、南(南東・南西)バルコニーの物件です。
-
| 価格 |
12,000万円
|
| 所在地 |
東京都世田谷区世田谷1丁目 |
| 交通 |
東急田園都市線 「桜新町」駅 徒歩15分
東急世田谷線 「上町」駅 徒歩5分
|
| 専有面積 |
85.16m²
(25.76坪)
壁芯
|
築年月 |
2004年2月 |
| 間取り |
3LDK |
所在階 |
3階/9階建 |
駅徒歩5分以内、土地権利所有権の物件です。鉄筋コンクリート造、2階以上、大規模マンション(100戸以上)、南(南東・南西)バルコニーの物件です。
-
| 価格 |
3,480万円
|
| 所在地 |
東京都世田谷区羽根木1丁目 |
| 交通 |
京王電鉄井の頭線 「新代田」駅 徒歩5分
京王電鉄京王線 「代田橋」駅 徒歩11分
京王電鉄井の頭線 「下北沢」駅 徒歩12分
|
| 専有面積 |
44.55m²
(13.47坪)
壁芯
|
築年月 |
1974年7月 |
| 間取り |
ワンルーム |
所在階 |
4階/7階建 |
駅徒歩5分以内、土地権利所有権の物件です。駐車場空有、鉄筋コンクリート造、2階以上の物件です。
-
| 価格 |
7,280万円
|
| 所在地 |
東京都世田谷区千歳台6丁目 |
| 交通 |
小田急電鉄小田原線 「祖師ヶ谷大蔵」駅 徒歩18分
京王電鉄京王線 「千歳烏山」駅 徒歩21分
京王電鉄京王線 「芦花公園」駅 徒歩22分
|
| 専有面積 |
75.53m²
(22.84坪)
壁芯
|
築年月 |
2004年10月 |
| 間取り |
3LDK |
所在階 |
2階/8階建 |
土地権利所有権の物件です。鉄筋コンクリート造、2階以上、南(南東・南西)バルコニーの物件です。
-
| 価格 |
5,998万円
|
| 所在地 |
東京都調布市布田2丁目 |
| 交通 |
京王電鉄京王線 「調布」駅 徒歩5分
京王電鉄相模原線 「調布」駅 徒歩5分
京王電鉄京王線 「布田」駅 徒歩5分
|
| 専有面積 |
65.5m²
(19.81坪)
壁芯
|
築年月 |
1995年9月 |
| 間取り |
3LDK |
所在階 |
2階/8階建 |
駅徒歩5分以内、土地権利所有権の物件です。鉄筋コンクリート造、2階以上の物件です。
-
| 価格 |
10,980万円
|
| 所在地 |
東京都世田谷区尾山台1丁目 |
| 交通 |
東急大井町線 「九品仏」駅 徒歩13分
東急東横線 「田園調布」駅 徒歩18分
東急東横線 「自由が丘」駅 徒歩23分
|
| 専有面積 |
76.92m²
(23.26坪)
壁芯
|
築年月 |
2015年12月 |
| 間取り |
1LDK |
所在階 |
1階/3階建 |
低層住居専用地域、土地権利所有権の物件です。鉄筋コンクリート造、1階住戸、低層マンション(3階建て以下)、南(南東・南西)バルコニーの物件です。
-
| 価格 |
3,280万円
|
| 所在地 |
東京都世田谷区玉堤1丁目 |
| 交通 |
東急大井町線 「尾山台」駅 徒歩16分
東急大井町線 「等々力」駅 徒歩18分
東急大井町線 「九品仏」駅 徒歩24分
|
| 専有面積 |
57.78m²
(17.47坪)
壁芯
|
築年月 |
1979年9月 |
| 間取り |
3LDK |
所在階 |
3階/5階建 |
土地権利所有権の物件です。鉄筋コンクリート造、2階以上、南(南東・南西)バルコニーの物件です。
-
| 価格 |
7,880万円
|
| 所在地 |
東京都世田谷区砧1丁目 |
| 交通 |
小田急電鉄小田原線 「祖師ヶ谷大蔵」駅 徒歩19分
|
| 専有面積 |
107.58m²
(32.54坪)
|
築年月 |
1999年3月 |
| 間取り |
4LDK |
所在階 |
2階/5階建 |
土地権利所有権の物件です。鉄筋コンクリート造、専有面積100m2以上、4LDK以上、2階以上、南(南東・南西)バルコニーの物件です。
-
| 価格 |
22,500万円
|
| 所在地 |
東京都世田谷区等々力6丁目 |
| 交通 |
東急東横線 「自由が丘」駅 徒歩15分
東急大井町線 「九品仏」駅 徒歩13分
東急大井町線 「尾山台」駅 徒歩16分
|
| 専有面積 |
102.76m²
(31.08坪)
壁芯
|
築年月 |
2001年3月 |
| 間取り |
3LDK |
所在階 |
4階/4階建 |
低層住居専用地域、土地権利所有権の物件です。駐車場空有、鉄筋コンクリート造、専有面積100m2以上、最上階、2階以上、南(南東・南西)バルコニー、リフォーム済みの物件です。
-
| 価格 |
8,700万円
|
| 所在地 |
東京都狛江市和泉本町1丁目 |
| 交通 |
小田急電鉄小田原線 「狛江」駅 徒歩7分
小田急電鉄小田原線 「喜多見」駅 徒歩11分
小田急電鉄小田原線 「和泉多摩川」駅 徒歩16分
|
| 専有面積 |
76.44m²
(23.12坪)
壁芯
|
築年月 |
2016年8月 |
| 間取り |
3LDK |
所在階 |
3階/9階建 |
駅徒歩10分以内、土地権利所有権の物件です。鉄筋コンクリート造、2階以上、南(南東・南西)バルコニーの物件です。
-
| 価格 |
6,180万円
|
| 所在地 |
東京都調布市小島町1丁目 |
| 交通 |
京王電鉄京王線 「調布」駅 徒歩4分
京王電鉄相模原線 「調布」駅 徒歩4分
|
| 専有面積 |
71.47m²
(21.61坪)
壁芯
|
築年月 |
1997年12月 |
| 間取り |
3LDK |
所在階 |
1階/8階建 |
駅徒歩5分以内、土地権利所有権の物件です。鉄筋コンクリート造、1階住戸の物件です。
-
| 価格 |
4,280万円
|
| 所在地 |
東京都調布市国領町1丁目 |
| 交通 |
京王電鉄京王線 「布田」駅 徒歩7分
京王電鉄京王線 「国領」駅 徒歩9分
京王電鉄京王線 「調布」駅 徒歩14分
|
| 専有面積 |
67.2m²
(20.32坪)
壁芯
|
築年月 |
1976年3月 |
| 間取り |
3LDK |
所在階 |
5階/7階建 |
駅徒歩10分以内、土地権利所有権の物件です。鉄筋コンクリート造、即入居可、2階以上、南(南東・南西)バルコニー、リフォーム済みの物件です。
-
| 価格 |
6,690万円
|
| 所在地 |
東京都調布市国領町8丁目 |
| 交通 |
京王電鉄京王線 「国領」駅 徒歩8分
京王電鉄京王線 「柴崎」駅 徒歩13分
|
| 専有面積 |
65.7m²
(19.87坪)
壁芯
|
築年月 |
2005年8月 |
| 間取り |
3LDK |
所在階 |
3階/8階建 |
駅徒歩10分以内、土地権利所有権の物件です。鉄筋コンクリート造、2階以上、大規模マンション(100戸以上)の物件です。
-
| 価格 |
11,000万円
|
| 所在地 |
東京都世田谷区桜上水5丁目 |
| 交通 |
京王電鉄京王線 「桜上水」駅 徒歩7分
京王電鉄京王線 「上北沢」駅 徒歩8分
|
| 専有面積 |
88.52m²
(26.77坪)
壁芯
|
築年月 |
2001年5月 |
| 間取り |
3LDK |
所在階 |
1階/3階建 |
駅徒歩10分以内、低層住居専用地域、土地権利所有権の物件です。鉄筋コンクリート造、1階住戸、低層マンション(3階建て以下)、南(南東・南西)バルコニーの物件です。
最近見た物件
-
-
日進市東山5丁目
-
2,580万円
-
174.71m²(52.84坪)
-
名鉄豊田線 「日進」駅 徒歩15分