藤沢センターでお取扱い中の中古マンション物件一覧
藤沢センターの中古マンション購入は、三菱UFJ不動産販売の住まい1にお任せください。地域や沿線などご希望の条件から物件をお探しいただけます。物件の見学(内見)のお問い合わせもお気軽にどうぞ。
-
| 価格 |
2,698万円
|
| 所在地 |
神奈川県平塚市八千代町 |
| 交通 |
東海道本線 「平塚」駅 徒歩11分
湘南新宿ライン(前橋~小田原) 「平塚」駅 徒歩11分
|
| 専有面積 |
66.24m²
(20.03坪)
壁芯
|
築年月 |
1987年6月 |
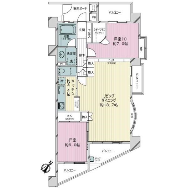
| 間取り |
3LDK |
所在階 |
3階/12階建 |
◎複合商業施設「ららぽーと湘南平塚」まで約640mの立地
◎東急不動産(株)旧分譲、東海興業(株)施工
◎2面採光のLDK(約13.5畳)・洋室(約5.2畳)
◎廊下部分に収納スペース有
◎洋室(約6畳)の引戸を開放すれば、LDと一体化した空間が広がります
〜2026年3月 新規内装リフォーム実施〜
【新規交換】・ユニットバス・洗濯栓・キッチン・トイレ・建具・給湯器
【新規張替え】・クロス(全居室)・フローリング(全居室)
【その他】・間取変更:和室から洋室(約6畳)・モニターホン取付・ハウスクリーニング
-
| 価格 |
5,780万円
|
| 所在地 |
神奈川県鎌倉市長谷2丁目 |
| 交通 |
江ノ島電鉄 「長谷」駅 徒歩5分
江ノ島電鉄 「由比ヶ浜」駅 徒歩7分
|
| 専有面積 |
96.9m²
(29.31坪)
壁芯
|
築年月 |
1979年11月 |
| 間取り |
3LDK |
所在階 |
1階/2階建 |
・由比ガ浜海水浴場まで徒歩約3分(約230m)
・2026年3月リフォーム済み
〜リフォーム内容(2026年3月完成)〜
・キッチン、浴室、洗面台、トイレ交換
・全クロス、床面貼替
・給湯器交換
・モニター付きインターホン設置
・スイッチ、コンセント交換
・建具、クローゼット交換
-
| 価格 |
3,480万円
|
| 所在地 |
神奈川県藤沢市鵠沼海岸1丁目 |
| 交通 |
小田急電鉄江ノ島線 「片瀬江ノ島」駅 徒歩12分
江ノ島電鉄 「湘南海岸公園」駅 徒歩11分
|
| 専有面積 |
71.36m²
(21.58坪)
内法
|
築年月 |
1980年3月 |
| 間取り |
3LDK |
所在階 |
3階/5階建 |
リフォーム済(2020年7月/キッチン・浴室・トイレ・壁・床・全室)
湘南・鵠沼海岸の海前に佇むオーシャンビューレジデンス
【全居室オーシャンビュー】富士山・江ノ島を望む湘南の海前レジデンス(3LDK)(※気象条件による)
全居室から海を望み、リビングからは江ノ島や富士山、美しい夕景も楽しめ、夏の江ノ島花火大会も自宅鑑賞可能です。(※気象条件による)
国道134号線を渡れば海岸で、散歩やサーフィンも可能です。
約15畳のLDKや対面キッチン、2020年7月リフォーム済みでマンション管理適正評価星5を取得しており管理体制も良好な一邸です。
-
| 価格 |
4,999万円
|
| 所在地 |
神奈川県藤沢市藤沢 |
| 交通 |
東海道本線 「藤沢」駅 徒歩4分
小田急電鉄江ノ島線 「藤沢」駅 徒歩4分
江ノ島電鉄 「藤沢」駅 徒歩5分
|
| 専有面積 |
65.46m²
(19.8坪)
壁芯
|
築年月 |
1985年6月 |
| 間取り |
2LDK
|
所在階 |
3階/11階建 |
リフォーム済(2026年1月/床、クロス、建具、水回り)
-
| 価格 |
8,900万円
|
| 所在地 |
神奈川県逗子市小坪6丁目 |
| 交通 |
横須賀線 「逗子」駅 バス9分 「逗子ヘルスケア前」バス停下車 徒歩4分
湘南新宿ライン(宇都宮~逗子) 「逗子」駅 バス9分 「逗子ヘルスケア前」バス停下車 徒歩4分
|
| 専有面積 |
137.81m²
(41.68坪)
壁芯
|
築年月 |
1991年3月 |
| 間取り |
3LDK |
所在階 |
5階/5階建 |
低層住居専用地域、土地権利所有権の物件です。駐車場空有、鉄筋コンクリート造、専有面積100m2以上、最上階、2階以上、南(南東・南西)バルコニーの物件です。
-
| 価格 |
4,880万円
|
| 所在地 |
神奈川県藤沢市湘南台5丁目 |
| 交通 |
横浜市営地下鉄ブルーライン 「湘南台」駅 徒歩5分
小田急電鉄江ノ島線 「湘南台」駅 徒歩5分
相模鉄道いずみ野線 「湘南台」駅 徒歩5分
|
| 専有面積 |
54.85m²
(16.59坪)
壁芯
|
築年月 |
2012年9月 |
| 間取り |
1LDK |
所在階 |
11階/15階建 |
駅徒歩5分以内、土地権利所有権の物件です。鉄筋コンクリート造、10階以上の物件です。
-
| 価格 |
7,280万円
|
| 所在地 |
神奈川県藤沢市羽鳥1丁目 |
| 交通 |
東海道本線 「辻堂」駅 徒歩9分
|
| 専有面積 |
72.22m²
(21.84坪)
壁芯
|
築年月 |
2018年12月 |
| 間取り |
3LDK |
所在階 |
4階/14階建 |
駅徒歩10分以内、土地権利所有権の物件です。鉄筋コンクリート造、2階以上、大規模マンション(100戸以上)、南(南東・南西)バルコニーの物件です。
-
| 価格 |
3,780万円
|
| 所在地 |
神奈川県茅ヶ崎市緑が浜 |
| 交通 |
東海道本線 「辻堂」駅 バス9分 「茅ヶ崎学園入口」バス停下車 徒歩3分
|
| 専有面積 |
75.4m²
(22.8坪)
壁芯
|
築年月 |
2000年11月 |
| 間取り |
3LDK |
所在階 |
3階/7階建 |
土地権利所有権の物件です。鉄筋コンクリート造、2階以上、南(南東・南西)バルコニーの物件です。
-
| 価格 |
4,880万円
|
| 所在地 |
神奈川県平塚市錦町 |
| 交通 |
東海道本線 「平塚」駅 徒歩2分
|
| 専有面積 |
55.35m²
(16.74坪)
壁芯
|
築年月 |
2023年6月 |
| 間取り |
2LDK |
所在階 |
9階/10階建 |
駅徒歩5分以内、土地権利所有権の物件です。築浅、鉄筋コンクリート造、2階以上、大規模マンション(100戸以上)の物件です。
-
| 価格 |
3,180万円
|
| 所在地 |
神奈川県平塚市高浜台 |
| 交通 |
東海道本線 「平塚」駅 徒歩19分
|
| 専有面積 |
86.39m²
(26.13坪)
壁芯
|
築年月 |
2003年3月 |
| 間取り |
4LDK |
所在階 |
2階/11階建 |
土地権利所有権の物件です。鉄筋コンクリート造、4LDK以上、2階以上、南(南東・南西)バルコニーの物件です。
-
| 価格 |
3,680万円
|
| 所在地 |
神奈川県平塚市錦町 |
| 交通 |
東海道本線 「平塚」駅 徒歩2分
|
| 専有面積 |
44.58m²
(13.48坪)
壁芯
|
築年月 |
2023年6月 |
| 間取り |
1LDK |
所在階 |
2階/10階建 |
駅徒歩5分以内、土地権利所有権の物件です。築浅、鉄筋コンクリート造、2階以上、大規模マンション(100戸以上)の物件です。
-
| 価格 |
3,080万円
|
| 所在地 |
神奈川県藤沢市大庭 |
| 交通 |
東海道本線 「辻堂」駅 バス8分 「有藤」バス停下車 徒歩1分
|
| 専有面積 |
75.57m²
(22.85坪)
壁芯
|
築年月 |
1998年2月 |
| 間取り |
3LDK |
所在階 |
10階/11階建 |
土地権利所有権の物件です。鉄筋コンクリート造、10階以上、南(南東・南西)バルコニーの物件です。
-
| 価格 |
3,480万円
|
| 所在地 |
神奈川県平塚市明石町 |
| 交通 |
東海道本線 「平塚」駅 徒歩5分
湘南新宿ライン(前橋~小田原) 「平塚」駅 徒歩5分
|
| 専有面積 |
75.85m²
(22.94坪)
壁芯
|
築年月 |
2000年2月 |
| 間取り |
3LDK |
所在階 |
4階/12階建 |
駅徒歩5分以内、土地権利所有権の物件です。鉄骨鉄筋コンクリート造、2階以上、南(南東・南西)バルコニーの物件です。
-
| 価格 |
3,280万円
|
| 所在地 |
神奈川県藤沢市川名 |
| 交通 |
東海道本線 「藤沢」駅 徒歩19分
小田急電鉄江ノ島線 「藤沢」駅 徒歩19分
江ノ島電鉄 「藤沢」駅 徒歩19分
|
| 専有面積 |
70.56m²
(21.34坪)
壁芯
|
築年月 |
1998年5月 |
| 間取り |
3LDK |
所在階 |
2階/5階建 |
土地権利所有権の物件です。駐車場空有、鉄筋コンクリート造、2階以上、南(南東・南西)バルコニーの物件です。
-
| 価格 |
3,580万円
|
| 所在地 |
神奈川県鎌倉市岩瀬 |
| 交通 |
東海道本線 「大船」駅 徒歩16分
横須賀線 「大船」駅 徒歩16分
京浜東北・根岸線 「大船」駅 徒歩16分
|
| 専有面積 |
76.48m²
(23.13坪)
壁芯
|
築年月 |
1994年1月 |
| 間取り |
3LDK |
所在階 |
7階/8階建 |
土地権利所有権の物件です。駐車場空有、鉄筋コンクリート造、2階以上、南(南東・南西)バルコニーの物件です。
-
| 価格 |
4,980万円
|
| 所在地 |
神奈川県平塚市天沼 |
| 交通 |
東海道本線 「平塚」駅 徒歩16分
|
| 専有面積 |
82.27m²
(24.88坪)
壁芯
|
築年月 |
2006年7月 |
| 間取り |
3LDK |
所在階 |
10階/13階建 |
土地権利所有権の物件です。鉄筋コンクリート造、即入居可、10階以上、大規模マンション(100戸以上)、南(南東・南西)バルコニーの物件です。
-
| 価格 |
3,698万円
|
| 所在地 |
神奈川県鎌倉市台2丁目 |
| 交通 |
湘南モノレール 「富士見町」駅 徒歩4分
東海道本線 「大船」駅 徒歩13分
|
| 専有面積 |
77.33m²
(23.39坪)
壁芯
|
築年月 |
1981年1月 |
| 間取り |
3LDK |
所在階 |
3階/6階建 |
駅徒歩5分以内、土地権利所有権の物件です。駐車場空有、鉄筋コンクリート造、2階以上、南(南東・南西)バルコニーの物件です。
-
| 価格 |
3,280万円
|
| 所在地 |
神奈川県藤沢市辻堂6丁目 |
| 交通 |
東海道本線 「辻堂」駅 徒歩17分
|
| 専有面積 |
65.24m²
(19.73坪)
壁芯
|
築年月 |
1995年2月 |
| 間取り |
2LDK+納戸(S) |
所在階 |
1階/5階建 |
土地権利所有権の物件です。鉄筋コンクリート造、1階住戸の物件です。
-
| 価格 |
3,380万円
|
| 所在地 |
神奈川県茅ヶ崎市富士見町 |
| 交通 |
湘南新宿ライン(前橋~小田原) 「辻堂」駅 徒歩18分
東海道本線 「辻堂」駅 徒歩18分
東海道本線 「辻堂」駅 バス5分 「常盤町」バス停下車 徒歩1分
|
| 専有面積 |
71.69m²
(21.68坪)
壁芯
|
築年月 |
1994年3月 |
| 間取り |
3LDK |
所在階 |
3階/5階建 |
土地権利所有権の物件です。鉄筋コンクリート造、2階以上、南(南東・南西)バルコニーの物件です。
-
| 価格 |
3,680万円
|
| 所在地 |
神奈川県茅ヶ崎市本村1丁目 |
| 交通 |
東海道本線 「茅ケ崎」駅 徒歩11分
湘南新宿ライン(前橋~小田原) 「茅ケ崎」駅 徒歩11分
相模線 「茅ケ崎」駅 徒歩11分
|
| 専有面積 |
71.15m²
(21.52坪)
壁芯
|
築年月 |
2004年2月 |
| 間取り |
2LDK |
所在階 |
2階/11階建 |
土地権利所有権の物件です。駐車場空有、鉄筋コンクリート造、2階以上、南(南東・南西)バルコニーの物件です。
-
| 価格 |
5,980万円
|
| 所在地 |
神奈川県茅ヶ崎市茅ヶ崎2丁目 |
| 交通 |
東海道本線 「茅ケ崎」駅 徒歩9分
相模線 「北茅ケ崎」駅 徒歩5分
|
| 専有面積 |
68.4m²
(20.69坪)
壁芯
|
築年月 |
2022年7月 |
| 間取り |
3LDK |
所在階 |
1階/7階建 |
駅徒歩5分以内、土地権利所有権の物件です。築浅、鉄筋コンクリート造、1階住戸、南(南東・南西)バルコニーの物件です。
-
| 価格 |
3,480万円
|
| 所在地 |
神奈川県鎌倉市岡本 |
| 交通 |
東海道本線 「大船」駅 徒歩16分
横須賀線 「大船」駅 徒歩16分
京浜東北・根岸線 「大船」駅 徒歩16分
|
| 専有面積 |
78.04m²
(23.6坪)
壁芯
|
築年月 |
1999年8月 |
| 間取り |
3LDK |
所在階 |
2階/7階建 |
土地権利所有権の物件です。駐車場空有、鉄骨鉄筋コンクリート造、2階以上、南(南東・南西)バルコニーの物件です。
-
| 価格 |
4,080万円
|
| 所在地 |
神奈川県平塚市宮の前 |
| 交通 |
東海道本線 「平塚」駅 徒歩5分
|
| 専有面積 |
55.29m²
(16.72坪)
壁芯
|
築年月 |
2023年2月 |
| 間取り |
2LDK+納戸(S) |
所在階 |
2階/11階建 |
駅徒歩5分以内、土地権利所有権の物件です。駐車場空有、築浅、鉄筋コンクリート造、2階以上、南(南東・南西)バルコニーの物件です。
-
| 価格 |
4,180万円
|
| 所在地 |
神奈川県鎌倉市腰越1丁目 |
| 交通 |
江ノ島電鉄 「鎌倉高校前」駅 徒歩6分
江ノ島電鉄 「腰越」駅 徒歩13分
湘南モノレール 「西鎌倉」駅 徒歩18分
|
| 専有面積 |
76.15m²
(23.03坪)
壁芯
|
築年月 |
1997年9月 |
| 間取り |
3LDK |
所在階 |
4階/5階建 |
駅徒歩10分以内、土地権利所有権の物件です。駐車場空有、鉄筋コンクリート造、2階以上、南(南東・南西)バルコニーの物件です。
-
| 価格 |
15,000万円
|
| 所在地 |
神奈川県藤沢市片瀬海岸2丁目 |
| 交通 |
小田急電鉄江ノ島線 「片瀬江ノ島」駅 徒歩4分
|
| 専有面積 |
80.68m²
(24.4坪)
壁芯
|
築年月 |
2011年1月 |
| 間取り |
1LDK |
所在階 |
4階/5階建 |
駅徒歩5分以内、土地権利所有権の物件です。駐車場空有、鉄筋コンクリート造、2階以上、南(南東・南西)バルコニーの物件です。
-
| 価格 |
5,280万円
|
| 所在地 |
神奈川県藤沢市川名 |
| 交通 |
東海道本線 「藤沢」駅 徒歩14分
小田急電鉄江ノ島線 「藤沢」駅 徒歩14分
江ノ島電鉄 「藤沢」駅 徒歩14分
|
| 専有面積 |
80.6m²
(24.38坪)
壁芯
|
築年月 |
2001年10月 |
| 間取り |
3LDK |
所在階 |
2階/14階建 |
土地権利所有権の物件です。鉄骨鉄筋コンクリート造、2階以上、大規模マンション(100戸以上)の物件です。
-
| 価格 |
3,980万円
|
| 所在地 |
神奈川県藤沢市本鵠沼1丁目 |
| 交通 |
湘南新宿ライン(前橋~小田原) 「藤沢」駅 徒歩14分
小田急電鉄江ノ島線 「藤沢」駅 徒歩14分
江ノ島電鉄 「藤沢」駅 徒歩15分
|
| 専有面積 |
67.05m²
(20.28坪)
壁芯
|
築年月 |
1997年9月 |
| 間取り |
3LDK |
所在階 |
1階/9階建 |
土地権利所有権の物件です。ペット可(細則有)、鉄筋コンクリート造、1階住戸、南(南東・南西)バルコニーの物件です。
-
| 価格 |
6,380万円
|
| 所在地 |
神奈川県茅ヶ崎市赤松町 |
| 交通 |
東海道本線 「辻堂」駅 徒歩7分
|
| 専有面積 |
70.41m²
(21.29坪)
壁芯
|
築年月 |
2000年10月 |
| 間取り |
1LDK |
所在階 |
2階/14階建 |
駅徒歩10分以内、土地権利所有権の物件です。駐車場空有、鉄骨鉄筋コンクリート造、2階以上、大規模マンション(100戸以上)、南(南東・南西)バルコニーの物件です。
-
| 価格 |
16,980万円
|
| 所在地 |
神奈川県鎌倉市雪ノ下1丁目 |
| 交通 |
横須賀線 「鎌倉」駅 徒歩7分
江ノ島電鉄 「鎌倉」駅 徒歩7分
|
| 専有面積 |
130.05m²
(39.34坪)
壁芯
|
築年月 |
1990年7月 |
| 間取り |
4LDK |
所在階 |
2階/3階建 |
駅徒歩10分以内、土地権利所有権の物件です。駐車場空有、鉄筋コンクリート造、専有面積100m2以上、4LDK以上、2階以上、低層マンション(3階建て以下)、南(南東・南西)バルコニーの物件です。
-
| 価格 |
12,000万円
|
| 所在地 |
神奈川県藤沢市辻堂神台1丁目 |
| 交通 |
東海道本線 「辻堂」駅 徒歩2分
湘南新宿ライン(前橋~小田原) 「辻堂」駅 徒歩2分
|
| 専有面積 |
70.42m²
(21.3坪)
壁芯
|
築年月 |
2013年1月 |
| 間取り |
3LDK |
所在階 |
3階/14階建 |
駅徒歩5分以内、土地権利所有権の物件です。駐車場空有、鉄筋コンクリート造、2階以上、大規模マンション(100戸以上)、南(南東・南西)バルコニーの物件です。