西武鉄道新宿線の駅徒歩20分以内の新築・中古一戸建て物件一覧
西武鉄道新宿線の駅徒歩20分以内の新築・中古一戸建て購入は、三菱UFJ不動産販売の住まい1にお任せください。地域や沿線などご希望の条件から物件をお探しいただけます。物件の見学(内見)のお問い合わせもお気軽にどうぞ。
-
| 価格 |
7,980万円
|
| 所在地 |
東京都中野区大和町4丁目 |
| 交通 |
中央本線 「阿佐ケ谷」駅 徒歩17分
西武鉄道新宿線 「鷺ノ宮」駅 徒歩16分
西武鉄道新宿線 「都立家政」駅 徒歩17分
|
| 建物面積 |
80.32m²
(24.29坪)
|
築年月 |
2026年1月 |
| 土地面積 |
71.05m²
(21.49坪)
|
構造 |
木造 地上2階建 |
| 間取り |
1LDK+納戸(S)×2 |
|
|
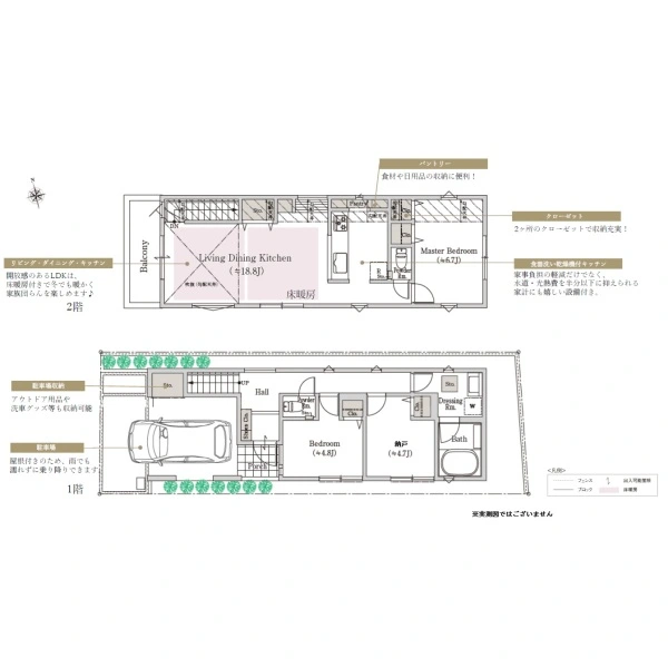
◎閑静な住環境◎東側約4.0m公道◎ゆとりのLDK(約17.6畳)◎対面キッチン◎南向きバルコニーを配した3面採光のLD
〜Facility(建物の設備・仕様)〜
〇食洗機・浄水器付システムキッチン〇浴室乾燥機〇3面鏡洗面化粧台〇ウォシュレット一体型トイレ(TOTO製)
〜Life Information〜 ◇マルエツ中野若宮店・・・約470m◇ツルハドラッグ中野若宮店・・・約440m◇阿佐谷北六郵便局・・・約390m◇河北総合病院・・・約960m◇区立美鳩小学校・・・約470m◇区立明和中学校・・・約960m◇白鷺せせらぎ公園・・・約580m◇杉並区立馬橋公園・・・約600m
-
| 価格 |
10,880万円
|
| 所在地 |
東京都練馬区下石神井4丁目 |
| 交通 |
西武鉄道新宿線 「上井草」駅 徒歩6分
西武鉄道新宿線 「上石神井」駅 徒歩13分
|
| 建物面積 |
109.61m²
(33.15坪)
|
築年月 |
2026年6月 |
| 土地面積 |
140.5m²
(42.5坪)
|
構造 |
木造 地上2階建 |
| 間取り |
4LDK |
|
|
●本物件は、まちづくり構想に基づき令和8年度〜令和9年度に上井草駅周辺地区(下石神井四丁目)地区計画区域に指定される予定地です。なお、南側前面道路は主要な生活道路に指定される予定であり、建物を建築する際は、道路中心線から水平距離3m道路後退が必要となります。●土地面積には道路後退予定面積/約13.33平米が含まれます●本物件土地は西側隣地より約1m低く高低差が生じています(擁壁は隣地所有)。●カースペース有(車種による制限有)
-
| 価格 |
3,600万円
|
| 所在地 |
埼玉県所沢市大字牛沼 |
| 交通 |
西武池袋・豊島線 「所沢」駅 徒歩19分
西武鉄道新宿線 「所沢」駅 徒歩19分
西武鉄道新宿線 「航空公園」駅 徒歩25分
|
| 建物面積 |
90.88m²
(27.49坪)
|
築年月 |
2020年11月 |
| 土地面積 |
165.33m²
(50.01坪)
|
構造 |
木造 地上2階建 |
| 間取り |
2LDK |
|
|
●全居室約6畳以上の2LDK
●ゆとりのLDK(約20.5畳)
●IHヒーター採用対面カウンターキッチン
●2階:収納力のあるWIC(2WAY仕様)
●玄関周りをスッキリと収納できるSIC
-
| 価格 |
5,399万円
|
| 所在地 |
東京都杉並区下井草3丁目 |
| 交通 |
西武鉄道新宿線 「下井草」駅 徒歩4分
|
| 建物面積 |
69.95m²
(21.15坪)
|
築年月 |
2019年10月 |
| 土地面積 |
71.38m²
(21.59坪)
|
構造 |
木造 地上2階建 |
| 間取り |
2LDK+納戸(S)×1
|
|
|
■利便性・住環境良好
■あると便利な宅配BOX新設
■家事の手間が省ける食器洗い乾燥機付
-
| 価格 |
7,499万円
|
| 所在地 |
東京都杉並区桃井2丁目 |
| 交通 |
中央本線 「荻窪」駅 徒歩21分
東京メトロ丸ノ内線 「荻窪」駅 徒歩21分
西武鉄道新宿線 「上井草」駅 徒歩18分
|
| 建物面積 |
75.95m²
(22.97坪)
|
築年月 |
2015年5月 |
| 土地面積 |
67.21m²
(20.33坪)
|
構造 |
木造 地上2階建 |
| 間取り |
1LDK+納戸(S)×2
|
|
|
■2駅3路線利用可能
■小中学校、桃井原っぱ公園が近く、子育てに適した住環境です!
-
| 価格 |
7,280万円
|
| 所在地 |
東京都中野区野方6丁目 |
| 交通 |
西武鉄道新宿線 「野方」駅 徒歩3分
西武鉄道新宿線 「都立家政」駅 徒歩10分
|
| 建物面積 |
92.12m²
(27.86坪)
|
築年月 |
2026年5月 |
| 土地面積 |
72.15m²
(21.82坪)
|
構造 |
木造 地上2階建 |
| 間取り |
3LDK
|
|
|
■2駅利用可能■シロアリ保証5年■地盤保証20年■階段足下灯■全室ペアガラス■エコジョーズ■24時間換気■アルミ樹脂複合サッシ■浴室乾燥機■TVモニター付きインターフォン■システムキッチン■ハンドシャワー付き洗面台
-
| 価格 |
9,999万円
|
| 所在地 |
東京都中野区江古田1丁目 |
| 交通 |
都営大江戸線 「新江古田」駅 徒歩11分
西武鉄道新宿線 「沼袋」駅 徒歩14分
|
| 建物面積 |
137.57m²
(41.61坪)
|
築年月 |
2026年4月 |
| 土地面積 |
78.64m²
(23.78坪)
|
構造 |
木造 地上3階建 |
| 間取り |
3LDK+納戸(S)×1
|
|
|
■2路線2駅利用可能
■LDK20.8帖!
■ビルトイン駐車場
-
| 価格 |
10,999万円
|
| 所在地 |
東京都中野区江古田1丁目 |
| 交通 |
都営大江戸線 「新江古田」駅 徒歩11分
西武鉄道新宿線 「沼袋」駅 徒歩14分
|
| 建物面積 |
129.92m²
(39.3坪)
|
築年月 |
2026年4月 |
| 土地面積 |
78.81m²
(23.84坪)
|
構造 |
木造 地上3階建 |
| 間取り |
3LDK+納戸(S)×1
|
|
|
■2路線2駅利用可能
■LDK19.2帖!
■ビルトイン駐車場
-
| 価格 |
6,599万円
|
| 所在地 |
東京都中野区鷺宮5丁目 |
| 交通 |
西武鉄道新宿線 「鷺ノ宮」駅 徒歩13分
|
| 建物面積 |
73.55m²
(22.24坪)
|
築年月 |
2002年11月 |
| 土地面積 |
54.84m²
(16.58坪)
|
構造 |
木造 地上3階建 |
| 間取り |
2LDK+納戸(S)×1
|
|
|
■急行停車駅「鷺ノ宮」駅徒歩13分!
■全居室6帖以上のゆとりある間取り!
■小・中学校が近く、子育てに適した住環境です!
-
| 価格 |
9,500万円
|
| 所在地 |
東京都中野区鷺宮4丁目 |
| 交通 |
西武鉄道新宿線 「鷺ノ宮」駅 徒歩5分
西武鉄道新宿線 「都立家政」駅 徒歩11分
西武池袋・豊島線 「中村橋」駅 徒歩18分
|
| 建物面積 |
119.45m²
(36.13坪)
|
築年月 |
1999年6月 |
| 土地面積 |
122.65m²
(37.1坪)
|
構造 |
木造 地上2階建 |
| 間取り |
4LDK |
|
|
駅徒歩5分以内、低層住居専用地域、土地権利所有権の物件です。建物面積100m2以上、4LDK以上の物件です。
-
| 価格 |
8,800万円
|
| 所在地 |
東京都杉並区西荻北1丁目 |
| 交通 |
中央本線 「西荻窪」駅 徒歩13分
中央本線 「荻窪」駅 徒歩18分
西武鉄道新宿線 「上井草」駅 徒歩26分
|
| 建物面積 |
72.34m²
(21.88坪)
|
築年月 |
2024年7月 |
| 土地面積 |
74.65m²
(22.58坪)
|
構造 |
木造 地上2階建 |
| 間取り |
2LDK |
|
|
低層住居専用地域、両面道路、南道路、土地権利所有権の物件です。駐車場有、築浅の物件です。
-
| 価格 |
5,700万円
|
| 所在地 |
東京都中野区大和町3丁目 |
| 交通 |
中央本線 「高円寺」駅 徒歩16分
中央本線 「阿佐ケ谷」駅 徒歩16分
西武鉄道新宿線 「都立家政」駅 徒歩19分
|
| 建物面積 |
53.06m²
(16.05坪)
|
築年月 |
2024年10月 |
| 土地面積 |
45.5m²
(13.76坪)
|
構造 |
木造 地上2階建 |
| 間取り |
1LDK+納戸(S) |
|
|
南東道路、土地権利所有権の物件です。築浅の物件です。
-
| 価格 |
7,880万円
|
| 所在地 |
東京都新宿区西落合3丁目 |
| 交通 |
都営大江戸線 「落合南長崎」駅 徒歩1分
西武池袋・豊島線 「東長崎」駅 徒歩12分
西武鉄道新宿線 「中井」駅 徒歩15分
|
| 建物面積 |
76.12m²
(23.02坪)
|
築年月 |
2016年8月 |
| 土地面積 |
68.41m²
(20.69坪)
|
構造 |
木造 地上2階建 |
| 間取り |
2LDK |
|
|
駅徒歩5分以内、低層住居専用地域、土地権利所有権の物件です。駐車場有の物件です。
-
| 価格 |
12,000万円
|
| 所在地 |
東京都新宿区中落合2丁目 |
| 交通 |
西武鉄道新宿線 「下落合」駅 徒歩7分
都営大江戸線 「中井」駅 徒歩11分
西武池袋・豊島線 「椎名町」駅 徒歩12分
|
| 建物面積 |
148.07m²
(44.79坪)
|
築年月 |
2000年7月 |
| 土地面積 |
105.79m²
(32坪)
|
構造 |
木造 地上2階 地下1階建 |
| 間取り |
4LDK |
|
|
駅徒歩10分以内、低層住居専用地域、土地権利所有権の物件です。駐車場有、建物面積100m2以上、4LDK以上、即入居可の物件です。
-
| 価格 |
7,390万円
|
| 所在地 |
東京都中野区野方6丁目 |
| 交通 |
西武鉄道新宿線 「野方」駅 徒歩6分
西武池袋・豊島線 「練馬」駅 徒歩23分
|
| 建物面積 |
78.83m²
(23.84坪)
|
築年月 |
2018年2月 |
| 土地面積 |
60.86m²
(18.41坪)
|
構造 |
木造 地上2階建 |
| 間取り |
1LDK+納戸(S) |
|
|
駅徒歩10分以内、土地権利所有権の物件です。駐車場有の物件です。
-
| 価格 |
5,380万円
|
| 所在地 |
東京都西東京市富士町2丁目 |
| 交通 |
西武鉄道新宿線 「東伏見」駅 徒歩12分
|
| 建物面積 |
87.7m²
(26.52坪)
|
築年月 |
2010年12月 |
| 土地面積 |
110.29m²
(33.36坪)
|
構造 |
木造 地上2階建 |
| 間取り |
3LDK+納戸(S) |
|
|
低層住居専用地域、南道路、土地権利所有権の物件です。駐車場有の物件です。
-
| 価格 |
9,480万円
|
| 所在地 |
東京都中野区若宮3丁目 |
| 交通 |
西武鉄道新宿線 「都立家政」駅 徒歩4分
西武鉄道新宿線 「鷺ノ宮」駅 徒歩5分
|
| 建物面積 |
102.06m²
(30.87坪)
|
築年月 |
2014年12月 |
| 土地面積 |
93.42m²
(28.25坪)
|
構造 |
木造 地上2階建 |
| 間取り |
2LDK+納戸(S) |
|
|
駅徒歩5分以内、低層住居専用地域、土地権利所有権の物件です。駐車場有、建物面積100m2以上の物件です。
-
| 価格 |
4,490万円
|
| 所在地 |
東京都小平市仲町 |
| 交通 |
西武鉄道新宿線 「小平」駅 徒歩10分
|
| 建物面積 |
87.58m²
(26.49坪)
|
築年月 |
2012年10月 |
| 土地面積 |
110.06m²
(33.29坪)
|
構造 |
木造 地上2階建 |
| 間取り |
3LDK |
|
|
駅徒歩10分以内、低層住居専用地域、角地、南道路、土地権利所有権の物件です。
-
| 価格 |
7,980万円
|
| 所在地 |
東京都練馬区上石神井4丁目 |
| 交通 |
西武鉄道新宿線 「武蔵関」駅 徒歩11分
|
| 建物面積 |
126.82m²
(38.36坪)
|
築年月 |
1991年4月 |
| 土地面積 |
134.63m²
(40.72坪)
|
構造 |
木造 地上2階建 |
| 間取り |
3LDK |
|
|
低層住居専用地域、土地権利所有権の物件です。駐車場有、建物面積100m2以上の物件です。
-
| 価格 |
43,000万円
|
| 所在地 |
東京都杉並区本天沼2丁目 |
| 交通 |
西武鉄道新宿線 「下井草」駅 徒歩14分
中央本線 「荻窪」駅 徒歩21分
|
| 建物面積 |
236.67m²
(71.59坪)
|
築年月 |
2003年1月 |
| 土地面積 |
406.39m²
(122.93坪)
|
構造 |
木造 地上2階建 |
| 間取り |
6LDK |
|
|
低層住居専用地域、角地、南東道路、土地権利所有権の物件です。建物面積100m2以上、4LDK以上の物件です。
-
| 価格 |
3,480万円
|
| 所在地 |
東京都西東京市中町5丁目 |
| 交通 |
西武鉄道新宿線 「東伏見」駅 徒歩15分
|
| 建物面積 |
86.48m²
(26.16坪)
|
築年月 |
1986年2月 |
| 土地面積 |
90.92m²
(27.5坪)
|
構造 |
木造 地上2階建 |
| 間取り |
4LDK |
|
|
低層住居専用地域、角地、土地権利所有権の物件です。駐車場有、4LDK以上の物件です。
-
| 価格 |
7,980万円
|
| 所在地 |
東京都練馬区下石神井5丁目 |
| 交通 |
西武鉄道新宿線 「上井草」駅 徒歩11分
西武鉄道新宿線 「上石神井」駅 徒歩21分
|
| 建物面積 |
97.99m²
(29.64坪)
|
築年月 |
2016年6月 |
| 土地面積 |
119.95m²
(36.28坪)
|
構造 |
木造 地上2階建 |
| 間取り |
4LDK |
|
|
低層住居専用地域、土地権利所有権の物件です。駐車場有、4LDK以上の物件です。
-
| 価格 |
9,000万円
|
| 所在地 |
東京都中野区丸山1丁目 |
| 交通 |
西武鉄道新宿線 「野方」駅 徒歩12分
西武鉄道新宿線 「沼袋」駅 徒歩16分
|
| 建物面積 |
88.9m²
(26.89坪)
|
築年月 |
2023年8月 |
| 土地面積 |
70.95m²
(21.46坪)
|
構造 |
木造 地上3階建 |
| 間取り |
2LDK+納戸(S) |
|
|
低層住居専用地域、南道路、土地権利所有権の物件です。駐車場有、築浅の物件です。
-
| 価格 |
7,980万円
|
| 所在地 |
東京都中野区鷺宮1丁目 |
| 交通 |
西武鉄道新宿線 「都立家政」駅 徒歩6分
|
| 建物面積 |
89.5m²
(27.07坪)
|
築年月 |
2008年1月 |
| 土地面積 |
91.22m²
(27.59坪)
|
構造 |
木造 地上2階建 |
| 間取り |
2LDK+納戸(S) |
|
|
駅徒歩10分以内、低層住居専用地域、南道路、土地権利所有権の物件です。駐車場有の物件です。
-
| 価格 |
6,980万円
|
| 所在地 |
東京都小平市大沼町4丁目 |
| 交通 |
西武鉄道新宿線 「小平」駅 徒歩18分
中央本線 「武蔵小金井」駅 バス29分 「ガスミュージアム入口」バス停下車 徒歩8分
西武池袋・豊島線 「東久留米」駅 バス29分 「ガスミュージアム入口」バス停下車 徒歩8分
|
| 建物面積 |
90.99m²
(27.52坪)
|
築年月 |
2022年11月 |
| 土地面積 |
135m²
(40.83坪)
|
構造 |
木造 地上2階建 |
| 間取り |
2LDK |
|
|
低層住居専用地域、角地、南道路、土地権利所有権の物件です。駐車場有、築浅の物件です。
-
| 価格 |
14,000万円
|
| 所在地 |
東京都新宿区西早稲田3丁目 |
| 交通 |
東京メトロ副都心線 「西早稲田」駅 徒歩7分
東京メトロ東西線 「高田馬場」駅 徒歩8分
山手線 「高田馬場」駅 徒歩12分
|
| 建物面積 |
143.32m²
(43.35坪)
|
築年月 |
1988年1月 |
| 土地面積 |
101.85m²
(30.8坪)
|
構造 |
RC 地上3階建 |
| 間取り |
4LDK |
|
|
駅徒歩10分以内、角地、南東道路、南西道路、土地権利所有権の物件です。駐車場有、鉄筋コンクリート造、建物面積100m2以上、4LDK以上の物件です。
-
| 価格 |
17,500万円
|
| 所在地 |
東京都中野区上鷺宮5丁目 |
| 交通 |
西武池袋・豊島線 「富士見台」駅 徒歩8分
西武鉄道新宿線 「下井草」駅 徒歩16分
|
| 建物面積 |
185.88m²
(56.22坪)
|
築年月 |
1988年12月 |
| 土地面積 |
281.89m²
(85.27坪)
|
構造 |
軽量鉄骨 地上2階建 |
| 間取り |
4LDK+納戸(S) |
|
|
駅徒歩10分以内、幅員6m以上、低層住居専用地域、角地、南東道路、土地権利所有権の物件です。駐車場有、建物面積100m2以上、4LDK以上の物件です。
-
| 価格 |
4,480万円
|
| 所在地 |
東京都西東京市保谷町3丁目 |
| 交通 |
西武鉄道新宿線 「西武柳沢」駅 徒歩5分
西武鉄道新宿線 「東伏見」駅 徒歩15分
|
| 建物面積 |
88.8m²
(26.86坪)
|
築年月 |
1997年1月 |
| 土地面積 |
76.11m²
(23.02坪)
|
構造 |
軽量鉄骨 地上2階建 |
| 間取り |
3DK |
|
|
駅徒歩5分以内、幅員6m以上、三方角地、南道路、土地権利所有権の物件です。駐車場有、即入居可の物件です。
-
| 価格 |
9,480万円
|
| 所在地 |
東京都杉並区上井草2丁目 |
| 交通 |
西武鉄道新宿線 「上井草」駅 徒歩6分
西武鉄道新宿線 「井荻」駅 徒歩11分
|
| 建物面積 |
149.49m²
(45.22坪)
|
築年月 |
1971年10月 |
| 土地面積 |
184.53m²
(55.82坪)
|
構造 |
木造 地上2階建 |
| 間取り |
3LDK |
|
|
駅徒歩10分以内、幅員6m以上、低層住居専用地域、土地権利所有権の物件です。建物面積100m2以上の物件です。
-
| 価格 |
7,980万円
|
| 所在地 |
東京都練馬区石神井台1丁目 |
| 交通 |
西武池袋・豊島線 「石神井公園」駅 徒歩19分
西武鉄道新宿線 「上石神井」駅 徒歩20分
|
| 建物面積 |
99.14m²
(29.98坪)
|
築年月 |
1997年11月 |
| 土地面積 |
133.82m²
(40.48坪)
|
構造 |
木造 地上2階建 |
| 間取り |
4LDK |
|
|
低層住居専用地域、土地権利所有権の物件です。駐車場有、4LDK以上の物件です。