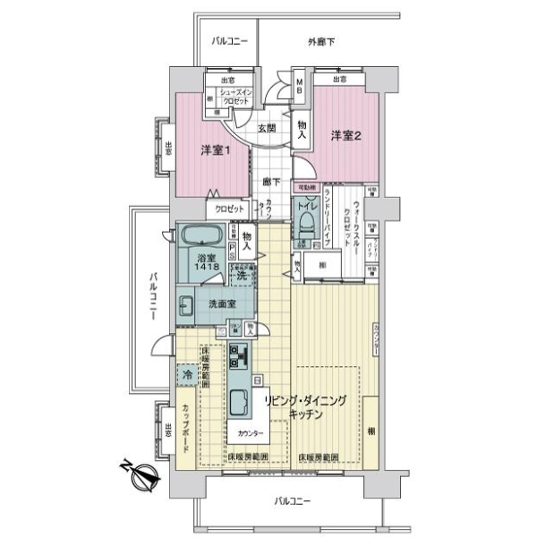
マンション NEW ユニーブル西荻窪II 画像枚数6枚 価格 6,980万円 所在地 東京都杉並区西荻北1丁目 交通 中央本線 「西荻窪」駅 徒歩12分 総武線 「荻窪」駅 徒歩13分 東京メトロ丸ノ内線 「荻窪」駅 徒歩13分 専有面積 67.65m² (20.46坪) 壁芯 築年月 2004年4月 間取り 1LDK+納戸(S) 所在階 1階/5階建 土地権利所有権の物件です。鉄筋コンクリート造、1階住戸、南(南東・南西)バルコニー、リフォーム済みの物件です。 この物件にお問い合わせ
マンション NEW ディアナコート小石川播磨坂レジデンス 画像枚数6枚 価格 24,100万円 所在地 東京都文京区小石川5丁目 交通 東京メトロ丸ノ内線 「茗荷谷」駅 徒歩8分 都営三田線 「白山」駅 徒歩15分 専有面積 71m² (21.47坪) 壁芯 築年月 2025年11月 間取り 1LDK+納戸(S) 所在階 4階/6階建 駅徒歩10分以内、土地権利所有権の物件です。築浅、鉄筋コンクリート造、即入居可、2階以上、南(南東・南西)バルコニー、リフォーム済みの物件です。 この物件にお問い合わせ
マンション NEW プラウドタワー名古屋丸の内 画像枚数6枚 価格 7,630万円 所在地 愛知県名古屋市中区錦1丁目 交通 名古屋市東山線 「伏見」駅 徒歩4分 名古屋市鶴舞線 「伏見」駅 徒歩4分 名古屋市桜通線 「丸の内」駅 徒歩4分 専有面積 74.93m² (22.66坪) 壁芯 築年月 2020年2月 間取り 3LDK 所在階 15階/22階建 駅徒歩5分以内、土地権利所有権の物件です。鉄筋コンクリート造、タワー型(階数が20階建以上)、即入居可、10階以上、大規模マンション(100戸以上)、南(南東・南西)バルコニーの物件です。 この物件にお問い合わせ
マンション NEW グーディッシュ船堀 画像枚数6枚 価格 4,280万円 所在地 東京都江戸川区松江3丁目 交通 都営新宿線 「船堀」駅 バス7分 「東小松川二丁目」バス停下車 徒歩2分 東京メトロ東西線 「葛西」駅 バス17分 「東小松川二丁目」バス停下車 徒歩2分 総武本線 「新小岩」駅 バス14分 「東小松川二丁目」バス停下車 徒歩2分 専有面積 70.89m² (21.44坪) 壁芯 築年月 2005年1月 間取り 2LDK+納戸(S) 所在階 3階/12階建 土地権利所有権の物件です。鉄骨鉄筋コンクリート造、2階以上、南(南東・南西)バルコニーの物件です。 この物件にお問い合わせ
マンション NEW ドムール新小岩プレミアムレジデンス 画像枚数6枚 価格 4,480万円 所在地 東京都葛飾区奥戸4丁目 交通 総武線 「小岩」駅 徒歩17分 総武本線 「新小岩」駅 徒歩25分 専有面積 63.72m² (19.27坪) 壁芯 築年月 2015年6月 間取り 2LDK+納戸(S) 所在階 6階/12階建 土地権利所有権の物件です。鉄筋コンクリート造、2階以上、南(南東・南西)バルコニーの物件です。 この物件にお問い合わせ
マンション NEW サンビルダー本山 画像枚数6枚 価格 2,680万円 所在地 兵庫県神戸市東灘区田中町4丁目 交通 東海道本線 「摂津本山」駅 徒歩12分 東海道本線 「住吉」駅 徒歩13分 阪急電鉄神戸線 「岡本」駅 徒歩15分 専有面積 61.6m² (18.63坪) 壁芯 築年月 1986年6月 間取り 2LDK 所在階 8階/8階建 土地権利所有権の物件です。鉄筋コンクリート造、最上階、2階以上、南(南東・南西)バルコニーの物件です。 この物件にお問い合わせ
マンション NEW ローレルタワー梅田 画像枚数6枚 価格 7,990万円 所在地 大阪府大阪市北区万歳町 交通 大阪メトロ谷町線 「中崎町」駅 徒歩2分 大阪メトロ堺筋線 「天神橋筋六丁目」駅 徒歩9分 阪急電鉄千里線 「天神橋筋六丁目」駅 徒歩9分 専有面積 52.04m² (15.74坪) 壁芯 築年月 2008年6月 間取り 1LDK 所在階 24階/38階建 駅徒歩5分以内、土地権利所有権の物件です。鉄筋コンクリート造、タワー型(階数が20階建以上)、10階以上、大規模マンション(100戸以上)、南(南東・南西)バルコニーの物件です。 この物件にお問い合わせ
マンション NEW 大島スカイハイツ 画像枚数6枚 価格 4,980万円 所在地 東京都江東区東砂1丁目 交通 都営新宿線 「大島」駅 徒歩12分 都営新宿線 「東大島」駅 徒歩16分 専有面積 78.6m² (23.77坪) 壁芯 築年月 1979年3月 間取り 3LDK 所在階 5階/11階建 土地権利所有権の物件です。鉄骨鉄筋コンクリート造、2階以上、大規模マンション(100戸以上)、南(南東・南西)バルコニーの物件です。 この物件にお問い合わせ
マンション NEW ウェルフェアグリーン福栄 画像枚数6枚 価格 2,480万円 所在地 千葉県市川市福栄1丁目 交通 東京メトロ東西線 「南行徳」駅 徒歩8分 東京メトロ東西線 「行徳」駅 徒歩12分 専有面積 60.34m² (18.25坪) 壁芯 築年月 1978年1月 間取り 2LDK 所在階 2階/5階建 駅徒歩10分以内、土地権利所有権の物件です。ペット可(細則有)、鉄筋コンクリート造、2階以上、南(南東・南西)バルコニーの物件です。 この物件にお問い合わせ
マンション NEW ユニハイム中之島堂島川タワーレジデンス 画像枚数6枚 価格 11,280万円 所在地 大阪府大阪市福島区福島3丁目 交通 京阪電鉄中之島線 「中之島」駅 徒歩4分 阪神電鉄本線 「福島」駅 徒歩7分 JR東西線 「新福島」駅 徒歩7分 専有面積 90.24m² (27.29坪) 壁芯 築年月 2016年2月 間取り 2LDK 所在階 14階/19階建 駅徒歩5分以内、土地権利所有権の物件です。駐車場空有、鉄筋コンクリート造、10階以上、南(南東・南西)バルコニーの物件です。 この物件にお問い合わせ
マンション NEW グリーンカゴマチ 画像枚数6枚 価格 5,680万円 所在地 東京都文京区本駒込6丁目 交通 都営三田線 「千石」駅 徒歩5分 東京メトロ南北線 「駒込」駅 徒歩9分 山手線 「巣鴨」駅 徒歩10分 専有面積 42.59m² (12.88坪) 築年月 1989年7月 間取り 2DK 所在階 3階/5階建 駅徒歩5分以内、土地権利所有権の物件です。鉄筋コンクリート造、2階以上、南(南東・南西)バルコニーの物件です。 この物件にお問い合わせ
マンション NEW グランスイート千種タワー 画像枚数6枚 価格 6,780万円 所在地 愛知県名古屋市千種区内山1丁目 交通 名古屋市桜通線 「車道」駅 徒歩5分 名古屋市東山線 「千種」駅 徒歩6分 中央本線 「千種」駅 徒歩7分 専有面積 91.14m² (27.56坪) 壁芯 築年月 2010年1月 間取り 3LDK 所在階 24階/30階建 駅徒歩5分以内、土地権利所有権の物件です。駐車場空有、鉄筋コンクリート造、タワー型(階数が20階建以上)、10階以上、大規模マンション(100戸以上)、南(南東・南西)バルコニーの物件です。 この物件にお問い合わせ
マンション NEW リベール布施三ノ瀬公園 画像枚数6枚 価格 4,480万円 所在地 大阪府東大阪市足代南1丁目 交通 近鉄難波・奈良線 「布施」駅 徒歩7分 大阪モノレール本線 「少路」駅 徒歩11分 おおさか東線 「JR俊徳道」駅 徒歩13分 専有面積 66.78m² (20.2坪) 壁芯 築年月 2021年11月 間取り 3LDK 所在階 9階/14階建 駅徒歩10分以内、土地権利所有権の物件です。築浅、鉄筋コンクリート造、2階以上、南(南東・南西)バルコニーの物件です。 この物件にお問い合わせ
マンション NEW アクロシティタワーズ 画像枚数6枚 価格 12,980万円 所在地 東京都荒川区南千住6丁目 交通 常磐線 「南千住」駅 徒歩16分 東京メトロ千代田線 「町屋」駅 徒歩14分 都電荒川線 「荒川区役所前」駅 徒歩10分 専有面積 156.63m² (47.38坪) 壁芯 築年月 1992年10月 間取り 4LDK 所在階 25階/32階建 駅徒歩10分以内、土地権利所有権の物件です。駐車場空有、鉄筋コンクリート造、タワー型(階数が20階建以上)、専有面積100m2以上、4LDK以上、10階以上、大規模マンション(100戸以上)、南(南東・南西)バルコニーの物件です。 この物件にお問い合わせ
マンション NEW 海老名ザ・レジデンス 画像枚数6枚 価格 6,199万円 所在地 神奈川県海老名市泉2丁目 交通 小田急電鉄小田原線 「海老名」駅 徒歩11分 相模鉄道本線 「海老名」駅 徒歩11分 相模線 「海老名」駅 徒歩9分 専有面積 70.53m² (21.33坪) 壁芯 築年月 2018年1月 間取り 3LDK 所在階 12階/15階建 駅徒歩10分以内、土地権利所有権の物件です。鉄筋コンクリート造、10階以上、大規模マンション(100戸以上)、南(南東・南西)バルコニーの物件です。 この物件にお問い合わせ
マンション NEW ライオンズマンション天神橋筋六丁目 画像枚数6枚 価格 5,498万円 所在地 大阪府大阪市北区浪花町 交通 大阪メトロ谷町線 「天神橋筋六丁目」駅 徒歩3分 大阪メトロ堺筋線 「天神橋筋六丁目」駅 徒歩3分 阪急電鉄千里線 「天神橋筋六丁目」駅 徒歩3分 専有面積 63.6m² (19.23坪) 壁芯 築年月 2000年10月 間取り 2LDK+納戸(S) 所在階 3階/15階建 駅徒歩5分以内、土地権利所有権の物件です。鉄骨鉄筋コンクリート造、即入居可、2階以上、南(南東・南西)バルコニーの物件です。 この物件にお問い合わせ
マンション NEW ダイアパレスグランデージ湘南平塚 画像枚数6枚 価格 3,180万円 所在地 神奈川県平塚市高浜台 交通 東海道本線 「平塚」駅 徒歩19分 専有面積 86.39m² (26.13坪) 壁芯 築年月 2003年3月 間取り 4LDK 所在階 2階/11階建 土地権利所有権の物件です。鉄筋コンクリート造、4LDK以上、2階以上、南(南東・南西)バルコニーの物件です。 この物件にお問い合わせ
マンション NEW ルネヒューマンズガーデン鶴見 画像枚数6枚 価格 3,850万円 所在地 大阪府大阪市鶴見区今津南2丁目 交通 片町線 「放出」駅 徒歩9分 おおさか東線 「放出」駅 徒歩9分 片町線 「徳庵」駅 徒歩12分 専有面積 69.88m² (21.13坪) 壁芯 築年月 2000年11月 間取り 2LDK 所在階 13階/14階建 駅徒歩10分以内、土地権利所有権の物件です。鉄骨鉄筋コンクリート造、10階以上、大規模マンション(100戸以上)、南(南東・南西)バルコニーの物件です。 この物件にお問い合わせ
マンション NEW コロンブスシティ 画像枚数6枚 価格 3,780万円 所在地 千葉県千葉市美浜区浜田1丁目 交通 京葉線 「海浜幕張」駅 徒歩22分 総武線 「幕張本郷」駅 徒歩24分 総武線 「幕張本郷」駅 バス9分 「コロンブスシティ」バス停下車 徒歩1分 専有面積 80.34m² (24.3坪) 壁芯 築年月 2008年1月 間取り 3LDK 所在階 8階/14階建 土地権利所有権の物件です。駐車場空有、鉄筋コンクリート造、2階以上、南(南東・南西)バルコニーの物件です。 この物件にお問い合わせ
マンション NEW ファミリアーレ平安通 画像枚数6枚 価格 3,980万円 所在地 愛知県名古屋市北区平安2丁目 交通 名古屋市名城線 「平安通」駅 徒歩5分 名古屋市名城線 「大曽根」駅 徒歩9分 名古屋市上飯田線 「上飯田」駅 徒歩14分 専有面積 65.4m² (19.78坪) 壁芯 築年月 2022年1月 間取り 3LDK 所在階 1階/10階建 駅徒歩5分以内、土地権利所有権の物件です。築浅、鉄筋コンクリート造、1階住戸、南(南東・南西)バルコニーの物件です。 この物件にお問い合わせ
マンション NEW 桜宮リバーシティコープ21 画像枚数6枚 価格 5,780万円 所在地 大阪府大阪市都島区中野町5丁目 交通 大阪メトロ谷町線 「都島」駅 徒歩5分 大阪環状線 「桜ノ宮」駅 徒歩7分 大阪メトロ堺筋線 「天神橋筋六丁目」駅 徒歩12分 専有面積 102.94m² (31.13坪) 壁芯 築年月 1990年3月 間取り 4LDK 所在階 7階/15階建 駅徒歩5分以内、土地権利所有権の物件です。鉄骨鉄筋コンクリート造、専有面積100m2以上、4LDK以上、2階以上、南(南東・南西)バルコニーの物件です。 この物件にお問い合わせ
マンション NEW シスナブ池袋本町 画像枚数6枚 価格 9,280万円 所在地 東京都豊島区池袋本町4丁目 交通 埼京線 「板橋」駅 徒歩7分 都営三田線 「新板橋」駅 徒歩8分 東武鉄道東上線 「下板橋」駅 徒歩6分 専有面積 73.99m² (22.38坪) 壁芯 築年月 1997年3月 間取り 2LDK 所在階 4階/19階建 駅徒歩10分以内、土地権利所有権の物件です。鉄骨鉄筋コンクリート造、2階以上、大規模マンション(100戸以上)、南(南東・南西)バルコニーの物件です。 この物件にお問い合わせ
マンション NEW サンクタス綾瀬ラクススクエア 画像枚数6枚 価格 6,480万円 所在地 東京都足立区綾瀬2丁目 交通 千代田・常磐緩行線 「綾瀬」駅 徒歩3分 専有面積 63.3m² (19.14坪) 壁芯 築年月 2005年9月 間取り 3LDK 所在階 7階/13階建 駅徒歩5分以内、土地権利所有権の物件です。鉄筋コンクリート造、2階以上、南(南東・南西)バルコニーの物件です。 この物件にお問い合わせ
マンション NEW ライオンズガーデンシティ両国 画像枚数6枚 価格 7,980万円 所在地 東京都墨田区横網2丁目 交通 都営大江戸線 「両国」駅 徒歩4分 総武線 「両国」駅 徒歩10分 都営浅草線 「蔵前」駅 徒歩10分 専有面積 60.77m² (18.38坪) 壁芯 築年月 1998年11月 間取り 1LDK+納戸(S) 所在階 9階/14階建 駅徒歩5分以内、土地権利所有権の物件です。鉄骨鉄筋コンクリート造、2階以上、大規模マンション(100戸以上)、南(南東・南西)バルコニーの物件です。 この物件にお問い合わせ
マンション NEW ライオンズステーションプラザ溝の口セントラルアベニュー 画像枚数6枚 価格 7,280万円 所在地 神奈川県川崎市高津区溝口1丁目 交通 東急田園都市線 「溝の口」駅 徒歩4分 東急大井町線 「溝の口」駅 徒歩4分 南武線 「武蔵溝ノ口」駅 徒歩4分 専有面積 65.07m² (19.68坪) 壁芯 築年月 2004年10月 間取り 2LDK 所在階 5階/14階建 駅徒歩5分以内、土地権利所有権の物件です。鉄筋コンクリート造、2階以上、南(南東・南西)バルコニーの物件です。 この物件にお問い合わせ
マンション NEW ライオンズマンション荻窪グランフォート 画像枚数6枚 価格 12,500万円 所在地 東京都杉並区上荻2丁目 交通 中央本線 「荻窪」駅 徒歩12分 東京メトロ丸ノ内線 「荻窪」駅 徒歩12分 総武線 「荻窪」駅 徒歩12分 専有面積 120.2m² (36.36坪) 壁芯 築年月 2001年5月 間取り 3LDK 所在階 3階/4階建 低層住居専用地域、土地権利所有権の物件です。鉄筋コンクリート造、専有面積100m2以上、2階以上、南(南東・南西)バルコニーの物件です。 この物件にお問い合わせ
マンション NEW ロイヤルマンション新栄ヴァリエ 画像枚数6枚 価格 3,700万円 所在地 愛知県名古屋市中区新栄2丁目 交通 名古屋市東山線 「新栄町」駅 徒歩10分 専有面積 85.85m² (25.96坪) 壁芯 築年月 2005年11月 間取り 4LDK 所在階 11階/14階建 駅徒歩10分以内、土地権利所有権の物件です。鉄筋コンクリート造、4LDK以上、10階以上、南(南東・南西)バルコニーの物件です。 この物件にお問い合わせ
マンション NEW サンクタス綾瀬ラクススクエア 画像枚数6枚 価格 8,280万円 所在地 東京都足立区綾瀬2丁目 交通 千代田・常磐緩行線 「綾瀬」駅 徒歩3分 専有面積 83.78m² (25.34坪) 壁芯 築年月 2005年9月 間取り 3LDK 所在階 8階/13階建 駅徒歩5分以内、土地権利所有権の物件です。鉄筋コンクリート造、2階以上、南(南東・南西)バルコニーの物件です。 この物件にお問い合わせ
マンション NEW ライオンズヒルズ朝霞台 画像枚数6枚 価格 3,280万円 所在地 埼玉県朝霞市泉水3丁目 交通 東武鉄道東上線 「朝霞台」駅 徒歩19分 武蔵野線 「北朝霞」駅 徒歩19分 専有面積 82.21m² (24.86坪) 壁芯 築年月 2001年9月 間取り 3LDK 所在階 7階/9階建 土地権利所有権の物件です。鉄筋コンクリート造、2階以上、大規模マンション(100戸以上)、南(南東・南西)バルコニーの物件です。 この物件にお問い合わせ
マンション NEW メイゾン仲池上 画像枚数6枚 価格 5,380万円 所在地 東京都大田区仲池上2丁目 交通 都営浅草線 「西馬込」駅 徒歩9分 東急池上線 「池上」駅 バス12分 「根方」バス停下車 徒歩2分 専有面積 61.63m² (18.64坪) 壁芯 築年月 1984年1月 間取り 2LDK 所在階 5階/6階建 駅徒歩10分以内、土地権利所有権の物件です。鉄筋コンクリート造、2階以上、南(南東・南西)バルコニーの物件です。 この物件にお問い合わせ