2階以上の部屋のマンション特集の中古マンション一覧(6ページ)
2階以上のマンションの部屋を探す!小さな子供がいるご家庭や日中家で過ごすことが多い主婦には防犯やプライバシーなどが気になります。セキュリティ面を考慮した住み心地の良い2階以上の部屋はいかがですか。
-
-
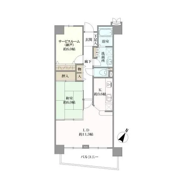
価格 3,980万円 所在地 東京都八王子市南大沢1丁目 交通 京王電鉄相模原線 「南大沢」駅 徒歩10分 専有面積 67.83m² (20.51坪) 壁芯 築年月 1995年8月 間取り 3LDK
所在階 7階/8階建 ◎8階建7階部分、南東向きにつき日当り良好 ◎京王相模原線「南大沢」駅 徒歩10分 ◎内装リノベーション(2025年8月22日完了) ・システムキッチン(食洗機・浄水器内蔵水栓・タッチレス水栓) ・ユニットバス(換気乾燥暖房機・追焚機能あり) ・トイレ(ウォシュレット一体型トイレ) ・洗面室、床、クロス、照明器具 等 【Life Information】 ・イトーヨーカドー南大沢店 約950m ・TOHOシネマズ南大沢 約700m ・別所やまざくら公園 約300m ・ローソン・スリーエフ南大沢店 約300m
-
-
-
価格 3,480万円 所在地 東京都多摩市諏訪4丁目 交通 京王電鉄相模原線 「京王永山」駅 徒歩13分 小田急電鉄多摩線 「小田急永山」駅 徒歩13分 専有面積 62m² (18.75坪) 壁芯 築年月 1996年6月 間取り 3LDK
所在階 2階/7階建 ◎2025年10月10日内装リフォーム完了 ・システムキッチン(食洗機付)、ユニットバス(換気乾燥暖房機付き・追焚機能付)・洗面化粧台・洗濯パン・温水洗浄便座一体型トイレ・フローリング(LDK・洋室)・ストーンタイル(玄関・洗面・トイレ) 他 ◎Life Informathion ・多摩市立北諏訪小学校 約650m ・多摩市立諏訪中学校 約900m ・クリエイトエス・ディー多摩馬引沢店 約300m ・ファミリーマート多摩連光寺店 約300m ・諏訪北公園 約350m
-
価格 5,880万円 所在地 東京都国分寺市泉町2丁目 交通 中央本線 「西国分寺」駅 徒歩6分 武蔵野線 「西国分寺」駅 徒歩6分 専有面積 63.69m² (19.26坪) 壁芯 築年月 2000年3月 間取り 2LDK
所在階 10階/14階建 リフォーム済(2025年7月/キッチン、浴室、洗面室 等) ◎2路線利用可 ・JR中央線、JR武蔵野線「西国分寺」駅 徒歩6分 ◎14階建10階部分 ◎南向きにつき日当り・眺望良好 ◎内装リフォーム2025年7月3日完了 ・システムキッチン(食洗機付)、ユニットバス(換気乾燥暖房機・追焚機能付)、洗面化粧台、洗濯パン、ウォシュレット一体型トイレ、フローリング(LDK・洋室)、ストーンタイル(玄関・洗面・トイレ)、クロス(全室)、エアコン1基設置 他
-
-
-
-
-
-
-
-
-
-
-
-
-
-
-
-
-
-
-
-
-
-
-
-

































































































































