100戸以上の大規模マンション特集の中古マンション一覧(3ページ)
充実な設備が魅力の100戸以上の大規模マンションを探す!多くの人が暮らす大規模マンションは住環境を求めるファミリー層にも人気。共用施設なども充実していることが多い大規模マンションで快適な暮らしを!
-
-
-
価格 29,500万円 所在地 東京都港区高輪4丁目 交通 山手線 「品川」駅 徒歩5分 東海道本線 「品川」駅 徒歩5分 京浜急行電鉄本線 「品川」駅 徒歩5分 専有面積 121.17m² (36.65坪) 壁芯 築年月 1980年10月 間取り 3LDK
所在階 6階/14階建 ●リビングと各洋室にエアコンを完備 ●各所に間接照明を配置 ●LDK約19帖&各洋室6帖超の3LDK ●洋室の引き戸を開放すると25帖超の広々LDKに ●広々とした調理スペースが魅力のL字型キッチン ●保温浴槽など機能的な設備が整う大型1620サイズのバスルーム ●室内物干しや暖房機を完備したランドリールームを新設 ●ペットは2匹まで飼育可(細則あり)
-
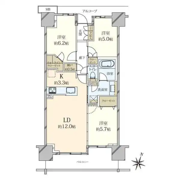
価格 5,880万円 所在地 東京都国分寺市泉町2丁目 交通 中央本線 「西国分寺」駅 徒歩6分 武蔵野線 「西国分寺」駅 徒歩6分 専有面積 63.69m² (19.26坪) 壁芯 築年月 2000年3月 間取り 2LDK
所在階 10階/14階建 リフォーム済(2025年7月/キッチン、浴室、洗面室 等) ◎2路線利用可 ・JR中央線、JR武蔵野線「西国分寺」駅 徒歩6分 ◎14階建10階部分 ◎南向きにつき日当り・眺望良好 ◎内装リフォーム2025年7月3日完了 ・システムキッチン(食洗機付)、ユニットバス(換気乾燥暖房機・追焚機能付)、洗面化粧台、洗濯パン、ウォシュレット一体型トイレ、フローリング(LDK・洋室)、ストーンタイル(玄関・洗面・トイレ)、クロス(全室)、エアコン1基設置 他
-
-
-
-
-
-
-
-
-
-
-
-
-
-
-
-
-
-
-
-
-
-
-
-
-
-
最近見た物件
-
- シャトレー渋谷
-
15,300万円
- 2LDK/ 102.77m²
- 山手線 「渋谷」駅 徒歩11分










































































































































