3LDK以上のマンション特集の中古マンション一覧(4ページ)
部屋数にこだわってマンションをお探しの方のための3LDK(3K・3DK含む)以上のマンション特集。家族みんなで住むにはやっぱり3部屋以上は欲しい!子育て世代に快適な間取りはいかがですか?
-
-
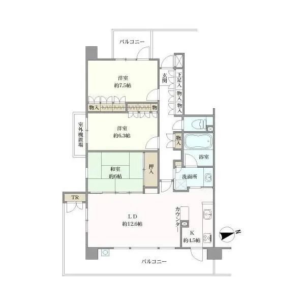
価格 3,980万円 所在地 東京都八王子市南大沢1丁目 交通 京王電鉄相模原線 「南大沢」駅 徒歩10分 専有面積 67.83m² (20.51坪) 壁芯 築年月 1995年8月 間取り 3LDK
所在階 7階/8階建 ◎8階建7階部分、南東向きにつき日当り良好 ◎京王相模原線「南大沢」駅 徒歩10分 ◎内装リノベーション(2025年8月22日完了) ・システムキッチン(食洗機・浄水器内蔵水栓・タッチレス水栓) ・ユニットバス(換気乾燥暖房機・追焚機能あり) ・トイレ(ウォシュレット一体型トイレ) ・洗面室、床、クロス、照明器具 等 【Life Information】 ・イトーヨーカドー南大沢店 約950m ・TOHOシネマズ南大沢 約700m ・別所やまざくら公園 約300m ・ローソン・スリーエフ南大沢店 約300m
-
-
-
-
-
-
-
-
-
-
-
-
-
-
-
-
-
-
-
-
-
-
-
-
-
-
-
-
最近見た物件
-
- サイオン桜坂 SAION SAKURAZAKA
-
88,000万円
- 2LDK/ 142.85m²
- 東京メトロ南北線 「溜池山王」駅 徒歩3分
















































































































































