横浜線相模原駅の中古マンション物件一覧
横浜線相模原駅の中古マンション購入は、三菱UFJ不動産販売の住まい1にお任せください。地域や沿線などご希望の条件から物件をお探しいただけます。物件の見学(内見)のお問い合わせもお気軽にどうぞ。
-
| 価格 |
4,820万円
|
| 所在地 |
神奈川県相模原市中央区相模原3丁目 |
| 交通 |
横浜線 「相模原」駅 徒歩5分
|
| 専有面積 |
70.33m²
(21.27坪)
壁芯
|
築年月 |
2019年10月 |
| 間取り |
3LDK |
所在階 |
8階/15階建 |
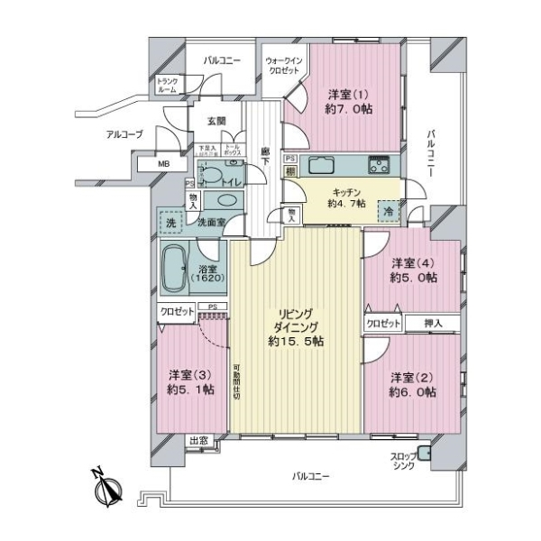
・地上15階建<8階部分>につき採光・眺望良好
・洋室(約4.5畳)の引き戸を収納すればLDと一体化した空間が広がります
・LD(約11.3畳)にTES温水式床暖房
・対面キッチン<ディスポーザー・食洗器付>
・2面採光の洋室(約4.5畳)
・洋室(約5畳・約6畳)に収納力のあるWIC
・玄関周りをスッキリと収納できるSIC
〜Life Information〜
・イオンフードスタイル相模原店 約150m(徒歩2分)
・夢大通り公園 約150m(徒歩2分)
・ローソン相模夢大通り店 約180m(徒歩3分)
・相模原市立清新小学校 約970m(徒歩13分)
・相模原市立清...
-
| 価格 |
5,280万円
|
| 所在地 |
神奈川県相模原市中央区相模原3丁目 |
| 交通 |
横浜線 「相模原」駅 徒歩5分
|
| 専有面積 |
68.43m²
(20.7坪)
壁芯
|
築年月 |
2020年3月 |
| 間取り |
3LDK |
所在階 |
14階/15階建 |
駅徒歩5分以内、土地権利所有権の物件です。鉄筋コンクリート造、10階以上、南(南東・南西)バルコニーの物件です。
-
| 価格 |
4,580万円
|
| 所在地 |
神奈川県相模原市中央区相模原5丁目 |
| 交通 |
横浜線 「相模原」駅 徒歩6分
|
| 専有面積 |
83.19m²
(25.16坪)
壁芯
|
築年月 |
2014年1月 |
| 間取り |
3LDK+納戸(S) |
所在階 |
7階/14階建 |
駅徒歩10分以内、土地権利所有権の物件です。鉄筋コンクリート造、2階以上の物件です。
-
| 価格 |
3,880万円
|
| 所在地 |
神奈川県相模原市中央区相模原2丁目 |
| 交通 |
横浜線 「相模原」駅 徒歩3分
|
| 専有面積 |
67.58m²
(20.44坪)
壁芯
|
築年月 |
2012年6月 |
| 間取り |
3LDK |
所在階 |
14階/14階建 |
駅徒歩5分以内、土地権利所有権の物件です。鉄筋コンクリート造、最上階、10階以上、南(南東・南西)バルコニーの物件です。
-
| 価格 |
2,990万円
|
| 所在地 |
神奈川県相模原市中央区清新2丁目 |
| 交通 |
横浜線 「相模原」駅 徒歩11分
相模線 「南橋本」駅 徒歩14分
|
| 専有面積 |
72.18m²
(21.83坪)
壁芯
|
築年月 |
2007年3月 |
| 間取り |
2LDK+納戸(S) |
所在階 |
4階/8階建 |
土地権利所有権の物件です。鉄筋コンクリート造、2階以上の物件です。
-
| 価格 |
2,480万円
|
| 所在地 |
神奈川県相模原市中央区相模原4丁目 |
| 交通 |
横浜線 「相模原」駅 徒歩5分
|
| 専有面積 |
61.04m²
(18.46坪)
壁芯
|
築年月 |
1986年2月 |
| 間取り |
2LDK+納戸(S) |
所在階 |
12階/13階建 |
駅徒歩5分以内、土地権利所有権の物件です。鉄骨鉄筋コンクリート造、10階以上、南(南東・南西)バルコニーの物件です。
-
| 価格 |
3,280万円
|
| 所在地 |
神奈川県相模原市中央区清新2丁目 |
| 交通 |
横浜線 「相模原」駅 徒歩11分
相模線 「南橋本」駅 徒歩14分
|
| 専有面積 |
73.57m²
(22.25坪)
壁芯
|
築年月 |
2007年3月 |
| 間取り |
3LDK |
所在階 |
8階/8階建 |
土地権利所有権の物件です。鉄筋コンクリート造、最上階、2階以上の物件です。