目黒区の中古マンション物件一覧
目黒区の中古マンション購入は、三菱UFJ不動産販売の住まい1にお任せください。地域や沿線などご希望の条件から物件をお探しいただけます。物件の見学(内見)のお問い合わせもお気軽にどうぞ。
-
| 価格 |
15,200万円
|
| 所在地 |
東京都目黒区東が丘2丁目 |
| 交通 |
東急田園都市線 「駒沢大学」駅 徒歩6分
|
| 専有面積 |
86.82m²
(26.26坪)
壁芯
|
築年月 |
1997年1月 |
| 間取り |
3LDK |
所在階 |
3階/3階建 |
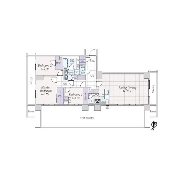
リフォーム済(2025年11月/キッチン・浴室・トイレ・壁・床・全室)
◇最上階3階部分◇3方角住戸◇全居室約6畳以上◇北向きルーフバルコニー29.32平米(約8.86坪)◇南向きバルコニーに面したLD(約12.2畳)◇洋室(約8.2畳・約6.6畳)に収納力のあるウォークインクローゼット◇廊下部分にシューズインクローゼット◇洗面室に3連収納棚◇浴室に窓有◇LD部分に床暖房あり
-
| 価格 |
49,000万円
|
| 所在地 |
東京都目黒区東山1丁目 |
| 交通 |
東急東横線 「中目黒」駅 徒歩8分
東京メトロ日比谷線 「中目黒」駅 徒歩8分
東急田園都市線 「池尻大橋」駅 徒歩15分
|
| 専有面積 |
151.78m²
(45.91坪)
壁芯
|
築年月 |
2019年6月 |
| 間取り |
3LDK |
所在階 |
2階/4階建 |
駅徒歩10分以内、低層住居専用地域、土地権利所有権の物件です。鉄筋コンクリート造、専有面積100m2以上、2階以上の物件です。
-
| 価格 |
2,860万円
|
| 所在地 |
東京都目黒区目黒本町2丁目 |
| 交通 |
東急東横線 「学芸大学」駅 徒歩14分
山手線 「目黒」駅 バス23分 「七中前」バス停下車 徒歩2分
東急目黒線 「西小山」駅 徒歩18分
|
| 専有面積 |
36.5m²
(11.04坪)
壁芯
|
築年月 |
1983年9月 |
| 間取り |
1LDK |
所在階 |
4階/4階建 |
土地権利所有権の物件です。鉄筋コンクリート造、最上階、2階以上、南(南東・南西)バルコニーの物件です。
-
| 価格 |
5,480万円
|
| 所在地 |
東京都目黒区五本木3丁目 |
| 交通 |
東急東横線 「学芸大学」駅 徒歩5分
東急東横線 「祐天寺」駅 徒歩14分
東急東横線 「都立大学」駅 徒歩22分
|
| 専有面積 |
53.64m²
(16.22坪)
壁芯
|
築年月 |
1971年11月 |
| 間取り |
2LDK |
所在階 |
3階/11階建 |
駅徒歩5分以内、土地権利所有権の物件です。鉄骨鉄筋コンクリート造、2階以上、南(南東・南西)バルコニーの物件です。
-
| 価格 |
7,499万円
|
| 所在地 |
東京都目黒区碑文谷4丁目 |
| 交通 |
東急東横線 「学芸大学」駅 徒歩15分
東急東横線 「都立大学」駅 徒歩12分
東急大井町線 「大岡山」駅 徒歩19分
|
| 専有面積 |
55.01m²
(16.64坪)
壁芯
|
築年月 |
1999年3月 |
| 間取り |
1LDK |
所在階 |
1階/5階建 |
土地権利所有権の物件です。駐車場空有、鉄筋コンクリート造、1階住戸、南(南東・南西)バルコニーの物件です。
-
| 価格 |
18,500万円
|
| 所在地 |
東京都目黒区上目黒2丁目 |
| 交通 |
東急東横線 「中目黒」駅 徒歩8分
東急東横線 「祐天寺」駅 徒歩10分
|
| 専有面積 |
66.82m²
(20.21坪)
壁芯
|
築年月 |
2005年1月 |
| 間取り |
3LDK |
所在階 |
2階/6階建 |
駅徒歩10分以内、土地権利所有権の物件です。鉄筋コンクリート造、2階以上、南(南東・南西)バルコニーの物件です。
-
| 価格 |
5,900万円
|
| 所在地 |
東京都目黒区駒場4丁目 |
| 交通 |
小田急電鉄小田原線 「東北沢」駅 徒歩8分
東京メトロ千代田線 「代々木上原」駅 徒歩10分
京王電鉄井の頭線 「駒場東大前」駅 徒歩11分
|
| 専有面積 |
59.14m²
(17.88坪)
壁芯
|
築年月 |
1981年10月 |
| 間取り |
3LDK |
所在階 |
6階/7階建 |
駅徒歩10分以内、土地権利所有権の物件です。鉄骨鉄筋コンクリート造、2階以上、南(南東・南西)バルコニーの物件です。
-
| 価格 |
15,480万円
|
| 所在地 |
東京都目黒区碑文谷1丁目 |
| 交通 |
東急東横線 「学芸大学」駅 徒歩16分
東急東横線 「都立大学」駅 徒歩15分
山手線 「目黒」駅 バス12分 「サレジオ教会」バス停下車 徒歩2分
|
| 専有面積 |
94.28m²
(28.51坪)
壁芯
|
築年月 |
1997年1月 |
| 間取り |
3LDK |
所在階 |
3階/5階建 |
土地権利所有権の物件です。駐車場空有、鉄筋コンクリート造、2階以上、南(南東・南西)バルコニーの物件です。
-
| 価格 |
9,780万円
|
| 所在地 |
東京都目黒区中目黒2丁目 |
| 交通 |
東急東横線 「中目黒」駅 徒歩10分
東京メトロ日比谷線 「中目黒」駅 徒歩10分
山手線 「恵比寿」駅 徒歩15分
|
| 専有面積 |
66.52m²
(20.12坪)
壁芯
|
築年月 |
1972年6月 |
| 間取り |
2LDK |
所在階 |
2階/8階建 |
駅徒歩10分以内、土地権利所有権の物件です。駐車場空有、鉄骨鉄筋コンクリート造、2階以上、南(南東・南西)バルコニー、リフォーム済みの物件です。
-
| 価格 |
26,800万円
|
| 所在地 |
東京都目黒区三田1丁目 |
| 交通 |
山手線 「恵比寿」駅 徒歩10分
山手線 「目黒」駅 徒歩14分
|
| 専有面積 |
70.14m²
(21.21坪)
壁芯
|
築年月 |
1994年7月 |
| 間取り |
1LDK |
所在階 |
6階/32階建 |
駅徒歩10分以内、土地権利所有権の物件です。鉄筋コンクリート造、タワー型(階数が20階建以上)、2階以上、大規模マンション(100戸以上)、南(南東・南西)バルコニーの物件です。
-
| 価格 |
17,480万円
|
| 所在地 |
東京都目黒区目黒本町2丁目 |
| 交通 |
東急東横線 「学芸大学」駅 徒歩11分
|
| 専有面積 |
84.03m²
(25.41坪)
壁芯
|
築年月 |
2001年5月 |
| 間取り |
4LDK |
所在階 |
4階/4階建 |
土地権利所有権の物件です。鉄筋コンクリート造、4LDK以上、最上階、2階以上、南(南東・南西)バルコニーの物件です。
-
| 価格 |
4,630万円
|
| 所在地 |
東京都目黒区中央町1丁目 |
| 交通 |
東急東横線 「学芸大学」駅 徒歩9分
東急目黒線 「武蔵小山」駅 徒歩18分
東急東横線 「祐天寺」駅 徒歩16分
|
| 専有面積 |
30.24m²
(9.14坪)
壁芯
|
築年月 |
2017年10月 |
| 間取り |
1K |
所在階 |
3階/5階建 |
駅徒歩10分以内、土地権利所有権の物件です。鉄筋コンクリート造、2階以上、南(南東・南西)バルコニーの物件です。
-
| 価格 |
13,280万円
|
| 所在地 |
東京都目黒区鷹番1丁目 |
| 交通 |
東急東横線 「学芸大学」駅 徒歩8分
|
| 専有面積 |
78.89m²
(23.86坪)
壁芯
|
築年月 |
2004年3月 |
| 間取り |
2LDK |
所在階 |
2階/6階建 |
駅徒歩10分以内、土地権利所有権の物件です。鉄筋コンクリート造、2階以上、南(南東・南西)バルコニーの物件です。
-
| 価格 |
13,500万円
|
| 所在地 |
東京都目黒区三田2丁目 |
| 交通 |
山手線 「目黒」駅 徒歩11分
山手線 「恵比寿」駅 徒歩10分
東京メトロ日比谷線 「恵比寿」駅 徒歩11分
|
| 専有面積 |
69.6m²
(21.05坪)
壁芯
|
築年月 |
1979年9月 |
| 間取り |
3LDK |
所在階 |
2階/11階建 |
駅徒歩10分以内、土地権利所有権の物件です。鉄骨鉄筋コンクリート造、2階以上、大規模マンション(100戸以上)、南(南東・南西)バルコニーの物件です。
-
| 価格 |
26,500万円
|
| 所在地 |
東京都目黒区大橋1丁目 |
| 交通 |
東急田園都市線 「池尻大橋」駅 徒歩5分
東急東横線 「中目黒」駅 徒歩16分
山手線 「渋谷」駅 徒歩19分
|
| 専有面積 |
77.56m²
(23.46坪)
壁芯
|
築年月 |
2013年1月 |
| 間取り |
2LDK |
所在階 |
27階/42階建 |
駅徒歩5分以内、土地権利所有権の物件です。鉄筋コンクリート造、タワー型(階数が20階建以上)、10階以上、大規模マンション(100戸以上)、南(南東・南西)バルコニーの物件です。
-
| 価格 |
16,980万円
|
| 所在地 |
東京都目黒区中目黒1丁目 |
| 交通 |
東急東横線 「中目黒」駅 徒歩8分
東急東横線 「代官山」駅 徒歩10分
山手線 「恵比寿」駅 徒歩11分
|
| 専有面積 |
61.94m²
(18.73坪)
壁芯
|
築年月 |
1999年9月 |
| 間取り |
2LDK |
所在階 |
6階/6階建 |
駅徒歩10分以内、土地権利所有権の物件です。駐車場空有、鉄筋コンクリート造、ルーフバルコニー付、即入居可、最上階、2階以上、リフォーム済みの物件です。
-
| 価格 |
8,380万円
|
| 所在地 |
東京都目黒区下目黒3丁目 |
| 交通 |
山手線 「目黒」駅 徒歩9分
東急目黒線 「不動前」駅 徒歩8分
|
| 専有面積 |
44.89m²
(13.57坪)
壁芯
|
築年月 |
2012年1月 |
| 間取り |
1LDK |
所在階 |
6階/11階建 |
駅徒歩10分以内、土地権利所有権の物件です。鉄筋コンクリート造、2階以上、南(南東・南西)バルコニーの物件です。
-
| 価格 |
15,980万円
|
| 所在地 |
東京都目黒区目黒1丁目 |
| 交通 |
山手線 「目黒」駅 徒歩5分
|
| 専有面積 |
56.91m²
(17.21坪)
壁芯
|
築年月 |
2019年8月 |
| 間取り |
2LDK |
所在階 |
1階/7階建 |
駅徒歩5分以内、土地権利所有権の物件です。鉄筋コンクリート造、1階住戸、南(南東・南西)バルコニーの物件です。
-
| 価格 |
21,990万円
|
| 所在地 |
東京都目黒区青葉台1丁目 |
| 交通 |
東京メトロ日比谷線 「中目黒」駅 徒歩6分
東急東横線 「代官山」駅 徒歩10分
|
| 専有面積 |
86.18m²
(26.06坪)
壁芯
|
築年月 |
1997年2月 |
| 間取り |
3LDK |
所在階 |
2階/9階建 |
駅徒歩10分以内、土地権利所有権の物件です。鉄骨鉄筋コンクリート造、ルーフバルコニー付、2階以上、南(南東・南西)バルコニーの物件です。
-
| 価格 |
16,500万円
|
| 所在地 |
東京都目黒区祐天寺2丁目 |
| 交通 |
東急東横線 「祐天寺」駅 徒歩2分
東急東横線 「学芸大学」駅 徒歩12分
|
| 専有面積 |
81.14m²
(24.54坪)
壁芯
|
築年月 |
1998年2月 |
| 間取り |
3LDK |
所在階 |
6階/9階建 |
駅徒歩5分以内、土地権利所有権の物件です。鉄骨鉄筋コンクリート造、2階以上の物件です。
-
| 価格 |
9,380万円
|
| 所在地 |
東京都目黒区東が丘1丁目 |
| 交通 |
東急田園都市線 「駒沢大学」駅 徒歩17分
東急東横線 「都立大学」駅 徒歩17分
山手線 「恵比寿」駅 バス20分 「東根小学校」バス停下車 徒歩1分
|
| 専有面積 |
56.52m²
(17.09坪)
壁芯
|
築年月 |
2016年12月 |
| 間取り |
1LDK |
所在階 |
2階/6階建 |
土地権利所有権の物件です。鉄筋コンクリート造、2階以上の物件です。
-
| 価格 |
15,980万円
|
| 所在地 |
東京都目黒区下目黒2丁目 |
| 交通 |
山手線 「目黒」駅 徒歩8分
東急目黒線 「不動前」駅 徒歩9分
東京メトロ南北線 「目黒」駅 徒歩8分
|
| 専有面積 |
66.6m²
(20.14坪)
壁芯
|
築年月 |
2018年10月 |
| 間取り |
2LDK |
所在階 |
9階/14階建 |
駅徒歩10分以内、土地権利所有権の物件です。鉄筋コンクリート造、2階以上、大規模マンション(100戸以上)、南(南東・南西)バルコニーの物件です。
-
| 価格 |
6,680万円
|
| 所在地 |
東京都目黒区下目黒4丁目 |
| 交通 |
山手線 「目黒」駅 徒歩15分
東京メトロ南北線 「目黒」駅 徒歩15分
東急目黒線 「不動前」駅 徒歩19分
|
| 専有面積 |
56.7m²
(17.15坪)
壁芯
|
築年月 |
1974年5月 |
| 間取り |
1LDK |
所在階 |
5階/12階建 |
土地権利所有権の物件です。鉄骨鉄筋コンクリート造、2階以上、南(南東・南西)バルコニーの物件です。
-
| 価格 |
24,980万円
|
| 所在地 |
東京都目黒区青葉台1丁目 |
| 交通 |
東急東横線 「代官山」駅 徒歩7分
東急東横線 「中目黒」駅 徒歩9分
東京メトロ日比谷線 「中目黒」駅 徒歩9分
|
| 専有面積 |
72.02m²
(21.78坪)
壁芯
|
築年月 |
2000年11月 |
| 間取り |
2LDK |
所在階 |
4階/4階建 |
駅徒歩10分以内、低層住居専用地域、土地権利所有権の物件です。鉄筋コンクリート造、最上階、2階以上の物件です。
-
| 価格 |
13,800万円
|
| 所在地 |
東京都目黒区下目黒5丁目 |
| 交通 |
山手線 「目黒」駅 徒歩18分
東急目黒線 「武蔵小山」駅 徒歩15分
山手線 「目黒」駅 バス8分 「元競馬場前」バス停下車 徒歩4分
|
| 専有面積 |
69.3m²
(20.96坪)
壁芯
|
築年月 |
2012年2月 |
| 間取り |
2LDK |
所在階 |
-1階/3階建 |
低層住居専用地域、土地権利所有権の物件です。鉄筋コンクリート造、低層マンション(3階建て以下)、南(南東・南西)バルコニーの物件です。
-
| 価格 |
4,980万円
|
| 所在地 |
東京都目黒区中目黒2丁目 |
| 交通 |
東急東横線 「中目黒」駅 徒歩9分
東京メトロ日比谷線 「中目黒」駅 徒歩9分
|
| 専有面積 |
41.99m²
(12.7坪)
壁芯
|
築年月 |
1977年9月 |
| 間取り |
1LDK |
所在階 |
1階/6階建 |
駅徒歩10分以内、土地権利所有権の物件です。鉄筋コンクリート造、1階住戸の物件です。
-
| 価格 |
12,380万円
|
| 所在地 |
東京都目黒区下目黒6丁目 |
| 交通 |
山手線 「目黒」駅 バス9分 「目黒消防署」バス停下車 徒歩4分
東急目黒線 「武蔵小山」駅 徒歩15分
|
| 専有面積 |
56.19m²
(16.99坪)
壁芯
|
築年月 |
2021年5月 |
| 間取り |
2LDK |
所在階 |
5階/5階建 |
低層住居専用地域、土地権利所有権の物件です。築浅、鉄筋コンクリート造、最上階、2階以上、大規模マンション(100戸以上)、南(南東・南西)バルコニーの物件です。
-
| 価格 |
7,880万円
|
| 所在地 |
東京都目黒区洗足2丁目 |
| 交通 |
東急目黒線 「洗足」駅 徒歩3分
|
| 専有面積 |
72.77m²
(22.01坪)
内法
|
築年月 |
1977年9月 |
| 間取り |
2K |
所在階 |
1階/4階建 |
駅徒歩5分以内、低層住居専用地域、土地権利所有権の物件です。鉄筋コンクリート造、1階住戸、南(南東・南西)バルコニーの物件です。
-
| 価格 |
23,800万円
|
| 所在地 |
東京都目黒区大橋1丁目 |
| 交通 |
東急田園都市線 「池尻大橋」駅 徒歩5分
東急東横線 「中目黒」駅 徒歩16分
山手線 「渋谷」駅 徒歩19分
|
| 専有面積 |
68.41m²
(20.69坪)
壁芯
|
築年月 |
2013年1月 |
| 間取り |
2LDK |
所在階 |
36階/42階建 |
駅徒歩5分以内、土地権利所有権の物件です。鉄筋コンクリート造、タワー型(階数が20階建以上)、10階以上、大規模マンション(100戸以上)の物件です。
-
| 価格 |
19,800万円
|
| 所在地 |
東京都目黒区中目黒4丁目 |
| 交通 |
東急東横線 「中目黒」駅 徒歩12分
東京メトロ日比谷線 「中目黒」駅 徒歩12分
|
| 専有面積 |
71.34m²
(21.58坪)
壁芯
|
築年月 |
2016年10月 |
| 間取り |
3LDK |
所在階 |
11階/15階建 |
土地権利所有権の物件です。鉄筋コンクリート造、10階以上、大規模マンション(100戸以上)、南(南東・南西)バルコニーの物件です。
最近見た物件
-
- ライオンズ墨田曳舟
-
-
-
3LDK/ 71.22m²
-
東武伊勢崎・大師線 「曳舟」駅 徒歩8分