東京都の駅徒歩15分以内の中古マンション物件一覧(47ページ)
東京都の駅徒歩15分以内の中古マンション購入は、三菱UFJ不動産販売の住まい1にお任せください。地域や沿線などご希望の条件から物件をお探しいただけます。物件の見学(内見)のお問い合わせもお気軽にどうぞ。
-
| 価格 |
3,590万円
|
| 所在地 |
東京都足立区谷在家3丁目 |
| 交通 |
日暮里舎人ライナー 「谷在家」駅 徒歩4分
|
| 専有面積 |
63.72m²
(19.27坪)
|
築年月 |
1998年7月 |
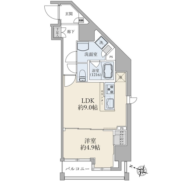
| 間取り |
2LDK+納戸(S) |
所在階 |
4階/6階建 |
駅徒歩5分以内、土地権利所有権の物件です。鉄筋コンクリート造、2階以上の物件です。
-
| 価格 |
3,490万円
|
| 所在地 |
東京都江東区大島7丁目 |
| 交通 |
都営新宿線 「東大島」駅 徒歩10分
|
| 専有面積 |
57.51m²
(17.39坪)
壁芯
|
築年月 |
1978年8月 |
| 間取り |
2LDK |
所在階 |
2階/5階建 |
駅徒歩10分以内、土地権利所有権の物件です。鉄筋コンクリート造、2階以上、南(南東・南西)バルコニーの物件です。
-
| 価格 |
4,980万円
|
| 所在地 |
東京都目黒区下目黒2丁目 |
| 交通 |
山手線 「目黒」駅 徒歩9分
|
| 専有面積 |
26.01m²
(7.86坪)
壁芯
|
築年月 |
2005年1月 |
| 間取り |
1K |
所在階 |
2階/14階建 |
駅徒歩10分以内、土地権利所有権の物件です。ペット可(細則有)、鉄骨鉄筋コンクリート造、2階以上、南(南東・南西)バルコニーの物件です。
-
| 価格 |
2,730万円
|
| 所在地 |
東京都港区赤坂9丁目 |
| 交通 |
東京メトロ千代田線 「乃木坂」駅 徒歩2分
都営大江戸線 「六本木」駅 徒歩5分
東京メトロ銀座線 「青山一丁目」駅 徒歩10分
|
| 専有面積 |
21.66m²
(6.55坪)
壁芯
|
築年月 |
1979年3月 |
| 間取り |
1K |
所在階 |
9階/10階建 |
駅徒歩5分以内、土地権利所有権の物件です。鉄骨鉄筋コンクリート造、2階以上、南(南東・南西)バルコニーの物件です。
-
| 価格 |
13,700万円
|
| 所在地 |
東京都文京区大塚5丁目 |
| 交通 |
東京メトロ丸ノ内線 「新大塚」駅 徒歩2分
東京メトロ有楽町線 「護国寺」駅 徒歩8分
|
| 専有面積 |
73.58m²
(22.25坪)
壁芯
|
築年月 |
1999年12月 |
| 間取り |
3LDK |
所在階 |
7階/14階建 |
駅徒歩5分以内、土地権利所有権の物件です。駐車場空有、鉄骨鉄筋コンクリート造、2階以上の物件です。
-
| 価格 |
4,480万円
|
| 所在地 |
東京都江戸川区新堀2丁目 |
| 交通 |
都営新宿線 「篠崎」駅 徒歩15分
|
| 専有面積 |
74.04m²
(22.39坪)
|
築年月 |
1997年3月 |
| 間取り |
3LDK |
所在階 |
2階/7階建 |
土地権利所有権の物件です。ペット可(細則有)、鉄筋コンクリート造、2階以上、南(南東・南西)バルコニーの物件です。
-
| 価格 |
14,000万円
|
| 所在地 |
東京都世田谷区若林1丁目 |
| 交通 |
東急田園都市線 「三軒茶屋」駅 徒歩11分
|
| 専有面積 |
56.99m²
(17.23坪)
壁芯
|
築年月 |
2023年9月 |
| 間取り |
1LDK |
所在階 |
1階/5階建 |
土地権利所有権の物件です。築浅、鉄筋コンクリート造、1階住戸の物件です。
-
| 価格 |
2,580万円
|
| 所在地 |
東京都杉並区西荻北3丁目 |
| 交通 |
総武線 「西荻窪」駅 徒歩5分
中央本線 「西荻窪」駅 徒歩5分
|
| 専有面積 |
36.36m²
(10.99坪)
壁芯
|
築年月 |
1970年12月 |
| 間取り |
2K |
所在階 |
2階/5階建 |
駅徒歩5分以内、土地権利所有権の物件です。鉄筋コンクリート造、2階以上の物件です。
-
| 価格 |
55,000万円
|
| 所在地 |
東京都渋谷区千駄ヶ谷4丁目 |
| 交通 |
東京メトロ副都心線 「北参道」駅 徒歩1分
総武線 「代々木」駅 徒歩5分
|
| 専有面積 |
97.14m²
(29.38坪)
壁芯
|
築年月 |
2023年6月 |
| 間取り |
2LDK |
所在階 |
5階/28階建 |
駅徒歩5分以内、土地権利所有権の物件です。築浅、鉄筋コンクリート造、タワー型(階数が20階建以上)、2階以上、大規模マンション(100戸以上)、南(南東・南西)バルコニーの物件です。
-
| 価格 |
10,980万円
|
| 所在地 |
東京都杉並区方南1丁目 |
| 交通 |
東京メトロ方南支線 「方南町」駅 徒歩7分
京王電鉄京王線 「笹塚」駅 徒歩16分
|
| 専有面積 |
69.43m²
(21坪)
壁芯
|
築年月 |
2021年2月 |
| 間取り |
3LDK |
所在階 |
2階/4階建 |
駅徒歩10分以内、低層住居専用地域、土地権利所有権の物件です。築浅、鉄筋コンクリート造、2階以上の物件です。
-
| 価格 |
2,980万円
|
| 所在地 |
東京都多摩市永山2丁目 |
| 交通 |
小田急電鉄多摩線 「小田急永山」駅 徒歩6分
京王電鉄相模原線 「京王永山」駅 徒歩7分
|
| 専有面積 |
66.17m²
(20.01坪)
壁芯
|
築年月 |
1977年3月 |
| 間取り |
2LDK |
所在階 |
2階/11階建 |
駅徒歩10分以内、土地権利所有権の物件です。鉄骨鉄筋コンクリート造、2階以上、南(南東・南西)バルコニーの物件です。
-
| 価格 |
12,800万円
|
| 所在地 |
東京都江東区有明1丁目 |
| 交通 |
ゆりかもめ 「有明テニスの森」駅 徒歩10分
|
| 専有面積 |
67.23m²
(20.33坪)
壁芯
|
築年月 |
2006年2月 |
| 間取り |
2LDK |
所在階 |
26階/27階建 |
駅徒歩10分以内、土地権利所有権の物件です。鉄筋コンクリート造、タワー型(階数が20階建以上)、10階以上、大規模マンション(100戸以上)の物件です。
-
| 価格 |
2,180万円
|
| 所在地 |
東京都北区滝野川7丁目 |
| 交通 |
埼京線 「板橋」駅 徒歩1分
都営三田線 「新板橋」駅 徒歩8分
|
| 専有面積 |
33.73m²
(10.2坪)
壁芯
|
築年月 |
1979年3月 |
| 間取り |
2DK |
所在階 |
3階/6階建 |
駅徒歩5分以内、土地権利所有権の物件です。鉄筋コンクリート造、2階以上の物件です。
-
| 価格 |
9,400万円
|
| 所在地 |
東京都江戸川区南小岩6丁目 |
| 交通 |
総武線 「小岩」駅 徒歩1分
|
| 専有面積 |
67.11m²
(20.3坪)
壁芯
|
築年月 |
2022年3月 |
| 間取り |
2LDK |
所在階 |
10階/22階建 |
駅徒歩5分以内、土地権利所有権の物件です。築浅、鉄筋コンクリート造、タワー型(階数が20階建以上)、10階以上、大規模マンション(100戸以上)の物件です。
-
| 価格 |
13,980万円
|
| 所在地 |
東京都杉並区和田2丁目 |
| 交通 |
東京メトロ丸ノ内線 「東高円寺」駅 徒歩12分
東京メトロ方南支線 「方南町」駅 徒歩12分
|
| 専有面積 |
85.55m²
(25.87坪)
|
築年月 |
2012年5月 |
| 間取り |
4LDK |
所在階 |
3階/5階建 |
低層住居専用地域、土地権利所有権の物件です。駐車場空有、鉄筋コンクリート造、ルーフバルコニー付、4LDK以上、2階以上、南(南東・南西)バルコニーの物件です。
-
| 価格 |
8,480万円
|
| 所在地 |
東京都目黒区平町1丁目 |
| 交通 |
東急東横線 「都立大学」駅 徒歩3分
|
| 専有面積 |
69.49m²
(21.02坪)
壁芯
|
築年月 |
1984年7月 |
| 間取り |
3LDK |
所在階 |
3階/3階建 |
駅徒歩5分以内、土地権利所有権の物件です。鉄筋コンクリート造、最上階、2階以上、低層マンション(3階建て以下)、南(南東・南西)バルコニーの物件です。
-
| 価格 |
16,880万円
|
| 所在地 |
東京都江東区亀戸6丁目 |
| 交通 |
総武線 「亀戸」駅 徒歩2分
都営新宿線 「西大島」駅 徒歩10分
|
| 専有面積 |
74.56m²
(22.55坪)
|
築年月 |
2021年12月 |
| 間取り |
3LDK |
所在階 |
10階/25階建 |
駅徒歩5分以内、土地権利所有権の物件です。築浅、鉄筋コンクリート造、タワー型(階数が20階建以上)、10階以上、大規模マンション(100戸以上)の物件です。
-
| 価格 |
5,180万円
|
| 所在地 |
東京都品川区小山6丁目 |
| 交通 |
東急目黒線 「西小山」駅 徒歩3分
東急目黒線 「武蔵小山」駅 徒歩10分
|
| 専有面積 |
42.66m²
(12.9坪)
壁芯
|
築年月 |
1983年1月 |
| 間取り |
1LDK |
所在階 |
2階/7階建 |
駅徒歩5分以内、土地権利所有権の物件です。鉄筋コンクリート造、2階以上の物件です。
-
| 価格 |
4,080万円
|
| 所在地 |
東京都昭島市宮沢町 |
| 交通 |
青梅線 「中神」駅 徒歩10分
青梅線 「昭島」駅 徒歩13分
|
| 専有面積 |
103.89m²
(31.42坪)
壁芯
|
築年月 |
2002年2月 |
| 間取り |
4LDK |
所在階 |
4階/15階建 |
駅徒歩10分以内、土地権利所有権の物件です。駐車場空有、鉄筋コンクリート造、専有面積100m2以上、4LDK以上、2階以上の物件です。
-
| 価格 |
4,780万円
|
| 所在地 |
東京都昭島市宮沢町 |
| 交通 |
青梅線 「中神」駅 徒歩10分
青梅線 「昭島」駅 徒歩13分
|
| 専有面積 |
102.91m²
(31.13坪)
壁芯
|
築年月 |
2002年2月 |
| 間取り |
3LDK |
所在階 |
4階/15階建 |
駅徒歩10分以内、土地権利所有権の物件です。駐車場空有、鉄筋コンクリート造、専有面積100m2以上、2階以上、南(南東・南西)バルコニーの物件です。
-
| 価格 |
4,170万円
|
| 所在地 |
東京都葛飾区柴又1丁目 |
| 交通 |
京成電鉄金町線 「柴又」駅 徒歩3分
|
| 専有面積 |
54.18m²
(16.38坪)
壁芯
|
築年月 |
1990年8月 |
| 間取り |
2LDK+納戸(S) |
所在階 |
6階/6階建 |
駅徒歩5分以内、土地権利所有権の物件です。鉄筋コンクリート造、最上階、2階以上、南(南東・南西)バルコニーの物件です。
-
| 価格 |
21,800万円
|
| 所在地 |
東京都文京区小石川1丁目 |
| 交通 |
都営三田線 「春日」駅 徒歩3分
東京メトロ丸ノ内線 「後楽園」駅 徒歩4分
東京メトロ南北線 「後楽園」駅 徒歩4分
|
| 専有面積 |
77.01m²
(23.29坪)
壁芯
|
築年月 |
2009年6月 |
| 間取り |
2LDK |
所在階 |
10階/18階建 |
駅徒歩5分以内、土地権利所有権の物件です。鉄筋コンクリート造、10階以上、大規模マンション(100戸以上)、南(南東・南西)バルコニーの物件です。
-
| 価格 |
7,580万円
|
| 所在地 |
東京都江戸川区平井3丁目 |
| 交通 |
総武線 「平井」駅 徒歩1分
|
| 専有面積 |
68.08m²
(20.59坪)
壁芯
|
築年月 |
2000年3月 |
| 間取り |
3LDK |
所在階 |
3階/21階建 |
駅徒歩5分以内、土地権利所有権の物件です。鉄骨鉄筋コンクリート造、タワー型(階数が20階建以上)、2階以上、大規模マンション(100戸以上)の物件です。
-
| 価格 |
2,280万円
|
| 所在地 |
東京都品川区旗の台6丁目 |
| 交通 |
東急池上線 「旗の台」駅 徒歩5分
東急池上線 「長原」駅 徒歩5分
|
| 専有面積 |
24.38m²
(7.37坪)
壁芯
|
築年月 |
2002年8月 |
| 間取り |
1K |
所在階 |
14階/14階建 |
駅徒歩5分以内、土地権利所有権の物件です。鉄骨鉄筋コンクリート造、最上階、10階以上の物件です。
-
| 価格 |
17,280万円
|
| 所在地 |
東京都中央区日本橋馬喰町1丁目 |
| 交通 |
総武本線 「馬喰町」駅 徒歩1分
都営新宿線 「馬喰横山」駅 徒歩3分
都営浅草線 「東日本橋」駅 徒歩4分
|
| 専有面積 |
72.21m²
(21.84坪)
壁芯
|
築年月 |
2018年3月 |
| 間取り |
3LDK |
所在階 |
10階/14階建 |
駅徒歩5分以内、土地権利所有権の物件です。鉄筋コンクリート造、10階以上、南(南東・南西)バルコニーの物件です。
-
| 価格 |
10,300万円
|
| 所在地 |
東京都港区港南4丁目 |
| 交通 |
山手線 「品川」駅 徒歩12分
|
| 専有面積 |
80.09m²
(24.22坪)
壁芯
|
築年月 |
2008年4月 |
| 間取り |
3LDK |
所在階 |
19階/43階建 |
鉄筋コンクリート造、タワー型(階数が20階建以上)、10階以上、大規模マンション(100戸以上)、南(南東・南西)バルコニーの物件です。
-
| 価格 |
3,980万円
|
| 所在地 |
東京都練馬区平和台1丁目 |
| 交通 |
東京メトロ有楽町線 「平和台」駅 徒歩15分
東武鉄道東上線 「東武練馬」駅 徒歩18分
|
| 専有面積 |
63.6m²
(19.23坪)
壁芯
|
築年月 |
1991年5月 |
| 間取り |
3LDK |
所在階 |
1階/4階建 |
低層住居専用地域、土地権利所有権の物件です。鉄骨鉄筋コンクリート造、1階住戸の物件です。
-
| 価格 |
19,000万円
|
| 所在地 |
東京都品川区東五反田3丁目 |
| 交通 |
都営浅草線 「高輪台」駅 徒歩5分
山手線 「品川」駅 徒歩11分
山手線 「五反田」駅 徒歩11分
|
| 専有面積 |
71.44m²
(21.61坪)
壁芯
|
築年月 |
2023年6月 |
| 間取り |
3LDK |
所在階 |
3階/3階建 |
駅徒歩5分以内、低層住居専用地域、土地権利所有権の物件です。ペット可(細則有)、築浅、鉄筋コンクリート造、最上階、2階以上、低層マンション(3階建て以下)の物件です。
-
| 価格 |
5,280万円
|
| 所在地 |
東京都江東区東陽2丁目 |
| 交通 |
東京メトロ東西線 「東陽町」駅 徒歩3分
|
| 専有面積 |
55.18m²
(16.69坪)
壁芯
|
築年月 |
1978年10月 |
| 間取り |
2LDK |
所在階 |
7階/11階建 |
駅徒歩5分以内、土地権利所有権の物件です。鉄骨鉄筋コンクリート造、2階以上、南(南東・南西)バルコニーの物件です。
-
| 価格 |
6,480万円
|
| 所在地 |
東京都調布市多摩川1丁目 |
| 交通 |
京王電鉄京王線 「西調布」駅 徒歩11分
京王電鉄相模原線 「京王多摩川」駅 徒歩14分
京王電鉄京王線 「調布」駅 徒歩23分
|
| 専有面積 |
87.67m²
(26.52坪)
壁芯
|
築年月 |
2006年4月 |
| 間取り |
3LDK |
所在階 |
2階/5階建 |
土地権利所有権の物件です。鉄筋コンクリート造、2階以上、南(南東・南西)バルコニーの物件です。