西武池袋・豊島線の駅徒歩30分以内の中古マンション物件一覧
西武池袋・豊島線の駅徒歩30分以内の中古マンション購入は、三菱UFJ不動産販売の住まい1にお任せください。地域や沿線などご希望の条件から物件をお探しいただけます。物件の見学(内見)のお問い合わせもお気軽にどうぞ。
-
| 価格 |
5,880万円
|
| 所在地 |
東京都豊島区西池袋5丁目 |
| 交通 |
東京メトロ有楽町線 「要町」駅 徒歩3分
東京メトロ副都心線 「要町」駅 徒歩3分
山手線 「池袋」駅 徒歩14分
|
| 専有面積 |
60.49m²
(18.29坪)
壁芯
|
築年月 |
1979年3月 |
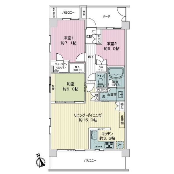
| 間取り |
2LDK |
所在階 |
4階/7階建 |
◇5路線2駅利用のアクセス◇東京メトロ有楽町線・副都心線「要町」駅徒歩3分、JR山手線・埼京線・湘南新宿ライン「池袋」駅徒歩14分
◇3方角住戸
◇南西向きバルコニーに面しているため、採光・通風良好
◇建具・壁の仕上がりを活かしたヴィンテージ風室内
◇2面採光のLDK
■Life Information
◆セブンイレブン豊島要町駅前店…約90m
◆要町駅前クリニック(内科)…約170m
◆ぱぱす要町駅前店…約240m
◆コモディイイダ池袋立教通り店…約270m
◆豊島区立池袋第三小学校…約730m
◆豊島区立西池袋中学校…約640m
-
| 価格 |
15,980万円
|
| 所在地 |
東京都豊島区南池袋1丁目 |
| 交通 |
山手線 「池袋」駅 徒歩6分
湘南新宿ライン(宇都宮~逗子) 「池袋」駅 徒歩6分
山手線 「目白」駅 徒歩9分
|
| 専有面積 |
61.07m²
(18.47坪)
壁芯
|
築年月 |
2015年2月 |
| 間取り |
2LDK+納戸(S)×1 |
所在階 |
10階/31階建 |
(備考の続き)〇ペットの飼育については別途ペット飼育細則を遵守していただきます 〇間取り図の畳数表記(J)は1畳=1.62m2で換算した約表示です 〇略号凡例…Sto./収納、WIC/ウォークインクローゼット、SIC/シューズインクローゼット〜Life information〜◎セブンイレブン南池袋3丁目店…約240m ◎西武池袋本店…約620m ◎池袋ショッピングパーク…約710m ◎ルミネ池袋…約600m ◎南池袋小学校…約730m ◎千登世橋中学校…約950m
-
| 価格 |
10,800万円
|
| 所在地 |
東京都豊島区東池袋2丁目 |
| 交通 |
山手線 「大塚」駅 徒歩10分
埼京線 「池袋」駅 徒歩12分
東京メトロ丸ノ内線 「池袋」駅 徒歩12分
|
| 専有面積 |
56.18m²
(16.99坪)
壁芯
|
築年月 |
2003年8月 |
| 間取り |
2LDK |
所在階 |
13階/26階建 |
◆ 住友不動産(株)【シティタワー】シリーズ × 大成建設(株)施工
◆ 総戸数217戸の免震構造タワーレジデンス
◆ コンビニやスーパーが徒歩圏に揃う便利な住環境
◆ サンシャインシティが徒歩4分で商業・文化施設も身近
◆ 13階部分の南東×北東向き角住戸で採光・通風ともに良好
◆ 全居室がバルコニーに面した開放感ある2LDK
◆ スカイラウンジ・ヒーリングルームなど共用施設が充実
◆ 管理員常駐・清掃員・コンシェルジュによる安心の管理体制
◆ペット飼育可(規約による細則有)
-
| 価格 |
4,980万円
|
| 所在地 |
東京都西東京市下保谷5丁目 |
| 交通 |
西武池袋・豊島線 「保谷」駅 徒歩13分
|
| 専有面積 |
103.54m²
(31.32坪)
内法
|
築年月 |
1991年6月 |
| 間取り |
3LDK |
所在階 |
1階/7階建 |
◎南・西・北側3方を専用庭に囲まれた3LDK◎南向きテラスに面したLD◎LDに畳スペース有◎キッチン横にユーティリティ◎2面採光の洋室(約7.5畳・約6.9畳)
-
| 価格 |
15,800万円
|
| 所在地 |
東京都豊島区池袋3丁目 |
| 交通 |
東京メトロ丸ノ内線 「池袋」駅 徒歩5分
山手線 「池袋」駅 徒歩10分
東京メトロ有楽町線 「要町」駅 徒歩3分
|
| 専有面積 |
55.92m²
(16.91坪)
壁芯
|
築年月 |
2024年1月 |
| 間取り |
2LDK+納戸(S)×1 |
所在階 |
15階/30階建 |
◆東京メトロ丸ノ内線・有楽町線・副都心線「池袋」駅徒歩5分
◆JR山手線・埼京線・湘南新宿ライン「池袋」駅徒歩10分、東京メトロ有楽町線・副都心線「要町」駅徒歩3分も利用可
◆2024年1月築、地上30階建タワーマンション
◆1陳の総戸数231戸のビッグコミュニティ
◆15階部分、全居室が南向きバルコニーに面した眺望・採光良好な2LDK
◆LD(約9.2畳)に床暖房
◆洋室(釣6.1畳)に収納力のあるWIC
◆玄関周りをスッキリと収納できるSIC
◆ペット飼育可(別途細則有)
〜Life Information〜
○ライフ池袋三丁目店…約10m(徒歩1分)
○東武百貨店池...
-
| 価格 |
9,200万円
|
| 所在地 |
東京都豊島区目白5丁目 |
| 交通 |
西武池袋・豊島線 「椎名町」駅 徒歩5分
|
| 専有面積 |
55.86m²
(16.89坪)
壁芯
|
築年月 |
2011年10月 |
| 間取り |
2LDK |
所在階 |
3階/12階建 |
駅徒歩5分以内、土地権利所有権の物件です。駐車場空有、鉄筋コンクリート造、2階以上、南(南東・南西)バルコニーの物件です。
-
| 価格 |
6,180万円
|
| 所在地 |
東京都豊島区西池袋2丁目 |
| 交通 |
山手線 「池袋」駅 徒歩3分
山手線 「目白」駅 徒歩11分
東京メトロ有楽町線 「東池袋」駅 徒歩17分
|
| 専有面積 |
31.95m²
(9.66坪)
壁芯
|
築年月 |
1999年3月 |
| 間取り |
1LDK |
所在階 |
6階/11階建 |
駅徒歩5分以内、土地権利所有権の物件です。鉄筋コンクリート造、2階以上の物件です。
-
| 価格 |
9,000万円
|
| 所在地 |
東京都豊島区南池袋2丁目 |
| 交通 |
東京メトロ有楽町線 「東池袋」駅 徒歩1分
山手線 「池袋」駅 徒歩9分
都電荒川線 「都電雑司ヶ谷」駅 徒歩6分
|
| 専有面積 |
31.25m²
(9.45坪)
壁芯
|
築年月 |
2015年3月 |
| 間取り |
ワンルーム |
所在階 |
12階/49階建 |
駅徒歩5分以内、土地権利所有権の物件です。鉄筋コンクリート造、タワー型(階数が20階建以上)、即入居可、10階以上、大規模マンション(100戸以上)、南(南東・南西)バルコニーの物件です。
-
| 価格 |
3,480万円
|
| 所在地 |
埼玉県新座市栗原4丁目 |
| 交通 |
西武池袋・豊島線 「ひばりヶ丘」駅 徒歩12分
|
| 専有面積 |
70.78m²
(21.41坪)
壁芯
|
築年月 |
1999年2月 |
| 間取り |
2LDK+納戸(S) |
所在階 |
5階/9階建 |
土地権利所有権の物件です。鉄筋コンクリート造、2階以上、南(南東・南西)バルコニーの物件です。
-
| 価格 |
2,780万円
|
| 所在地 |
東京都練馬区高野台2丁目 |
| 交通 |
西武池袋・豊島線 「練馬高野台」駅 徒歩12分
|
| 専有面積 |
52.52m²
(15.88坪)
壁芯
|
築年月 |
1982年11月 |
| 間取り |
2DK+納戸(S) |
所在階 |
2階/6階建 |
土地権利所有権の物件です。鉄筋コンクリート造、2階以上の物件です。
-
| 価格 |
7,480万円
|
| 所在地 |
東京都練馬区東大泉2丁目 |
| 交通 |
西武池袋・豊島線 「大泉学園」駅 徒歩14分
西武池袋・豊島線 「石神井公園」駅 徒歩15分
|
| 専有面積 |
74.7m²
(22.59坪)
壁芯
|
築年月 |
2021年2月 |
| 間取り |
2LDK+納戸(S) |
所在階 |
4階/6階建 |
土地権利所有権の物件です。鉄筋コンクリート造、2階以上の物件です。
-
| 価格 |
7,180万円
|
| 所在地 |
東京都練馬区石神井町2丁目 |
| 交通 |
西武池袋・豊島線 「石神井公園」駅 徒歩2分
西武池袋・豊島線 「練馬高野台」駅 徒歩16分
都営大江戸線 「光が丘」駅 徒歩42分
|
| 専有面積 |
63.4m²
(19.17坪)
壁芯
|
築年月 |
2008年4月 |
| 間取り |
2LDK |
所在階 |
3階/15階建 |
駅徒歩5分以内、土地権利所有権の物件です。鉄筋コンクリート造、2階以上、南(南東・南西)バルコニーの物件です。
-
| 価格 |
2,480万円
|
| 所在地 |
埼玉県新座市石神4丁目 |
| 交通 |
西武池袋・豊島線 「東久留米」駅 徒歩19分
東武鉄道東上線 「朝霞台」駅 バス31分 「火の見下」バス停下車 徒歩20分
西武池袋・豊島線 「東久留米」駅 バス4分 「宝泉寺」バス停下車 徒歩5分
|
| 専有面積 |
80.27m²
(24.28坪)
壁芯
|
築年月 |
1993年8月 |
| 間取り |
4LDK |
所在階 |
5階/8階建 |
土地権利所有権の物件です。鉄筋コンクリート造、4LDK以上、2階以上、南(南東・南西)バルコニーの物件です。
-
| 価格 |
2,580万円
|
| 所在地 |
東京都練馬区南田中4丁目 |
| 交通 |
西武鉄道新宿線 「井荻」駅 徒歩10分
西武池袋・豊島線 「練馬高野台」駅 徒歩17分
|
| 専有面積 |
50.82m²
(15.37坪)
壁芯
|
築年月 |
1979年2月 |
| 間取り |
2LDK |
所在階 |
4階/5階建 |
駅徒歩10分以内、土地権利所有権の物件です。鉄筋コンクリート造、2階以上の物件です。
-
| 価格 |
6,300万円
|
| 所在地 |
東京都板橋区中丸町 |
| 交通 |
東武鉄道東上線 「大山」駅 徒歩7分
埼京線 「池袋」駅 バス19分 「中丸町坂上」バス停下車 徒歩2分
|
| 専有面積 |
55.06m²
(16.65坪)
壁芯
|
築年月 |
2012年1月 |
| 間取り |
2LDK |
所在階 |
2階/14階建 |
駅徒歩10分以内、土地権利所有権の物件です。鉄筋コンクリート造、2階以上、南(南東・南西)バルコニーの物件です。
-
| 価格 |
16,000万円
|
| 所在地 |
東京都豊島区池袋3丁目 |
| 交通 |
東京メトロ副都心線 「要町」駅 徒歩3分
東京メトロ有楽町線 「要町」駅 徒歩3分
東京メトロ有楽町線 「池袋」駅 徒歩5分
|
| 専有面積 |
64.14m²
(19.4坪)
壁芯
|
築年月 |
2024年1月 |
| 間取り |
2LDK |
所在階 |
18階/30階建 |
駅徒歩5分以内、土地権利所有権の物件です。築浅、鉄筋コンクリート造、タワー型(階数が20階建以上)、10階以上、大規模マンション(100戸以上)、リフォーム済みの物件です。
-
| 価格 |
8,800万円
|
| 所在地 |
東京都練馬区石神井町4丁目 |
| 交通 |
西武池袋・豊島線 「石神井公園」駅 徒歩9分
|
| 専有面積 |
81.49m²
(24.65坪)
内法
|
築年月 |
2007年12月 |
| 間取り |
2LDK |
所在階 |
1階/2階建 |
駅徒歩10分以内、低層住居専用地域、土地権利所有権の物件です。鉄筋コンクリート造、1階住戸、低層マンション(3階建て以下)、南(南東・南西)バルコニーの物件です。
-
| 価格 |
3,480万円
|
| 所在地 |
東京都中野区江原町3丁目 |
| 交通 |
都営大江戸線 「新江古田」駅 徒歩6分
西武池袋・豊島線 「江古田」駅 徒歩12分
西武池袋・豊島線 「東長崎」駅 徒歩13分
|
| 専有面積 |
58.18m²
(17.59坪)
壁芯
|
築年月 |
1972年6月 |
| 間取り |
2LDK |
所在階 |
5階/8階建 |
駅徒歩10分以内、土地権利所有権の物件です。鉄筋コンクリート造、2階以上の物件です。
-
| 価格 |
7,800万円
|
| 所在地 |
東京都西東京市東町3丁目 |
| 交通 |
西武池袋・豊島線 「保谷」駅 徒歩3分
|
| 専有面積 |
72.76m²
(22坪)
壁芯
|
築年月 |
2019年1月 |
| 間取り |
3LDK |
所在階 |
5階/14階建 |
駅徒歩5分以内、土地権利所有権の物件です。駐車場空有、鉄筋コンクリート造、2階以上、大規模マンション(100戸以上)の物件です。
-
| 価格 |
9,580万円
|
| 所在地 |
東京都練馬区上石神井3丁目 |
| 交通 |
西武鉄道新宿線 「上石神井」駅 徒歩16分
西武池袋・豊島線 「石神井公園」駅 徒歩20分
|
| 専有面積 |
86.39m²
(26.13坪)
壁芯
|
築年月 |
2023年9月 |
| 間取り |
4LDK |
所在階 |
6階/8階建 |
土地権利所有権の物件です。築浅、鉄筋コンクリート造、4LDK以上、2階以上、大規模マンション(100戸以上)、南(南東・南西)バルコニーの物件です。
-
| 価格 |
7,280万円
|
| 所在地 |
東京都豊島区上池袋1丁目 |
| 交通 |
山手線 「池袋」駅 徒歩13分
東武鉄道東上線 「北池袋」駅 徒歩12分
都電荒川線 「巣鴨新田」駅 徒歩13分
|
| 専有面積 |
72.46m²
(21.91坪)
壁芯
|
築年月 |
1982年1月 |
| 間取り |
3LDK |
所在階 |
5階/9階建 |
土地権利所有権の物件です。鉄筋コンクリート造、2階以上、南(南東・南西)バルコニー、リフォーム済みの物件です。
-
| 価格 |
21,800万円
|
| 所在地 |
東京都新宿区下落合4丁目 |
| 交通 |
山手線 「目白」駅 徒歩12分
西武鉄道新宿線 「下落合」駅 徒歩10分
西武池袋・豊島線 「椎名町」駅 徒歩13分
|
| 専有面積 |
144.78m²
(43.79坪)
壁芯
|
築年月 |
1986年7月 |
| 間取り |
3LDK |
所在階 |
2階/3階建 |
駅徒歩10分以内、低層住居専用地域、土地権利所有権の物件です。鉄筋コンクリート造、専有面積100m2以上、2階以上、低層マンション(3階建て以下)の物件です。
-
| 価格 |
6,680万円
|
| 所在地 |
東京都練馬区東大泉7丁目 |
| 交通 |
西武池袋・豊島線 「大泉学園」駅 徒歩14分
|
| 専有面積 |
84.06m²
(25.42坪)
壁芯
|
築年月 |
2007年7月 |
| 間取り |
3LDK |
所在階 |
4階/5階建 |
土地権利所有権の物件です。駐車場空有、鉄筋コンクリート造、即入居可、2階以上、南(南東・南西)バルコニーの物件です。
-
| 価格 |
2,480万円
|
| 所在地 |
東京都清瀬市松山2丁目 |
| 交通 |
西武池袋・豊島線 「清瀬」駅 徒歩7分
|
| 専有面積 |
51.02m²
(15.43坪)
壁芯
|
築年月 |
1992年1月 |
| 間取り |
2DK |
所在階 |
2階/6階建 |
駅徒歩10分以内、土地権利所有権の物件です。鉄筋コンクリート造、2階以上の物件です。
-
| 価格 |
7,780万円
|
| 所在地 |
東京都練馬区中村北3丁目 |
| 交通 |
西武池袋・豊島線 「中村橋」駅 徒歩3分
|
| 専有面積 |
69.1m²
(20.9坪)
壁芯
|
築年月 |
2003年9月 |
| 間取り |
3LDK |
所在階 |
2階/12階建 |
駅徒歩5分以内、土地権利所有権の物件です。駐車場空有、鉄筋コンクリート造、ルーフバルコニー付、2階以上、南(南東・南西)バルコニーの物件です。
-
| 価格 |
2,600万円
|
| 所在地 |
東京都練馬区貫井5丁目 |
| 交通 |
西武池袋・豊島線 「中村橋」駅 徒歩7分
都営大江戸線 「練馬」駅 徒歩19分
西武池袋・豊島線 「富士見台」駅 徒歩17分
|
| 専有面積 |
31.33m²
(9.47坪)
壁芯
|
築年月 |
1983年5月 |
| 間取り |
1LDK |
所在階 |
3階/6階建 |
駅徒歩10分以内、土地権利所有権の物件です。鉄筋コンクリート造、2階以上の物件です。
-
| 価格 |
6,980万円
|
| 所在地 |
東京都豊島区千早1丁目 |
| 交通 |
東京メトロ有楽町線 「要町」駅 徒歩4分
東京メトロ副都心線 「要町」駅 徒歩4分
西武池袋・豊島線 「椎名町」駅 徒歩8分
|
| 専有面積 |
56.95m²
(17.22坪)
壁芯
|
築年月 |
1996年3月 |
| 間取り |
2LDK |
所在階 |
2階/7階建 |
駅徒歩5分以内、土地権利所有権の物件です。鉄筋コンクリート造、2階以上、南(南東・南西)バルコニーの物件です。
-
| 価格 |
9,480万円
|
| 所在地 |
東京都豊島区上池袋1丁目 |
| 交通 |
山手線 「池袋」駅 徒歩14分
山手線 「大塚」駅 徒歩14分
都営三田線 「西巣鴨」駅 徒歩12分
|
| 専有面積 |
69.75m²
(21.09坪)
壁芯
|
築年月 |
2005年1月 |
| 間取り |
3LDK |
所在階 |
9階/22階建 |
土地権利所有権の物件です。鉄筋コンクリート造、タワー型(階数が20階建以上)、2階以上、南(南東・南西)バルコニーの物件です。
-
| 価格 |
13,980万円
|
| 所在地 |
東京都豊島区東池袋4丁目 |
| 交通 |
東京メトロ有楽町線 「東池袋」駅 徒歩2分
山手線 「池袋」駅 徒歩9分
都電荒川線 「東池袋四丁目」駅 徒歩3分
|
| 専有面積 |
60.75m²
(18.37坪)
壁芯
|
築年月 |
2011年1月 |
| 間取り |
2LDK |
所在階 |
10階/52階建 |
駅徒歩5分以内、土地権利所有権の物件です。鉄筋コンクリート造、タワー型(階数が20階建以上)、10階以上、大規模マンション(100戸以上)、南(南東・南西)バルコニーの物件です。
-
| 価格 |
10,980万円
|
| 所在地 |
東京都練馬区東大泉5丁目 |
| 交通 |
西武池袋・豊島線 「大泉学園」駅 徒歩1分
|
| 専有面積 |
78.79m²
(23.83坪)
壁芯
|
築年月 |
2002年11月 |
| 間取り |
2LDK |
所在階 |
10階/27階建 |
駅徒歩5分以内、土地権利所有権の物件です。鉄筋コンクリート造、タワー型(階数が20階建以上)、10階以上、大規模マンション(100戸以上)、南(南東・南西)バルコニーの物件です。