埼京線の中古マンション物件一覧
埼京線の中古マンション購入は、三菱UFJ不動産販売の住まい1にお任せください。地域や沿線などご希望の条件から物件をお探しいただけます。物件の見学(内見)のお問い合わせもお気軽にどうぞ。
-
| 価格 |
23,800万円
|
| 所在地 |
東京都新宿区富久町 |
| 交通 |
東京メトロ丸ノ内線 「新宿御苑前」駅 徒歩7分
都営新宿線 「新宿三丁目」駅 徒歩9分
山手線 「新宿」駅 徒歩17分
|
| 専有面積 |
70.75m²
(21.4坪)
壁芯
|
築年月 |
2015年4月 |
| 間取り |
1LDK+納戸(S)×1 |
所在階 |
32階/55階建 |
◎眺望良好な32階部分
◎ペット飼育可(別途細則有)
◎野村不動産株式会社他旧分譲
◎1棟(超高層棟)の総戸数1,093戸のビッグコミュニティ
◎敷地内に四季折々の景色が楽しめる「彩華の広場」が広がります
◎ゆとりのLD(約18.4畳)
◎収納力のある納戸(約2.3畳)
◎L字型キッチン(食器洗い乾燥機、浄水器一体型水栓、ディスポーザー付)
◎リビング・バルコニーから「東京スカイツリー」が望めます※気象条件による
◎LDに2面床暖房
◎洋室(約6.9畳)に3連クローゼット
-
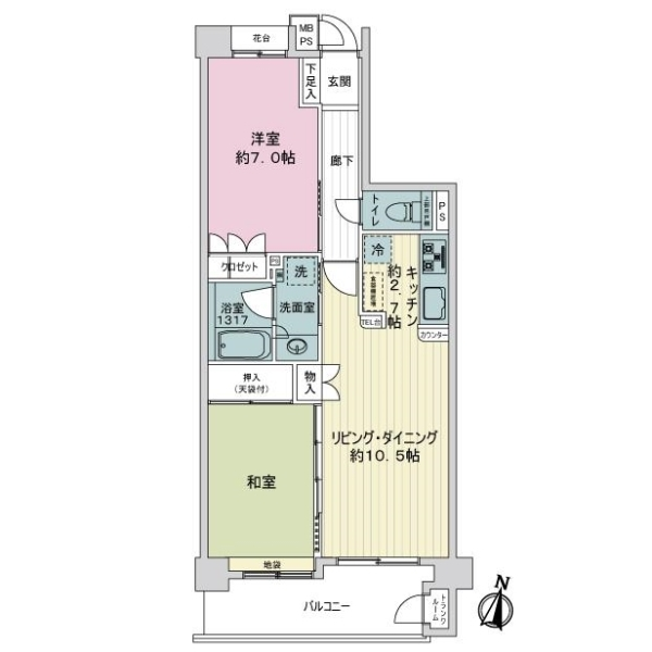
| 価格 |
4,730万円
|
| 所在地 |
埼玉県さいたま市南区沼影1丁目 |
| 交通 |
埼京線 「武蔵浦和」駅 徒歩3分
武蔵野線 「武蔵浦和」駅 徒歩3分
|
| 専有面積 |
56.18m²
(16.99坪)
壁芯
|
築年月 |
2016年3月 |
| 間取り |
1LDK |
所在階 |
3階/32階建 |
●売買契約時に「グランコスモ武蔵浦和サービス契約」の締結が必要です。
入居時に入居一時金(入居者1人目550,000円、2人目以降1人につき330,000円※引渡時一括/税込)
サービス保証金(入居者1人につき180,000円※引渡時一括/非課税)
およびサービス費(入居者1人につき33,000円※月額/税込)が必要になります。
●間取図の畳数表記(J)は1畳=1.62平米で換算した約表示です
●写真撮影:2025年8月
●略号凡例:WIC/ウォークインクローゼット、SIC/シューズインクローゼット、TR/トランクルーム
-
| 価格 |
15,600万円
|
| 所在地 |
東京都渋谷区渋谷2丁目 |
| 交通 |
東京メトロ銀座線 「表参道」駅 徒歩7分
東急東横線 「渋谷」駅 徒歩8分
山手線 「渋谷」駅 徒歩9分
|
| 専有面積 |
60.48m²
(18.29坪)
壁芯
|
築年月 |
2000年2月 |
| 間取り |
2LDK |
所在階 |
7階/14階建 |
●東京メトロ銀座線・千代田線・半蔵門線「表参道」駅徒歩7分、東急東横線、東京メトロ副都心線「渋谷」駅徒歩8分●JR山手線・埼京線・湘南新宿ライン・東京メトロ銀座線・半蔵門線「渋谷」駅徒歩9分●共用部オートロック●眺望・日当たり良好●丸紅株式会社旧分譲●ペット飼育可(規約による制限あり)●南西向きバルコニーに面した2LDK●収納力のある2WAY仕様のウォークインクローゼット
-
| 価格 |
5,880万円
|
| 所在地 |
東京都豊島区西池袋5丁目 |
| 交通 |
東京メトロ有楽町線 「要町」駅 徒歩3分
東京メトロ副都心線 「要町」駅 徒歩3分
山手線 「池袋」駅 徒歩14分
|
| 専有面積 |
60.49m²
(18.29坪)
壁芯
|
築年月 |
1979年3月 |
| 間取り |
2LDK |
所在階 |
4階/7階建 |
◇5路線2駅利用のアクセス◇東京メトロ有楽町線・副都心線「要町」駅徒歩3分、JR山手線・埼京線・湘南新宿ライン「池袋」駅徒歩14分
◇3方角住戸
◇南西向きバルコニーに面しているため、採光・通風良好
◇建具・壁の仕上がりを活かしたヴィンテージ風室内
◇2面採光のLDK
■Life Information
◆セブンイレブン豊島要町駅前店…約90m
◆要町駅前クリニック(内科)…約170m
◆ぱぱす要町駅前店…約240m
◆コモディイイダ池袋立教通り店…約270m
◆豊島区立池袋第三小学校…約730m
◆豊島区立西池袋中学校…約640m
-
| 価格 |
15,980万円
|
| 所在地 |
東京都豊島区南池袋1丁目 |
| 交通 |
山手線 「池袋」駅 徒歩6分
湘南新宿ライン(宇都宮~逗子) 「池袋」駅 徒歩6分
山手線 「目白」駅 徒歩9分
|
| 専有面積 |
61.07m²
(18.47坪)
壁芯
|
築年月 |
2015年2月 |
| 間取り |
2LDK+納戸(S)×1 |
所在階 |
10階/31階建 |
(備考の続き)〇ペットの飼育については別途ペット飼育細則を遵守していただきます 〇間取り図の畳数表記(J)は1畳=1.62m2で換算した約表示です 〇略号凡例…Sto./収納、WIC/ウォークインクローゼット、SIC/シューズインクローゼット〜Life information〜◎セブンイレブン南池袋3丁目店…約240m ◎西武池袋本店…約620m ◎池袋ショッピングパーク…約710m ◎ルミネ池袋…約600m ◎南池袋小学校…約730m ◎千登世橋中学校…約950m
-
| 価格 |
12,500万円
|
| 所在地 |
神奈川県川崎市中原区小杉町3丁目 |
| 交通 |
南武線 「武蔵小杉」駅 徒歩1分
東急東横線 「武蔵小杉」駅 徒歩1分
東急目黒線 「武蔵小杉」駅 徒歩1分
|
| 専有面積 |
62.42m²
(18.88坪)
壁芯
|
築年月 |
2013年2月 |
| 間取り |
2LDK |
所在階 |
17階/39階建 |
◎JR南武線、東急東横線・目黒線「武蔵小杉」駅直結◎JR横須賀線・湘南新宿ライン「武蔵小杉」駅徒歩7分も利用可◎西向きバルコニーに面したLD(約10.9畳)◎LD部分に床暖房◎対面カウンターキッチン(約2.9畳)◎各洋室から出入りできる2WAY仕様のWTC◎1棟の総戸数326戸のビッグコミュニティ◎眺望良好な17階部分◎ペットの飼育については別途ペット細則を遵守していただきます
-
| 価格 |
5,980万円
|
| 所在地 |
埼玉県さいたま市中央区大字下落合 |
| 交通 |
京浜東北・根岸線 「与野」駅 徒歩2分
京浜東北・根岸線 「さいたま新都心」駅 徒歩15分
埼京線 「与野本町」駅 徒歩14分
|
| 専有面積 |
80.25m²
(24.27坪)
壁芯
|
築年月 |
2003年1月 |
| 間取り |
3LDK |
所在階 |
10階/22階建 |
●駐車場:車種による制限有●1棟の総戸数102戸のビッグコミュニティ●眺望良好な10階部分●全居室がバルコニーに接面した3LDK●2面採光のLD(約12.9畳)●L字型キッチン(約4.3畳)●洋室(約7畳)に2連クローゼット2個所●玄関周りをスッキリと収納できるSIC●バルコニーにスロップシンク〈Life Information〉●ローソン与野駅西口店…約220m●ファミリーマート与野駅西口店…約300m●ビバモールさいたま新都心店…約540m●西友与野店…約540m●与野駅前郵便局…約0m(本物件1階)●針ケ谷四公園…約440m●市立下落合小学校…約770m●市立与野東中学校…約800m
-
| 価格 |
12,000万円
|
| 所在地 |
東京都豊島区南池袋1丁目 |
| 交通 |
西武池袋・豊島線 「池袋」駅 徒歩5分
山手線 「池袋」駅 徒歩7分
山手線 「目白」駅 徒歩9分
|
| 専有面積 |
48.84m²
(14.77坪)
壁芯
|
築年月 |
2025年2月 |
| 間取り |
1LDK |
所在階 |
10階/17階建 |
◎周辺に商業施設が点在する暮らしに優しい住環境
◎10階部分、北東向きバルコニーに面した角住戸
◎三井不動産レジデンシャル株式会社旧分譲
◎2面採光の洋室約6畳に収納力のあるWIC(約2.5畳)
◎屋上スカイラウンジから都心を一望できます※気象条件による
【設備・仕様の一部】
■温水式床暖房(LD部分)
■全熱交換換気システム
■防犯カメラ
■カラーモニター付ハンズフリーインターホン
■浄水器一体型シャワー水栓
■ディスポーザー
■浴室暖房換気乾燥機
■エアコン1基
■非常用発電設備
■防災備蓄倉庫
-
| 価格 |
9,980万円
|
| 所在地 |
東京都品川区北品川5丁目 |
| 交通 |
山手線 「大崎」駅 徒歩5分
湘南新宿ライン(宇都宮~逗子) 「大崎」駅 徒歩5分
埼京線 「大崎」駅 徒歩5分
|
| 専有面積 |
57.92m²
(17.52坪)
壁芯
|
築年月 |
1996年11月 |
| 間取り |
2DK+納戸(S)×1 |
所在階 |
6階/14階建 |
◆複合商業施設「大崎ニューシティ」まで約420m◆6階部分、3方がバルコニーに面する角住戸◆洋室(約5.9畳)に収納力のあるWIC◆廊下部分に収納スペースあり◆6路線2駅利用のアクセス(りんかい線「大崎」駅徒歩5分、JR山手線・東急池上線・都営浅草線「五反田駅」徒歩10分も利用可)◆オートロック
-
| 価格 |
1,950万円
|
| 所在地 |
東京都豊島区南池袋3丁目 |
| 交通 |
山手線 「池袋」駅 徒歩2分
東京メトロ丸ノ内線 「池袋」駅 徒歩2分
東武鉄道東上線 「池袋」駅 徒歩2分
|
| 専有面積 |
22.97m²
(6.94坪)
壁芯
|
築年月 |
1978年3月 |
| 間取り |
ワンルーム |
所在階 |
4階/13階建 |
・「池袋」駅徒歩2分のアプローチ
・周辺に商業施設が点在する立地
・南東向きバルコニーに面した1ルーム
・当マンション1階「まいばすけっと(スーパー)」営業中
・都心ながら緑に彩られた「南池袋公園」まで約390m
〜Life Information〜
・セブンイレブン南池袋3丁目明治通り店…約40m
・ファミリーマート南池袋東通り店…約110m
・まいばすけっと南池袋3丁目店…本物件1階
・マツモトキヨシ南池袋店…約80m
・西武池袋本店…約340m
・ルミネ池袋…約450m
・池袋ショッピングパーク…約430m
・南池袋公園…約390m
-
| 価格 |
5,480万円
|
| 所在地 |
東京都板橋区板橋1丁目 |
| 交通 |
都営三田線 「新板橋」駅 徒歩2分
埼京線 「板橋」駅 徒歩5分
|
| 専有面積 |
54.18m²
(16.38坪)
壁芯
|
築年月 |
1985年2月 |
| 間取り |
2LDK |
所在階 |
6階/14階建 |
◆都営三田線「新板橋」駅徒歩2分、JR埼京線「板橋」駅徒歩5分のアクセス
◆1棟の総戸数154戸のビッグコミュニティ
◆2室に面する南西向きバルコニー
◆対面カウンターキッチン
◆洋室の引戸を収納すればLDと一体化した空間が広がります
◆宅配ボックス
〜Life Information〜
●セブンイレブン新板橋駅前店…約160m(徒歩2分)
●ライフ板橋店…約280m(徒歩4分)
●クオール薬局新板橋駅前薬局…約180m(徒歩3分)
●新板橋クリニック(内科・消化器科・外科)…約200m(徒歩3分)
●南板橋公園…約520m(徒歩7分)
-
| 価格 |
3,990万円
|
| 所在地 |
埼玉県さいたま市大宮区大成町1丁目 |
| 交通 |
東北本線 「大宮」駅 徒歩12分
京浜東北・根岸線 「大宮」駅 徒歩12分
埼京線 「大宮」駅 徒歩12分
|
| 専有面積 |
54.98m²
(16.63坪)
壁芯
|
築年月 |
2009年5月 |
| 間取り |
2LDK
|
所在階 |
3階/5階建 |
○JR大宮駅徒歩12分
○リフォーム前のため壁紙の色など内装工事のご要望にお応えできます!
○広々、そして日当り良いLDK
○ペット飼育可能(規約細則有)
○24時間ゴミ置場、駐輪場、バイク置場
【設備】
IHキッチン、全室エアコン設置、温水洗浄機能付便座、浴室乾燥機、追い焚き機能、クローゼット、フレッツ光
-
| 価格 |
15,300万円
|
| 所在地 |
東京都渋谷区東2丁目 |
| 交通 |
山手線 「渋谷」駅 徒歩11分
東急東横線 「渋谷」駅 徒歩11分
東京メトロ日比谷線 「恵比寿」駅 徒歩11分
|
| 専有面積 |
102.77m²
(31.08坪)
壁芯
|
築年月 |
1981年7月 |
| 間取り |
2LDK
|
所在階 |
7階/8階建 |
■戸建感覚のメゾネットタイプ
■陽当り・眺望良好
■複数路線利用可能
-
| 価格 |
10,980万円
|
| 所在地 |
東京都渋谷区東2丁目 |
| 交通 |
山手線 「渋谷」駅 徒歩9分
東京メトロ日比谷線 「恵比寿」駅 徒歩9分
東急東横線 「代官山」駅 徒歩10分
|
| 専有面積 |
31.34m²
(9.48坪)
壁芯
|
築年月 |
2025年7月 |
| 間取り |
1DK |
所在階 |
7階/9階建 |
駅徒歩10分以内、土地権利所有権の物件です。築浅、鉄筋コンクリート造、即入居可、2階以上の物件です。
-
| 価格 |
9,480万円
|
| 所在地 |
東京都目黒区中目黒2丁目 |
| 交通 |
東急東横線 「中目黒」駅 徒歩10分
東京メトロ日比谷線 「中目黒」駅 徒歩10分
山手線 「恵比寿」駅 徒歩15分
|
| 専有面積 |
66.52m²
(20.12坪)
壁芯
|
築年月 |
1972年6月 |
| 間取り |
2LDK |
所在階 |
2階/8階建 |
駅徒歩10分以内、土地権利所有権の物件です。駐車場空有、鉄骨鉄筋コンクリート造、2階以上、南(南東・南西)バルコニー、リフォーム済みの物件です。
-
| 価格 |
3,780万円
|
| 所在地 |
埼玉県戸田市美女木2丁目 |
| 交通 |
埼京線 「北戸田」駅 徒歩20分
埼京線 「武蔵浦和」駅 徒歩30分
武蔵野線 「武蔵浦和」駅 徒歩30分
|
| 専有面積 |
75.5m²
(22.83坪)
壁芯
|
築年月 |
2001年3月 |
| 間取り |
3LDK |
所在階 |
1階/5階建 |
土地権利所有権の物件です。鉄筋コンクリート造、1階住戸、南(南東・南西)バルコニーの物件です。
-
| 価格 |
14,800万円
|
| 所在地 |
東京都新宿区西新宿5丁目 |
| 交通 |
都営大江戸線 「西新宿五丁目」駅 徒歩7分
東京メトロ丸ノ内線 「西新宿」駅 徒歩9分
山手線 「新宿」駅 徒歩19分
|
| 専有面積 |
59.51m²
(18坪)
壁芯
|
築年月 |
2017年8月 |
| 間取り |
2LDK |
所在階 |
43階/60階建 |
駅徒歩10分以内、土地権利所有権の物件です。駐車場空有、鉄筋コンクリート造、タワー型(階数が20階建以上)、10階以上、南(南東・南西)バルコニーの物件です。
-
| 価格 |
23,800万円
|
| 所在地 |
東京都渋谷区恵比寿西2丁目 |
| 交通 |
東急東横線 「代官山」駅 徒歩3分
山手線 「恵比寿」駅 徒歩8分
東京メトロ日比谷線 「中目黒」駅 徒歩11分
|
| 専有面積 |
66.61m²
(20.14坪)
壁芯
|
築年月 |
2007年2月 |
| 間取り |
2LDK |
所在階 |
6階/10階建 |
駅徒歩5分以内、土地権利所有権の物件です。鉄筋コンクリート造、2階以上、大規模マンション(100戸以上)、南(南東・南西)バルコニーの物件です。
-
| 価格 |
6,780万円
|
| 所在地 |
東京都北区浮間5丁目 |
| 交通 |
埼京線 「浮間舟渡」駅 徒歩13分
都営三田線 「志村三丁目」駅 徒歩20分
|
| 専有面積 |
100.95m²
(30.53坪)
壁芯
|
築年月 |
2002年9月 |
| 間取り |
4LDK |
所在階 |
1階/11階建 |
土地権利所有権の物件です。鉄筋コンクリート造、専有面積100m2以上、4LDK以上、1階住戸、南(南東・南西)バルコニーの物件です。
-
| 価格 |
4,980万円
|
| 所在地 |
埼玉県蕨市錦町2丁目 |
| 交通 |
埼京線 「戸田」駅 徒歩14分
京浜東北・根岸線 「蕨」駅 徒歩20分
|
| 専有面積 |
72.59m²
(21.95坪)
壁芯
|
築年月 |
2018年1月 |
| 間取り |
3LDK |
所在階 |
11階/11階建 |
土地権利所有権の物件です。鉄筋コンクリート造、最上階、10階以上、大規模マンション(100戸以上)、南(南東・南西)バルコニーの物件です。
-
| 価格 |
7,180万円
|
| 所在地 |
東京都品川区北品川5丁目 |
| 交通 |
山手線 「大崎」駅 徒歩4分
りんかい線 「大崎」駅 徒歩4分
山手線 「五反田」駅 徒歩12分
|
| 専有面積 |
43.93m²
(13.28坪)
壁芯
|
築年月 |
1986年1月 |
| 間取り |
2LDK |
所在階 |
4階/11階建 |
駅徒歩5分以内、土地権利所有権の物件です。鉄骨鉄筋コンクリート造、2階以上、大規模マンション(100戸以上)の物件です。
-
| 価格 |
21,990万円
|
| 所在地 |
東京都豊島区南池袋1丁目 |
| 交通 |
埼京線 「池袋」駅 徒歩4分
山手線 「目白」駅 徒歩9分
東京メトロ有楽町線 「池袋」駅 徒歩4分
|
| 専有面積 |
67.45m²
(20.4坪)
壁芯
|
築年月 |
2015年2月 |
| 間取り |
3LDK |
所在階 |
23階/31階建 |
駅徒歩5分以内、土地権利所有権の物件です。鉄筋コンクリート造、タワー型(階数が20階建以上)、10階以上、大規模マンション(100戸以上)、南(南東・南西)バルコニーの物件です。
-
| 価格 |
3,790万円
|
| 所在地 |
埼玉県さいたま市南区根岸4丁目 |
| 交通 |
武蔵野線 「南浦和」駅 徒歩12分
武蔵野線 「武蔵浦和」駅 徒歩18分
|
| 専有面積 |
69.88m²
(21.13坪)
|
築年月 |
1986年11月 |
| 間取り |
3LDK |
所在階 |
5階/5階建 |
土地権利所有権の物件です。鉄筋コンクリート造、最上階、2階以上、南(南東・南西)バルコニーの物件です。
-
| 価格 |
4,280万円
|
| 所在地 |
埼玉県戸田市喜沢南1丁目 |
| 交通 |
京浜東北・根岸線 「西川口」駅 徒歩17分
埼京線 「戸田公園」駅 徒歩21分
|
| 専有面積 |
76.06m²
(23坪)
壁芯
|
築年月 |
1995年11月 |
| 間取り |
4LDK |
所在階 |
5階/13階建 |
土地権利所有権の物件です。鉄骨鉄筋コンクリート造、4LDK以上、2階以上の物件です。
-
| 価格 |
7,780万円
|
| 所在地 |
東京都豊島区西池袋5丁目 |
| 交通 |
東京メトロ有楽町線 「要町」駅 徒歩3分
東京メトロ副都心線 「池袋」駅 徒歩9分
山手線 「池袋」駅 徒歩13分
|
| 専有面積 |
62.1m²
(18.78坪)
壁芯
|
築年月 |
1996年6月 |
| 間取り |
2LDK+納戸(S) |
所在階 |
4階/5階建 |
駅徒歩5分以内、土地権利所有権の物件です。鉄筋コンクリート造、2階以上、南(南東・南西)バルコニーの物件です。
-
| 価格 |
9,280万円
|
| 所在地 |
東京都目黒区青葉台3丁目 |
| 交通 |
東急田園都市線 「池尻大橋」駅 徒歩9分
山手線 「渋谷」駅 徒歩15分
京王電鉄井の頭線 「神泉」駅 徒歩9分
|
| 専有面積 |
42.65m²
(12.9坪)
壁芯
|
築年月 |
2010年3月 |
| 間取り |
1LDK |
所在階 |
5階/10階建 |
駅徒歩10分以内、土地権利所有権の物件です。駐車場空有、鉄筋コンクリート造、2階以上の物件です。
-
| 価格 |
2,780万円
|
| 所在地 |
神奈川県川崎市中原区下沼部 |
| 交通 |
横須賀線 「武蔵小杉」駅 徒歩5分
南武線 「向河原」駅 徒歩2分
|
| 専有面積 |
43.02m²
(13.01坪)
壁芯
|
築年月 |
1980年12月 |
| 間取り |
2DK |
所在階 |
2階/3階建 |
駅徒歩5分以内、土地権利所有権の物件です。鉄筋コンクリート造、2階以上、低層マンション(3階建て以下)の物件です。
-
| 価格 |
5,480万円
|
| 所在地 |
東京都品川区大井4丁目 |
| 交通 |
京浜東北・根岸線 「大井町」駅 徒歩12分
京浜急行電鉄本線 「立会川」駅 徒歩12分
横須賀線 「西大井」駅 徒歩13分
|
| 専有面積 |
37.12m²
(11.22坪)
壁芯
|
築年月 |
2003年3月 |
| 間取り |
1DK |
所在階 |
5階/11階建 |
土地権利所有権の物件です。鉄骨鉄筋コンクリート造、2階以上、南(南東・南西)バルコニーの物件です。
-
| 価格 |
6,980万円
|
| 所在地 |
東京都北区中十条1丁目 |
| 交通 |
埼京線 「十条」駅 徒歩9分
京浜東北・根岸線 「東十条」駅 徒歩7分
京浜東北・根岸線 「王子」駅 徒歩16分
|
| 専有面積 |
56.19m²
(16.99坪)
壁芯
|
築年月 |
2020年10月 |
| 間取り |
3LDK+納戸(S) |
所在階 |
6階/14階建 |
駅徒歩10分以内、土地権利所有権の物件です。鉄筋コンクリート造、2階以上、南(南東・南西)バルコニーの物件です。
-
| 価格 |
6,490万円
|
| 所在地 |
埼玉県さいたま市中央区上落合5丁目 |
| 交通 |
京浜東北・根岸線 「大宮」駅 徒歩11分
埼京線 「北与野」駅 徒歩11分
京浜東北・根岸線 「さいたま新都心」駅 徒歩12分
|
| 専有面積 |
85.36m²
(25.82坪)
壁芯
|
築年月 |
2002年8月 |
| 間取り |
3LDK |
所在階 |
18階/32階建 |
土地権利所有権の物件です。駐車場空有、鉄筋コンクリート造、タワー型(階数が20階建以上)、即入居可、10階以上、南(南東・南西)バルコニーの物件です。
最近見た物件
-
-
根岸壱番館
-
4,180万円
-
3LDK/ 75.03m²
-
京浜東北・根岸線 「南浦和」駅 徒歩14分