東北本線の中古マンション物件一覧
東北本線の中古マンション購入は、三菱UFJ不動産販売の住まい1にお任せください。地域や沿線などご希望の条件から物件をお探しいただけます。物件の見学(内見)のお問い合わせもお気軽にどうぞ。
-
| 価格 |
5,980万円
|
| 所在地 |
埼玉県さいたま市中央区大字下落合 |
| 交通 |
京浜東北・根岸線 「与野」駅 徒歩2分
京浜東北・根岸線 「さいたま新都心」駅 徒歩15分
埼京線 「与野本町」駅 徒歩14分
|
| 専有面積 |
80.25m²
(24.27坪)
壁芯
|
築年月 |
2003年1月 |
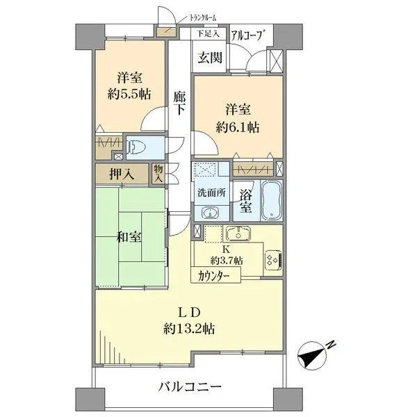
| 間取り |
3LDK |
所在階 |
10階/22階建 |
●駐車場:車種による制限有●1棟の総戸数102戸のビッグコミュニティ●眺望良好な10階部分●全居室がバルコニーに接面した3LDK●2面採光のLD(約12.9畳)●L字型キッチン(約4.3畳)●洋室(約7畳)に2連クローゼット2個所●玄関周りをスッキリと収納できるSIC●バルコニーにスロップシンク〈Life Information〉●ローソン与野駅西口店…約220m●ファミリーマート与野駅西口店…約300m●ビバモールさいたま新都心店…約540m●西友与野店…約540m●与野駅前郵便局…約0m(本物件1階)●針ケ谷四公園…約440m●市立下落合小学校…約770m●市立与野東中学校…約800m
-
| 価格 |
3,850万円
|
| 所在地 |
東京都台東区上野6丁目 |
| 交通 |
山手線 「御徒町」駅 徒歩2分
東京メトロ日比谷線 「仲御徒町」駅 徒歩1分
山手線 「上野」駅 徒歩6分
|
| 専有面積 |
35.69m²
(10.79坪)
壁芯
|
築年月 |
1983年11月 |
| 間取り |
1DK |
所在階 |
7階/10階建 |
■JR山手線・京浜東北線「御徒町」駅徒歩2分、東京メトロ日比谷線「仲御徒町」駅徒歩1分、JR宇都宮線・高崎線・常磐線・JR山手線・京浜東北線・東京メトロ銀座線・日比谷線「上野」駅徒歩6分、東京メトロ銀座線「上野広小路」駅徒歩4分■2015年9月内装リフォーム実施【交換】ミニキッチン、トイレ、シャワールーム【張替え】床カーペット(洋室・ダイニング)【その他】間取り変更、壁・天井塗装(全室)■間取図の畳数表記(J)は1畳=1.62m2で換算した約表示です■写真撮影/全て2025年12月
-
| 価格 |
1,380万円
|
| 所在地 |
埼玉県さいたま市見沼区春野1丁目 |
| 交通 |
東北本線 「東大宮」駅 バス14分 「東三番街」バス停下車 徒歩1分
|
| 専有面積 |
66.48m²
(20.11坪)
壁芯
|
築年月 |
1991年12月 |
| 間取り |
2LDK |
所在階 |
5階/9階建 |
〇南東側バルコニーに面したリビング・ダイニングは採光・通風に優れた心地よい空間
〇管理体制良好
〜Life Information〜
●ドラッグセイムス深作店…約410m(徒歩6分)
●春野クリニック…約560m(徒歩7分)
●春野保育園…約360m(徒歩5分)
●さいたま市立春野小学校…約370m(徒歩5分)
●さいたま市立春野中学校…約840m(徒歩11分)
●観音寺下公園…約470m(徒歩6分)
-
| 価格 |
3,990万円
|
| 所在地 |
埼玉県さいたま市大宮区大成町1丁目 |
| 交通 |
東北本線 「大宮」駅 徒歩12分
京浜東北・根岸線 「大宮」駅 徒歩12分
埼京線 「大宮」駅 徒歩12分
|
| 専有面積 |
54.98m²
(16.63坪)
壁芯
|
築年月 |
2009年5月 |
| 間取り |
2LDK
|
所在階 |
3階/5階建 |
○JR大宮駅徒歩12分
○リフォーム前のため壁紙の色など内装工事のご要望にお応えできます!
○広々、そして日当り良いLDK
○ペット飼育可能(規約細則有)
○24時間ゴミ置場、駐輪場、バイク置場
【設備】
IHキッチン、全室エアコン設置、温水洗浄機能付便座、浴室乾燥機、追い焚き機能、クローゼット、フレッツ光
-
| 価格 |
3,480万円
|
| 所在地 |
埼玉県さいたま市大宮区桜木町3丁目 |
| 交通 |
京浜東北・根岸線 「大宮」駅 徒歩15分
埼玉新都市交通 「鉄道博物館(大成)」駅 徒歩7分
|
| 専有面積 |
76.45m²
(23.12坪)
壁芯
|
築年月 |
1997年3月 |
| 間取り |
3LDK |
所在階 |
1階/10階建 |
駅徒歩10分以内、土地権利所有権の物件です。駐車場空有、鉄筋コンクリート造、即入居可、1階住戸、大規模マンション(100戸以上)、南(南東・南西)バルコニーの物件です。
-
| 価格 |
6,480万円
|
| 所在地 |
東京都台東区東上野5丁目 |
| 交通 |
山手線 「上野」駅 徒歩5分
東京メトロ銀座線 「上野」駅 徒歩6分
東京メトロ銀座線 「稲荷町」駅 徒歩5分
|
| 専有面積 |
34m²
(10.28坪)
壁芯
|
築年月 |
2018年2月 |
| 間取り |
1LDK |
所在階 |
3階/15階建 |
駅徒歩5分以内、土地権利所有権の物件です。鉄筋コンクリート造、2階以上の物件です。
-
| 価格 |
5,880万円
|
| 所在地 |
埼玉県さいたま市大宮区宮町3丁目 |
| 交通 |
京浜東北・根岸線 「大宮」駅 徒歩10分
東武鉄道野田線 「北大宮」駅 徒歩7分
埼京線 「大宮」駅 徒歩10分
|
| 専有面積 |
82.6m²
(24.98坪)
壁芯
|
築年月 |
2003年2月 |
| 間取り |
3LDK |
所在階 |
8階/14階建 |
駅徒歩10分以内、土地権利所有権の物件です。鉄骨鉄筋コンクリート造、2階以上、南(南東・南西)バルコニーの物件です。
-
| 価格 |
7,480万円
|
| 所在地 |
埼玉県さいたま市大宮区下町1丁目 |
| 交通 |
京浜東北・根岸線 「大宮」駅 徒歩6分
埼京線 「大宮」駅 徒歩6分
|
| 専有面積 |
70.1m²
(21.2坪)
壁芯
|
築年月 |
2023年9月 |
| 間取り |
3LDK |
所在階 |
3階/10階建 |
駅徒歩10分以内、土地権利所有権の物件です。築浅、鉄筋コンクリート造、即入居可、2階以上、南(南東・南西)バルコニーの物件です。
-
| 価格 |
15,480万円
|
| 所在地 |
東京都台東区池之端2丁目 |
| 交通 |
東京メトロ千代田線 「根津」駅 徒歩4分
山手線 「上野」駅 徒歩13分
東京メトロ南北線 「東大前」駅 徒歩13分
|
| 専有面積 |
65.44m²
(19.79坪)
壁芯
|
築年月 |
2005年1月 |
| 間取り |
2LDK |
所在階 |
9階/38階建 |
駅徒歩5分以内、土地権利所有権の物件です。駐車場空有、鉄筋コンクリート造、タワー型(階数が20階建以上)、即入居可、2階以上、大規模マンション(100戸以上)の物件です。
-
| 価格 |
17,480万円
|
| 所在地 |
東京都台東区池之端2丁目 |
| 交通 |
東京メトロ千代田線 「根津」駅 徒歩4分
山手線 「上野」駅 徒歩13分
京成電鉄本線 「京成上野」駅 徒歩10分
|
| 専有面積 |
79.74m²
(24.12坪)
壁芯
|
築年月 |
2005年1月 |
| 間取り |
2LDK |
所在階 |
9階/38階建 |
駅徒歩5分以内、土地権利所有権の物件です。駐車場空有、鉄筋コンクリート造、タワー型(階数が20階建以上)、2階以上、大規模マンション(100戸以上)、南(南東・南西)バルコニーの物件です。
-
| 価格 |
5,380万円
|
| 所在地 |
埼玉県さいたま市浦和区前地1丁目 |
| 交通 |
京浜東北・根岸線 「浦和」駅 徒歩12分
湘南新宿ライン(宇都宮~逗子) 「浦和」駅 徒歩12分
高崎線 「浦和」駅 徒歩12分
|
| 専有面積 |
68.62m²
(20.75坪)
壁芯
|
築年月 |
2006年2月 |
| 間取り |
1LDK+納戸(S) |
所在階 |
2階/9階建 |
土地権利所有権の物件です。鉄筋コンクリート造、即入居可、2階以上、リフォーム済みの物件です。
-
| 価格 |
3,980万円
|
| 所在地 |
埼玉県さいたま市北区宮原町1丁目 |
| 交通 |
埼玉新都市交通 「加茂宮」駅 徒歩6分
東北本線 「土呂」駅 徒歩19分
京浜東北・根岸線 「大宮」駅 バス9分 「宮原一丁目」バス停下車 徒歩7分
|
| 専有面積 |
63.47m²
(19.19坪)
壁芯
|
築年月 |
2020年5月 |
| 間取り |
3LDK |
所在階 |
7階/15階建 |
駅徒歩10分以内の物件です。鉄筋コンクリート造、即入居可、2階以上、南(南東・南西)バルコニーの物件です。
-
| 価格 |
5,500万円
|
| 所在地 |
東京都北区豊島5丁目 |
| 交通 |
東京メトロ南北線 「王子神谷」駅 徒歩15分
京浜東北・根岸線 「王子」駅 バス10分 「新豊橋」バス停下車 徒歩1分
埼京線 「赤羽」駅 バス16分 「ハートアイランド西」バス停下車 徒歩4分
|
| 専有面積 |
70.52m²
(21.33坪)
壁芯
|
築年月 |
2012年3月 |
| 間取り |
3LDK |
所在階 |
4階/20階建 |
土地権利所有権の物件です。駐車場空有、鉄骨鉄筋コンクリート造、タワー型(階数が20階建以上)、2階以上、大規模マンション(100戸以上)、南(南東・南西)バルコニーの物件です。
-
| 価格 |
4,690万円
|
| 所在地 |
埼玉県さいたま市浦和区常盤5丁目 |
| 交通 |
湘南新宿ライン(前橋~小田原) 「浦和」駅 徒歩17分
京浜東北・根岸線 「北浦和」駅 徒歩11分
東北本線 「浦和」駅 徒歩17分
|
| 専有面積 |
67.85m²
(20.52坪)
壁芯
|
築年月 |
1995年10月 |
| 間取り |
2LDK+納戸(S) |
所在階 |
9階/14階建 |
土地権利所有権の物件です。鉄骨鉄筋コンクリート造、2階以上の物件です。
-
| 価格 |
10,800万円
|
| 所在地 |
埼玉県さいたま市大宮区下町3丁目 |
| 交通 |
埼京線 「大宮」駅 徒歩10分
高崎線 「大宮」駅 徒歩10分
京浜東北・根岸線 「大宮」駅 徒歩10分
|
| 専有面積 |
74.27m²
(22.46坪)
壁芯
|
築年月 |
2011年1月 |
| 間取り |
2LDK |
所在階 |
17階/30階建 |
駅徒歩10分以内、土地権利所有権の物件です。鉄筋コンクリート造、タワー型(階数が20階建以上)、10階以上、大規模マンション(100戸以上)、南(南東・南西)バルコニーの物件です。
-
| 価格 |
10,980万円
|
| 所在地 |
東京都北区赤羽南1丁目 |
| 交通 |
埼京線 「赤羽」駅 徒歩4分
京浜東北・根岸線 「赤羽」駅 徒歩4分
東京メトロ南北線 「志茂」駅 徒歩11分
|
| 専有面積 |
70.74m²
(21.39坪)
壁芯
|
築年月 |
2012年10月 |
| 間取り |
3LDK |
所在階 |
15階/15階建 |
駅徒歩5分以内、土地権利所有権の物件です。鉄筋コンクリート造、最上階、10階以上、大規模マンション(100戸以上)の物件です。
-
| 価格 |
7,380万円
|
| 所在地 |
東京都台東区下谷2丁目 |
| 交通 |
東京メトロ日比谷線 「入谷」駅 徒歩1分
山手線 「鶯谷」駅 徒歩7分
山手線 「上野」駅 徒歩11分
|
| 専有面積 |
55.42m²
(16.76坪)
壁芯
|
築年月 |
2010年6月 |
| 間取り |
2LDK |
所在階 |
4階/15階建 |
駅徒歩5分以内、土地権利所有権の物件です。鉄骨鉄筋コンクリート造、2階以上の物件です。
-
| 価格 |
8,580万円
|
| 所在地 |
埼玉県さいたま市浦和区東仲町 |
| 交通 |
高崎線 「浦和」駅 徒歩6分
|
| 専有面積 |
66.15m²
(20.01坪)
壁芯
|
築年月 |
2016年9月 |
| 間取り |
3LDK |
所在階 |
12階/14階建 |
駅徒歩10分以内、土地権利所有権の物件です。駐車場空有、鉄筋コンクリート造、10階以上、南(南東・南西)バルコニーの物件です。
-
| 価格 |
6,080万円
|
| 所在地 |
埼玉県さいたま市大宮区北袋町2丁目 |
| 交通 |
京浜東北・根岸線 「さいたま新都心」駅 徒歩11分
東北本線 「さいたま新都心」駅 徒歩11分
高崎線 「さいたま新都心」駅 徒歩11分
|
| 専有面積 |
79.11m²
(23.93坪)
壁芯
|
築年月 |
2011年8月 |
| 間取り |
3LDK |
所在階 |
1階/6階建 |
土地権利所有権の物件です。鉄筋コンクリート造、1階住戸、南(南東・南西)バルコニーの物件です。
-
| 価格 |
6,780万円
|
| 所在地 |
埼玉県さいたま市浦和区本太2丁目 |
| 交通 |
京浜東北・根岸線 「浦和」駅 徒歩8分
湘南新宿ライン(宇都宮~逗子) 「浦和」駅 徒歩8分
高崎線 「浦和」駅 徒歩8分
|
| 専有面積 |
77.04m²
(23.3坪)
壁芯
|
築年月 |
2002年6月 |
| 間取り |
3LDK |
所在階 |
2階/13階建 |
駅徒歩10分以内、土地権利所有権の物件です。鉄骨鉄筋コンクリート造、2階以上、大規模マンション(100戸以上)、南(南東・南西)バルコニーの物件です。
-
| 価格 |
7,280万円
|
| 所在地 |
東京都台東区東上野5丁目 |
| 交通 |
山手線 「上野」駅 徒歩5分
東京メトロ銀座線 「稲荷町」駅 徒歩4分
東京メトロ日比谷線 「上野」駅 徒歩7分
|
| 専有面積 |
32.88m²
(9.94坪)
壁芯
|
築年月 |
2010年2月 |
| 間取り |
1LDK |
所在階 |
8階/15階建 |
駅徒歩5分以内、土地権利所有権の物件です。鉄筋コンクリート造、2階以上の物件です。
-
| 価格 |
4,580万円
|
| 所在地 |
埼玉県さいたま市浦和区高砂3丁目 |
| 交通 |
京浜東北・根岸線 「浦和」駅 徒歩14分
|
| 専有面積 |
62.13m²
(18.79坪)
壁芯
|
築年月 |
1992年4月 |
| 間取り |
3DK |
所在階 |
3階/10階建 |
土地権利所有権の物件です。鉄骨鉄筋コンクリート造、即入居可、2階以上の物件です。
-
| 価格 |
9,580万円
|
| 所在地 |
埼玉県さいたま市中央区新都心 |
| 交通 |
京浜東北・根岸線 「さいたま新都心」駅 徒歩6分
高崎線 「さいたま新都心」駅 徒歩6分
埼京線 「北与野」駅 徒歩4分
|
| 専有面積 |
70.06m²
(21.19坪)
壁芯
|
築年月 |
2022年1月 |
| 間取り |
2LDK |
所在階 |
15階/17階建 |
駅徒歩5分以内、土地権利所有権の物件です。築浅、鉄筋コンクリート造、10階以上、大規模マンション(100戸以上)、南(南東・南西)バルコニーの物件です。
-
| 価格 |
9,280万円
|
| 所在地 |
東京都北区赤羽西2丁目 |
| 交通 |
埼京線 「赤羽」駅 徒歩9分
京浜東北・根岸線 「赤羽」駅 徒歩9分
東京メトロ南北線 「赤羽岩淵」駅 徒歩19分
|
| 専有面積 |
82.23m²
(24.87坪)
壁芯
|
築年月 |
1996年8月 |
| 間取り |
3LDK |
所在階 |
5階/5階建 |
駅徒歩10分以内、土地権利所有権の物件です。鉄筋コンクリート造、最上階、2階以上、南(南東・南西)バルコニーの物件です。
-
| 価格 |
10,950万円
|
| 所在地 |
埼玉県さいたま市浦和区岸町7丁目 |
| 交通 |
京浜東北・根岸線 「浦和」駅 徒歩7分
湘南新宿ライン(宇都宮~逗子) 「浦和」駅 徒歩7分
高崎線 「浦和」駅 徒歩7分
|
| 専有面積 |
81.26m²
(24.58坪)
壁芯
|
築年月 |
2018年11月 |
| 間取り |
3LDK |
所在階 |
3階/15階建 |
駅徒歩10分以内、土地権利所有権の物件です。駐車場空有、鉄筋コンクリート造、2階以上、大規模マンション(100戸以上)、南(南東・南西)バルコニー、リフォーム済みの物件です。
-
| 価格 |
4,780万円
|
| 所在地 |
埼玉県さいたま市大宮区北袋町1丁目 |
| 交通 |
京浜東北・根岸線 「さいたま新都心」駅 徒歩7分
京浜東北・根岸線 「与野」駅 徒歩9分
埼京線 「北与野」駅 徒歩16分
|
| 専有面積 |
75.79m²
(22.92坪)
壁芯
|
築年月 |
1986年3月 |
| 間取り |
3LDK |
所在階 |
3階/8階建 |
駅徒歩10分以内、土地権利所有権の物件です。鉄筋コンクリート造、2階以上、南(南東・南西)バルコニーの物件です。
-
| 価格 |
6,690万円
|
| 所在地 |
東京都板橋区蓮沼町 |
| 交通 |
都営三田線 「本蓮沼」駅 徒歩2分
都営三田線 「板橋本町」駅 徒歩15分
埼京線 「赤羽」駅 バス10分 「HPSC陸上門」バス停下車 徒歩6分
|
| 専有面積 |
69.09m²
(20.89坪)
壁芯
|
築年月 |
1996年6月 |
| 間取り |
3LDK |
所在階 |
6階/7階建 |
駅徒歩5分以内、土地権利所有権の物件です。鉄筋コンクリート造、2階以上、南(南東・南西)バルコニーの物件です。
-
| 価格 |
3,680万円
|
| 所在地 |
埼玉県さいたま市大宮区上小町 |
| 交通 |
京浜東北・根岸線 「大宮」駅 徒歩23分
京浜東北・根岸線 「大宮」駅 バス5分 「住宅前」バス停下車 徒歩1分
埼京線 「北与野」駅 徒歩23分
|
| 専有面積 |
96.91m²
(29.31坪)
壁芯
|
築年月 |
1988年1月 |
| 間取り |
4LDK |
所在階 |
2階/5階建 |
土地権利所有権の物件です。鉄筋コンクリート造、4LDK以上、2階以上、南(南東・南西)バルコニーの物件です。
-
| 価格 |
6,880万円
|
| 所在地 |
東京都北区赤羽西1丁目 |
| 交通 |
埼京線 「赤羽」駅 徒歩2分
東京メトロ南北線 「赤羽岩淵」駅 徒歩13分
京浜東北・根岸線 「赤羽」駅 徒歩2分
|
| 専有面積 |
66.64m²
(20.15坪)
|
築年月 |
1990年11月 |
| 間取り |
1LDK |
所在階 |
9階/14階建 |
駅徒歩5分以内、土地権利所有権の物件です。鉄骨鉄筋コンクリート造、2階以上、南(南東・南西)バルコニーの物件です。
-
| 価格 |
11,700万円
|
| 所在地 |
埼玉県さいたま市大宮区桜木町2丁目 |
| 交通 |
埼京線 「大宮」駅 徒歩5分
高崎線 「大宮」駅 徒歩5分
京浜東北・根岸線 「大宮」駅 徒歩5分
|
| 専有面積 |
74.1m²
(22.41坪)
壁芯
|
築年月 |
2024年5月 |
| 間取り |
3LDK |
所在階 |
11階/28階建 |
駅徒歩5分以内、土地権利所有権の物件です。築浅、鉄筋コンクリート造、タワー型(階数が20階建以上)、10階以上、大規模マンション(100戸以上)の物件です。
最近見た物件
-
- ベルクール南浦和
-
-
-
3LDK/ 69.88m²
-
武蔵野線 「南浦和」駅 徒歩12分