売り出し中
パークサイドタワーコスモ川口ステーションフロント
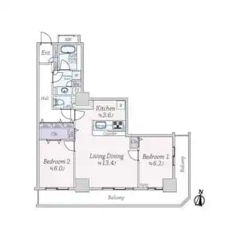
売り出し中の物件:1件
物件概要
| 物件名 | パークサイドタワーコスモ川口ステーションフロント |
|---|---|
| 所在地 | 埼玉県 川口市 川口 4丁目2番36号 |
| 階数 | 29階建 |
| 総戸数 | 222戸 |
| 交通 | 京浜東北・根岸線「川口」駅 徒歩4分 |
| 築年 | 2005年 |
| 構造 | RC一部S(鉄筋コンクリート一部鉄骨) |
| 土地権利 | 所有権 |
| 主方位 | 南南東 |
| ルーフバルコニー | なし |
| 専用庭 | なし |
| 分譲会社 | コスモスイニシア,埼玉建興,大栄不動産 |
| 施工会社 | 前田建設工業 |
| 設計会社 | コプラン設計事務所,千代田設計 |
| 管理会社 | 大和ライフネクスト |
| 管理員の勤務形態 | 日勤 |
| 用途地域 | 準工業地域,商業地域 |
| 小学校区 | 飯仲小学校 |
| 中学校区 | 西中学校 |
| 備考 | ●オートロック ●宅配ロッカー ●ペット可 ●「オ-ケーストア川口店」約240m ●「リリアパーク(川口西公園)」約40m ●「セブンイレブン川口4丁目店」約70m |
このマンションに関するお問い合わせ
-
購入をお考えの方
-
新しい売り出し物件が出たら
新着売り出しメールを受け取る -
このマンションを買いたい方は
購入相談
-
-
売却をお考えの方
- ※「パークサイドタワーコスモ川口ステーションフロント」の物件概要は、(株)ワンノブアカインドが運営する不動産・物件情報サイト「マンション・レビュー」の情報を元にご提供しています。当社は、その情報の正確性、完全性等について保証するものではありません。
-
このマンションに関するお問い合わせ
-
購入をお考えの方
-
売却をお考えの方
-
-
会員サービスのご案内
「新着物件メールサービス」や会員限定の便利機能をご利用いただけます!
-
近隣の売り出し中マンション情報
-
ライオンズマンション川口幸町
- 埼玉県川口市幸町3丁目9番16号
- 京浜東北・根岸線 西川口駅
-
エクレール東川口
- 埼玉県川口市東川口5丁目10番26号
- 武蔵野線 東川口駅
-
エバーグリーン川口
- 埼玉県川口市並木1丁目13番32号
- 京浜東北・根岸線 西川口駅
-
リビオシティ川口元郷
- 埼玉県川口市末広1丁目16番7号
- 埼玉高速鉄道 川口元郷駅
-
ブランズ川口本町
- 埼玉県川口市本町2丁目11番
- 埼玉高速鉄道 川口元郷駅
-
