近鉄難波・奈良線の土地面積70m²~80m²の新築・中古一戸建て物件一覧
近鉄難波・奈良線の土地面積70m²~80m²の新築・中古一戸建て購入は、三菱UFJ不動産販売の住まい1にお任せください。地域や沿線などご希望の条件から物件をお探しいただけます。物件の見学(内見)のお問い合わせもお気軽にどうぞ。
-
| 価格 |
8,790万円
|
| 所在地 |
大阪府大阪市中央区上本町西2丁目 |
| 交通 |
大阪メトロ谷町線 「谷町六丁目」駅 徒歩4分
大阪メトロ長堀鶴見緑地 「谷町六丁目」駅 徒歩4分
近鉄大阪線 「大阪上本町」駅 徒歩12分
|
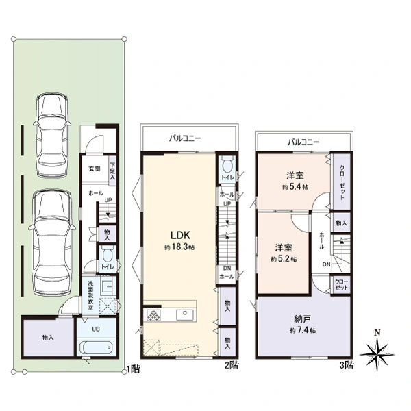
| 建物面積 |
93.87m²
(28.39坪)
|
築年月 |
2015年7月 |
| 土地面積 |
71.19m²
(21.53坪)
|
構造 |
木造 地上3階建 |
| 間取り |
2LDK+納戸(S)×1 |
|
|
<Life Information>
・スーパーライフ清水谷・・・約320メートル(徒歩約4分)
・阪急オアシス上本町店・・・約370メートル(徒歩約5分)
・セブンイレブン大阪上本町2丁目店・・・約160メートル(徒歩約2分)
・ローソン上本町三丁目店・・・約280メートル(徒歩約4分)
・近鉄百貨店上本町店・・・約1,050メートル(徒歩約14分)
・大阪市中央小学校・・・約1,010メートル(徒歩約13分)
・大阪市立上町中学校・・・約310メートル(徒歩約4分)
・空堀桃谷公園(大阪市中央区)・・・約200メートル(徒歩約3分)